Exposé
Objektart:
Büro / Praxen
» Buerohaus
» Miete
Standort: Büro / Praxen »
Deutschland » Nordrhein-Westfalen » Krefeld, Stadt (Kreis) » Krefeld
KR - ideal für Schulungen: barrierefrei, lichtdurchflutet, freie Raumaufteilung,Stellplätze möglich
Mitten drin - ideal erreichbar
Das Wichtigste auf einen Blick:
| Objektnummer: | 8972311 |
Preise
| Kaltmiete | 1.400 € |
| Nebenkosten | 500 € |
Flächen
| Nutzfläche | 400 m² |
| Gesamtfläche | 400 m² |
| Bürofläche | 200 m² |
| Maklerprovision | 3.57 Monatsmieten |
Objekt Adresse
47798 Krefeld
Sonstige Angaben
| Baujahr | 1968 |
| Verfügbar ab | Absprache |
| Inserat befindet sich im Stockwerk | 4 |
| Boden | Linoleum |
| Fahrstuhl | Ja |
| Barrierefrei | |
| Heizungsart | Zentralheizung |
| Energieträger/Befeuerung | Gas |
Objektbeschreibung
Die angebotenen Flächen verfügen über einen barrierefreien Zugang mit Aufzug.
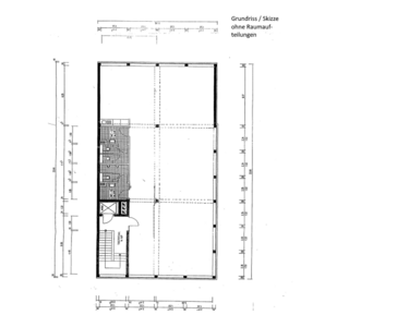
Die sehr schön hellen Büroetagen mit jeweils ca. 200 m² Nfl. sind aktuell in unterschiedlich große Räume aufgeteilt. Durch die überwiegend in Leichtbauweise erstellten Wände lässt sich die Aufteilung gut an Ihren Bedarf anpassen. Eine geräumige, eingerichtete Teeküche und ausreichend Sanitärräume (sind vorhanden.
Die angeboteten Büroeinheiten befinden sich im 1. und 4. OG, verfügen über die gleiche Grundfläche mit unterschiedlicher Raumaufteilung. In der ersten Etage verfügen die 2 letzten Räume nur über Lichtbänder.
Die Flächen stehen ab sofort oder nach Absprache zur Verfügung. Bei Bedarf können auch separate Archivräume angeboten werden.
Die sehr schön hellen Büroetagen mit jeweils ca. 200 m² Nfl. sind aktuell in unterschiedlich große Räume aufgeteilt. Durch die überwiegend in Leichtbauweise erstellten Wände lässt sich die Aufteilung gut an Ihren Bedarf anpassen. Eine geräumige, eingerichtete Teeküche und ausreichend Sanitärräume (sind vorhanden.
Die angeboteten Büroeinheiten befinden sich im 1. und 4. OG, verfügen über die gleiche Grundfläche mit unterschiedlicher Raumaufteilung. In der ersten Etage verfügen die 2 letzten Räume nur über Lichtbänder.
Die Flächen stehen ab sofort oder nach Absprache zur Verfügung. Bei Bedarf können auch separate Archivräume angeboten werden.
Ausstattung
Die Ausstattung kann nach Absprache erfolgen.
Aufzug
2 Sanitärbereiche
eingerichtete Teeküche
Stellplätze nach Bedarf auf dem hauseigenen Parkdeck
Aufzug
2 Sanitärbereiche
eingerichtete Teeküche
Stellplätze nach Bedarf auf dem hauseigenen Parkdeck
Lage des Objektes
Durch die unmittelbare Lage am Kaufhof verfügt der Standort über einen überregionalen Bekanntheitsgrad und beste Erreichbarkeit. Hier können Sie und Ihre Mitarbeiter in der Pause oder nach Feierabend alle benötigten Einkäufe tätigen oder das abwechslungsreiche Gastronomieangebot nutzen.
Öffentliche Parkmöglichkeiten und mehrere Parkhäuser sind in näherem Umfeld vorhanden. Auf der hauseigenen Parketage können auch feste Stellpätze anmietet werden zu je 75,-- EUR.
Hier können Sie vor Ort expandieren - im gleichen Objekt steht eine weitere Etage mit 200 m² Nfl. zur Verfügung.
Öffentliche Parkmöglichkeiten und mehrere Parkhäuser sind in näherem Umfeld vorhanden. Auf der hauseigenen Parketage können auch feste Stellpätze anmietet werden zu je 75,-- EUR.
Hier können Sie vor Ort expandieren - im gleichen Objekt steht eine weitere Etage mit 200 m² Nfl. zur Verfügung.
Sonstige Informationen
Interesse? Dann freuen wir uns auf Ihre Anfrage.
Nicht das Richtige für Sie? Nehmen Sie Kontakt zu uns auf wir bieten Ihnen gerne alternative Angebote an oder nutzen unser hervorragendes Netzwerk, um das passende Objekt für Sie zu finden.
Sie beabsichtigen, Ihre Immobilie zu vermieten oder zu verkaufen? Profitieren Sie von unserer jahrzehntelangen Erfahrung und unseren vorgemerkten Interessenten. Gerne erstellen wir für Sie ein professionelles Vermarktungskonzept, auf Wunsch auch DISKRETIONSVERMARKTUNG!
Unsere Exposés stellen kein vertragliches Angebot dar. Die hier gemachten Angaben beruhen auf Angaben des Eigentümers bzw. der Objektdokumentationen. Wir übernehmen für Abweichungen und Fehlangaben keine Gewähr. Der Energieausweis ist in Bearbeitung und kann bei Besichtigung vorgelegt werden.
Wir freuen uns auf Ihre Kontaktaufnahme.
Direkt gegenüber Ex-Kaufhof
Eingangsbereich und Diele
Raumbeispiel 1
Raumbeispiel 2
Raumbeispiel 3
z.Zt. noch offener Bereich
Küche mit Einrichtung
Grundriss vor Umbau
Raumbeispiel 2
Raumbeispiel 1