Exposé
Objektart:
Wohnung
» Etage
» Kauf
Modernes voll möbliertes Studio mit Balkon in Jumeirah Lake Towers – Luxus in bester Lage
Pool
Das Wichtigste auf einen Blick:
| Objektnummer: | 8943625 |
Preise
| Kaufpreis | 353.000 € |
| Nebenkosten | keine Angabe |
Flächen
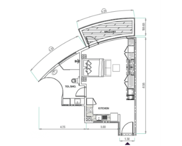
| Wohnfläche | 51,79 m² |
| Nutzfläche | 51,79 m² |
| Gesamtfläche | 51,79 m² |
Objekt Adresse
00000 Dubai
- Dubai
Sonstige Angaben
| Zimmer | 1 |
| Verfügbar ab | 4. Quartal 2026 |
| Bad | 1 |
| Küche | Einbauküche |
| Bad | 1 |
| Bad | Dusche |
| Balkone | 1 |
| Fahrstuhl | Ja |
Objektbeschreibung
Dieses hochmoderne Studio-Apartment in den MBL Signature Residences, Jumeirah Lake Towers, bietet eine perfekte Kombination aus Stil, Komfort und erstklassiger Lage:
- Ein Balkon, der einen herrlichen Blick auf die Marina- und JLT-Skyline bietet.
- Eine voll ausgestattete Einbauküche mit hochwertigen Geräten und durchdachtem Design.
- Komplett möbliert und mit erstklassigen Materialien ausgestattet, um ein luxuriöses Ambiente zu schaffen.
- Ideale Größe und Aufteilung für ein urbanes, stilvolles Leben.
- Perfekte Wahl für Käufer und Investoren – provisionsfrei für den Käufer.
Amenities im Kaufpreis enthalten
- Infinity Pool mit Blick auf Dubai Marina
- Voll ausgestattetes Fitnessstudio mit Sauna & Dampfbad
- Jacuzzi & SPA-Bereich
- BBQ-Area und Food-Court
- Kinder-Spielbereiche
- Hochwertige Lobby & 24h-Sicherheitsservice
zinsfreier Zahlungsplan (40/60)
- 20 % Anzahlung
- 10 % im September 2025
- 10 % im Dezember 2025
- 60 % bei Übergabe im Dezember 2026
Studios in JLT erzielen jährliche Mieteinnahmen von ca. AED 80.000 – 95.000 (≈ 20.000 – 23.500 EUR).
Die Bruttorendite liegt bei 7–8 %, abhängig von Möblierung und Ausblick.
Dieses Studio-Apartment vereint modernes Design, luxuriöse Ausstattung und eine erstklassige Lage.
- Ein Balkon, der einen herrlichen Blick auf die Marina- und JLT-Skyline bietet.
- Eine voll ausgestattete Einbauküche mit hochwertigen Geräten und durchdachtem Design.
- Komplett möbliert und mit erstklassigen Materialien ausgestattet, um ein luxuriöses Ambiente zu schaffen.
- Ideale Größe und Aufteilung für ein urbanes, stilvolles Leben.
- Perfekte Wahl für Käufer und Investoren – provisionsfrei für den Käufer.
Amenities im Kaufpreis enthalten
- Infinity Pool mit Blick auf Dubai Marina
- Voll ausgestattetes Fitnessstudio mit Sauna & Dampfbad
- Jacuzzi & SPA-Bereich
- BBQ-Area und Food-Court
- Kinder-Spielbereiche
- Hochwertige Lobby & 24h-Sicherheitsservice
zinsfreier Zahlungsplan (40/60)
- 20 % Anzahlung
- 10 % im September 2025
- 10 % im Dezember 2025
- 60 % bei Übergabe im Dezember 2026
Studios in JLT erzielen jährliche Mieteinnahmen von ca. AED 80.000 – 95.000 (≈ 20.000 – 23.500 EUR).
Die Bruttorendite liegt bei 7–8 %, abhängig von Möblierung und Ausblick.
Dieses Studio-Apartment vereint modernes Design, luxuriöse Ausstattung und eine erstklassige Lage.
Ausstattung
Apartment-Ausstattung:
- Voll ausgestattete Einbauküche mit modernen Geräten.
- Großer Balkon mit Panoramablick.
- Hochwertige, elegante Möblierung und luxuriöse Oberflächen.
- Offene Raumgestaltung für maximalen Komfort.
Gemeinschaftseinrichtungen:
- Infinity-Pool mit spektakulärer Aussicht auf die Marina.
- Fitnessstudio mit Sauna, Dampfbad und modernster Ausstattung.
- Kinderbereich und Freiluft-BBQ-Bereich für gesellige Anlässe.
- Gourmet-Restaurant und Food Court direkt vor Ort.
- Concierge-Service und 24/7-Sicherheit.
- Voll ausgestattete Einbauküche mit modernen Geräten.
- Großer Balkon mit Panoramablick.
- Hochwertige, elegante Möblierung und luxuriöse Oberflächen.
- Offene Raumgestaltung für maximalen Komfort.
Gemeinschaftseinrichtungen:
- Infinity-Pool mit spektakulärer Aussicht auf die Marina.
- Fitnessstudio mit Sauna, Dampfbad und modernster Ausstattung.
- Kinderbereich und Freiluft-BBQ-Bereich für gesellige Anlässe.
- Gourmet-Restaurant und Food Court direkt vor Ort.
- Concierge-Service und 24/7-Sicherheit.
Lage des Objektes
Das Studio befindet sich in Jumeirah Lake Towers, einem der begehrtesten Wohnviertel Dubais:
Erstklassige Lage: Direkt an der Sheikh Zayed Road und nur wenige Minuten von zwei Metrostationen entfernt.
Nahegelegene Attraktionen:
- Dubai Marina (6 Minuten)
- Jumeirah Beach Residence (7 Minuten)
- Palm Jumeirah (11 Minuten)
Öffentliche Anbindung: Zwei Metrostationen (DMCC & Sobha Realty) in wenigen Gehminuten erreichbar.
Umfassende Infrastruktur: Einkaufszentren, Restaurants, Parks und Strände sind in unmittelbarer Nähe.
Teil des DMCC Freezones, eines führenden Wirtschaftsstandorts mit innovativen Dienstleistungen und einer lebendigen Gemeinschaft.
Erstklassige Lage: Direkt an der Sheikh Zayed Road und nur wenige Minuten von zwei Metrostationen entfernt.
Nahegelegene Attraktionen:
- Dubai Marina (6 Minuten)
- Jumeirah Beach Residence (7 Minuten)
- Palm Jumeirah (11 Minuten)
Öffentliche Anbindung: Zwei Metrostationen (DMCC & Sobha Realty) in wenigen Gehminuten erreichbar.
Umfassende Infrastruktur: Einkaufszentren, Restaurants, Parks und Strände sind in unmittelbarer Nähe.
Teil des DMCC Freezones, eines führenden Wirtschaftsstandorts mit innovativen Dienstleistungen und einer lebendigen Gemeinschaft.
Sonstige Informationen
Sind Sie auf der Suche nach einer Immobilie in Dubai oder einer renditeträchtigen Anlageimmobilie? Möchten Sie vielleicht sogar Ihre aktuelle Immobilie verkaufen? Die Verwirklichung Ihres Wohntraums könnte näher sein, als Sie denken!
Unsere kostenlose Hotline steht Ihnen nicht nur werktags, sondern auch am Wochenende zur Verfügung. Bei Interesse bitten wir Sie, uns stets Ihre vollständigen Kontaktdaten mitzuteilen.
Bitte beachten Sie, dass die Objektbeschreibung auf den Angaben des Eigentümers basiert. Wir übernehmen keine Gewähr für die Richtigkeit oder Vollständigkeit.
Falls Sie Ihre Immobilie professionell vermarkten möchten, zögern Sie nicht, uns anzurufen. Wir stehen Ihnen persönlich von Montag bis Sonntag von 6:00 bis 22:00 Uhr zur Verfügung. Über 40.000 aktive Interessenten warten bereits darauf, von Ihnen zu hören.
FALC Real Estate Dubai
Sylvia Raseck
E-Mail: sylvia.raseck@falcrealestate.com
Mobil: +971 56 399 8300
Büro: +971 4 584 9218
Küche
Küche
Studio Apartment voll möbliert
Studio Apartment
Studio Einbauschraenke
Badezimmer
Dusche
Restaurant
Restaurant
Eingangsbereich
Gemeinschaftspool
Pool
Aussenansicht
Aussenanlage
Grundriss Studio A