Exposé
Objektart:
Haus
» Doppelhaushaelfte
» Kauf
Standort: Haus »
Deutschland » Bayern » Neuburg-Schrobenhausen (Kreis) » Neuburg an der Donau
Neubau einer modernen Doppelhaushälfte in sonniger Lage in Neuburg an der Donau
Hausansicht
Das Wichtigste auf einen Blick:
| Objektnummer: | 8939702 |
Preise
| Kaufpreis | 646.000 € |
| Nebenkosten | keine Angabe |
Flächen
| Wohnfläche | 137 m² |
| Grundstücksfläche | 237,1 m² |
| Maklerprovision | -Auf den Grundstückskaufpreis 3,57% inkl. MwSt. -Auf den Preis des Werkvertrags: 3,57% inkl. MwSt. |
Objekt Adresse
86633 Neuburg an der Donau
Sonstige Angaben
| Baujahr | 2027 |
| Zimmer | 5 |
| Verfügbar ab | Frühjahr 2027 |
| Garage/Stellplätze | 1 |
| Anzahl der Etagen im Haus | 3 |
| Garage/Stellplätze | 1 |
| Heizungsart | Fußbodenheizung |
| Energieträger/Befeuerung | Luft-Wärme-Pumpe |
Objektbeschreibung
Diese moderne Doppelhaushälfte (EG+OG+DG) entsteht in Neuburg an der Donau in sonniger Lage. Es wird nach neuesten energetischen Standards für Sie gebaut. Die Wohnfläche beträgt ca. 137 m² inkl. der hälftig berechneten Terrasse. Das Haus wurde mit 5 Zimmern geplant, kann aber ganz nach Ihrem persönlichen Bedarf angepasst werden. Die dargestellten Grundrisse sind Beispiele seitens des Bauträgers und können noch individuell angepasst werden. Zu dem Haus wurden eine Garage/Carport und ein Stellplatz geplant, welche preislich noch dazukommen oder in Eigenleistung errichtet werden. Natürlich kann auch ein Keller optional gegen Aufpreis erstellt werden (Sie finden einen Beispielgrundriss in diesem Exposé). Auch die Malerarbeiten und Bodenbeläge sind in diesem Angebot als Eigenleistung geplant. Alle Fenster sind aus Kunststoff, 3-fach verglast und mit Rollläden ausgestattet. Beheizt wird das Haus mit einer modernen Luft-Wärmepumpe. Die farbliche Gestaltung der Fassade wird vom Käufer festgelegt. Die angestrebte Bauzeit beträgt 1 Jahr ab Baubeginn. Weitere Informationen finden Sie in der ausführlichen Bauleistungsbeschreibung.
Zum Verkauf stehen 2 Doppelhaushälften:
- DHH1: 137 m² Wfl., 298 m² Grund (inkl. 97 m² Gemeinschaftsfläche), 681.000€
- DHH2: 137 m² Wfl., 237 m² Grund (inkl. 97 m² Gemeinschaftsfläche), 646.000€
Zum Verkauf stehen 2 Doppelhaushälften:
- DHH1: 137 m² Wfl., 298 m² Grund (inkl. 97 m² Gemeinschaftsfläche), 681.000€
- DHH2: 137 m² Wfl., 237 m² Grund (inkl. 97 m² Gemeinschaftsfläche), 646.000€
Ausstattung
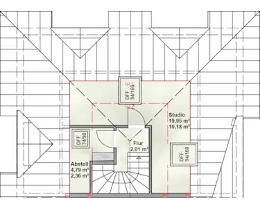
Diese moderne Doppelhaushälfte verfügt über insgesamt 3 Etagen (EG + OG + DG). Im Erdgeschoß befinden sich der Wohn- Essbereich, die Küche, eine Diele, der Hauswirtschaftsraum und ein WC. Im Obergeschoß 3 Schlafzimmer und ein Bad. Im Dachgeschoß ist ein großzügiges Studio und ein Abstellraum. Die genaue Aufteilung ist noch genau bestimm- und variierbar. Das Haus ist hochwertig ausgestattet und mit wichtigen Details ausgestattet. Zu diesen gehören z.B.:
- Schallschutzfenster mit Dreifachverglasung
- Fenster und Fenstertüren mit elektrischen Rollläden (außer Dachflächenfenster)
- Verwendung von deutschen Markenprodukten (z.B. Vigour, Roca, Ideal Standard oder gleichwertig)
- Komplettausstattung mit Elektro-, Sanitär- und Heizungsinstallation
- Massivholz-Treppen
- Energiesparende Luft/Wasser-Wärmepumpe (Vaillant)
- Fußbodenheizung mit Einzelraumsteuerung im EG, OG und DG
- Wohnraumlüftung
- bodengleiche Duschen
- Pflasterung Terrasse
- Keller mit großem Hobbyraum optional gegen Aufpreis (Beispielgrundrisse in diesem Exposé)
- Vorbereitung für Elektroauto und PV-Anlage
- Baubegleitende Qualitätsprüfung: TÜV/Dekra oder VQC
- Umfangreiches Versicherungspaket (Bauleistungsversicherung, Feuerrohbauversicherung, Bauherrenhaftpflichtversicherung, Baugewährleistungsversicherung, Vertragserfüllungsbürgschaft)
- Architektenleistungen u.v.m.
Baunebenkosten:
Baunebenkosten in Höhe von ca. 50.000€ sind bereits im Kaufpreis inbegriffen!
Dazu gehören z.B. Hausanschlüsse, Baustrom, Bauwasser, Allgemeine Gebühren (Herstellungsbeiträge, Genehmigungen), Vermessungskosten, Teilungskosten, Eventualkosten (Gemeinsame Zuwegung, Bordsteinabsenkung) etc..
Auch anteilige Abrisskosten i.H.v. ca. 8.000€ sind bereits in den Kaufpreis einkalkuliert
Die genaue Aufstellung der Baunebenkosten erhalten Sie im Rahmen eines individuellen Investitionsplanes
- Schallschutzfenster mit Dreifachverglasung
- Fenster und Fenstertüren mit elektrischen Rollläden (außer Dachflächenfenster)
- Verwendung von deutschen Markenprodukten (z.B. Vigour, Roca, Ideal Standard oder gleichwertig)
- Komplettausstattung mit Elektro-, Sanitär- und Heizungsinstallation
- Massivholz-Treppen
- Energiesparende Luft/Wasser-Wärmepumpe (Vaillant)
- Fußbodenheizung mit Einzelraumsteuerung im EG, OG und DG
- Wohnraumlüftung
- bodengleiche Duschen
- Pflasterung Terrasse
- Keller mit großem Hobbyraum optional gegen Aufpreis (Beispielgrundrisse in diesem Exposé)
- Vorbereitung für Elektroauto und PV-Anlage
- Baubegleitende Qualitätsprüfung: TÜV/Dekra oder VQC
- Umfangreiches Versicherungspaket (Bauleistungsversicherung, Feuerrohbauversicherung, Bauherrenhaftpflichtversicherung, Baugewährleistungsversicherung, Vertragserfüllungsbürgschaft)
- Architektenleistungen u.v.m.
Baunebenkosten:
Baunebenkosten in Höhe von ca. 50.000€ sind bereits im Kaufpreis inbegriffen!
Dazu gehören z.B. Hausanschlüsse, Baustrom, Bauwasser, Allgemeine Gebühren (Herstellungsbeiträge, Genehmigungen), Vermessungskosten, Teilungskosten, Eventualkosten (Gemeinsame Zuwegung, Bordsteinabsenkung) etc..
Auch anteilige Abrisskosten i.H.v. ca. 8.000€ sind bereits in den Kaufpreis einkalkuliert
Die genaue Aufstellung der Baunebenkosten erhalten Sie im Rahmen eines individuellen Investitionsplanes
Lage des Objektes
Dieses attraktive Haus befindet sich in Neuburg an der Donau, im Ortsteil Heinrichsheim, im Landkreis Neuburg-Schrobenhausen in Oberbayern. Die Stadt überzeugt mit einer hervorragenden Infrastruktur, historischer Architektur und einer hohen Lebensqualität. Alle wichtigen Einrichtungen des täglichen Bedarfs sind in Neuburg vorhanden. Neuburg bietet eine ausgezeichnete Anbindung an den öffentlichen Nahverkehr sowie eine schnelle Erreichbarkeit der B16, über die Ingolstadt gut angebunden ist. Für Familien ist die Lage besonders attraktiv: Kindergärten, Schulen und Freizeiteinrichtungen wie Spielplätze, Sportvereine und das Naherholungsgebiet entlang der Donau sorgen für ein ideales Wohnumfeld. Die historische Altstadt von Neuburg mit ihren malerischen Gassen, Cafés und Restaurants lädt zum Flanieren und Genießen ein. Zudem bietet die Umgebung zahlreiche Möglichkeiten zur Freizeitgestaltung in der Natur. Rad- und Wanderwege entlang der Donau, das nahegelegene Donaumoos sowie verschiedene Seen und Wälder bieten Erholung und Naturerlebnisse direkt vor der Haustür. Diese Lage vereint eine perfekte Mischung aus urbanem Komfort, ruhigem Wohnen und naturnaher Erholung – ideal für Familien, Berufstätige und Ruhesuchende gleichermaßen.
Sonstige Informationen
Energieausweis nach Fertigstellung.
Abbildungen/Ansichten zeigen gegebenenfalls optionale Sonderausstattungen!
Weitere Informationen zu diesem und zu weiteren Objekten finden Sie unter www.Immobilien-Ried.de
Alle in diesem Exposé enthaltenen Daten und Informationen beruhen auf Angaben Dritter, daher wird keine Haftung für die Richtigkeit und/oder Vollständigkeit von Immobilien-Ried übernommen. Alle Angaben sind ohne Gewähr.
Hausansicht-2
Hausansicht-3
Hausansicht-4
Beispiel-Wohnzimmer
Beispiel-Küche
Beispiel-Schlafzimmer
Beispiel-Schlafzimmer-2
Beispiel-Schlafzimmer-DG
Beispiel-Kinderzimmer
Beispiel-Bad
Grundriss-EG
Grundriss-OG
Grundriss-DG
Grundriss-KG (Optional)