Exposé
Objektart:
Haus
» Mehrfamilienhaus
» Kauf
Standort: Haus »
Deutschland » Sachsen » Delitzsch (Kreis) » Taucha
Wohnhaus auf 3 Ebenen, Einliegerwohnung oder Büro mit herrlichem Garten und Garage
Angeboten von:
Immobilien Kompetenz Mitteldeutschland eG
An der Alten Mühle 1
04356 Leipzig
Telefon:+49(0)341-12478-0
www.ikm-eg.de
Ansprechpartner/in
Immobilien Kompetenz Mitteldeutschland eG
Frau Jenny Fengler
| Telefon: | 0341/1247815 |
| Fax: | 0341/1247823 |
Das Wichtigste auf einen Blick:
| Objektnummer: | 8931355 |
Preise
| Kaufpreis | 690.000 € |
| Nebenkosten | keine Angabe |
Flächen
| Wohnfläche | 192 m² |
| Nutzfläche | 232,8 m² |
| Grundstücksfläche | 900 m² |
| Maklerprovision | 3,57 % des Kaufpreises inkl. ges. MwSt. (in Höhe von derzeit 19 %) |
Objekt Adresse
04425 Taucha
Sonstige Angaben
| Baujahr | 1938 |
| Zimmer | 10 |
| Verfügbar ab | keine Angabe |
| Bad | 3 |
| Garage/Stellplätze | 2 |
| Anzahl der Etagen im Haus | 2 |
| Bad | 3 |
| Balkone | 1 |
| Terrassen | 1 |
| Garage/Stellplätze | 2 |
| Keller | Ja |
| Energieausweistyp | Verbrauch |
| Gültig bis | 2029-10-09 |
| Baujahr (laut Energieausweis) | 1938 |
| Energieeffizienzklasse | C |
| Energieverbrauchkennwert | 64.00 kWh/(m²*a) |
| Heizungsart | Zentralheizung |
| Wesentlicher Energieträger | Erdgas Leicht |
| Energieträger/Befeuerung | Gas, Elektro |
Objektbeschreibung
Willkommen in dieser exquisiten, gepflegten Villa in Taucha, die im Jahr 1938 erbaut und zuletzt 2024 umfassend modernisiert wurde. Diese eindrucksvolle Immobilie bietet Ihnen auf einer großzügigen Grundstücksfläche von ca. 900 m² alles, was Ihr Herz begehrt.
Mit einer Wohnfläche von ca. 192 m² und einer zusätzlichen Nutzfläche von ca. 233 m² erstreckt sich das Haus über zwei Etagen mit ausgebautem Dach und Keller. Die 3 Wohnungen mit jeweils 3 Zimmern sind vermietet und bieten eine solide Anlagebasis.
Der massive Bauweise und der gepflegte Zustand sorgen für ein langlebiges Zuhause, das Ihnen über viele Jahre hinweg Freude bereiten wird. Die Villa ist vollständig unterkellert, bietet also zusätzlichen Stauraum oder weitere Gestaltungsmöglichkeiten.
Insgesamt stehen Ihnen zehn geräumige Zimmer zur Verfügung, darunter sechs Schlafzimmer, die genügend Platz für Ihre Familie oder Gäste bieten. Mit drei modernen Badezimmern ist diese Villa perfekt ausgestattet, um allen Ansprüchen gerecht zu werden.
Ein besonderes Highlight ist der Balkon, der Ihnen ruhige Momente und einen herrlichen Ausblick in den gepflegten Garten bietet.
Diese Immobilie kombiniert historischen Charme mit modernem Komfort und wartet darauf, von Ihnen entdeckt zu werden. Nutzen Sie die Gelegenheit, diesen außergewöhnlichen Wohntraum in Taucha zu verwirklichen.
Mit einer Wohnfläche von ca. 192 m² und einer zusätzlichen Nutzfläche von ca. 233 m² erstreckt sich das Haus über zwei Etagen mit ausgebautem Dach und Keller. Die 3 Wohnungen mit jeweils 3 Zimmern sind vermietet und bieten eine solide Anlagebasis.
Der massive Bauweise und der gepflegte Zustand sorgen für ein langlebiges Zuhause, das Ihnen über viele Jahre hinweg Freude bereiten wird. Die Villa ist vollständig unterkellert, bietet also zusätzlichen Stauraum oder weitere Gestaltungsmöglichkeiten.
Insgesamt stehen Ihnen zehn geräumige Zimmer zur Verfügung, darunter sechs Schlafzimmer, die genügend Platz für Ihre Familie oder Gäste bieten. Mit drei modernen Badezimmern ist diese Villa perfekt ausgestattet, um allen Ansprüchen gerecht zu werden.
Ein besonderes Highlight ist der Balkon, der Ihnen ruhige Momente und einen herrlichen Ausblick in den gepflegten Garten bietet.
Diese Immobilie kombiniert historischen Charme mit modernem Komfort und wartet darauf, von Ihnen entdeckt zu werden. Nutzen Sie die Gelegenheit, diesen außergewöhnlichen Wohntraum in Taucha zu verwirklichen.
Ausstattung
- Kabel Sat TV für beste Unterhaltung
- Lichtdurchfluteter Wintergarten für entspannte Stunden
- Sonniger Balkon zum Abschalten und Genießen der frischen Luft
- Praktischer Keller für zusätzlichen Stauraum
- Effiziente Zentralheizung sorgt für wohlige Wärme
- Flexible Heizsysteme mit Gas- und Elektro-Befeuerung für individuelle Bedürfnisse
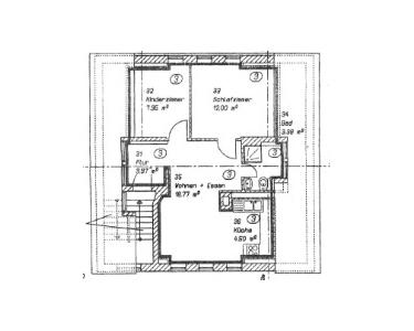
- Wohnung EG 72 m², 3 Zi
- Wohnung OG 69 m², 3 Zi
- Wohnung DG 53 m², 3 Zi
- Lichtdurchfluteter Wintergarten für entspannte Stunden
- Sonniger Balkon zum Abschalten und Genießen der frischen Luft
- Praktischer Keller für zusätzlichen Stauraum
- Effiziente Zentralheizung sorgt für wohlige Wärme
- Flexible Heizsysteme mit Gas- und Elektro-Befeuerung für individuelle Bedürfnisse
- Wohnung EG 72 m², 3 Zi
- Wohnung OG 69 m², 3 Zi
- Wohnung DG 53 m², 3 Zi
Lage des Objektes
Die exklusive Villa befindet sich in der idyllischen Stadt Taucha in Deutschland, unweit des pulsierenden Leipziger Zentrums. Taucha besticht durch seine harmonische Kombination aus historischem Charme und moderner Infrastruktur und bietet eine ideale Wohnlage für Familien und Berufspendler. Die Umgebung ist geprägt von grünen Landschaften, die zu erholsamen Spaziergängen und Outdoor-Aktivitäten einladen. Zahlreiche Einkaufsmöglichkeiten, Bildungs- und Freizeiteinrichtungen sowie eine gute ärztliche Versorgung sind bequem erreichbar. Des Weiteren sorgt die hervorragende Verkehrsanbindung mit Nähe zu Autobahnen und öffentlichem Nahverkehr für eine schnelle Erreichbarkeit der Metropole Leipzig und anderer Städte im Umkreis. Die Lage schafft somit eine perfekte Balance zwischen Ruhe und Stadtnähe, die den Lebenskomfort unvergleichlich steigert.
Sonstige Informationen
Zum Verkauf steht eine charmante Immobilie, deren historische Wurzeln bis ins Jahr 1938 zurückreichen. Gemäß dem vorliegenden Energieausweis, der als Verbrauchsausweis ausgestellt wurde, erfolgt die Beheizung der Immobilie über den wesentlichen Energieträger Erdgas leicht. Diese Kombination verspricht nicht nur ein behagliches Wohnklima, sondern auch eine solide energetische Grundlage. Entdecken Sie die einzigartige Gelegenheit, ein Stück Geschichte zu erwerben, das modernem Wohnkomfort gerecht wird.
Aktuell ist das Objekt vermietet.
Weiters Details und Besichtigungstermine stellen wir Ihnen gerne auf Anfrage zur Verfügung.
Telefonisch erreichen Sie uns unter 0341/1247815.
Grundriss DG
Grundriss OG