Exposé
Objektart:
Gastgewerbe
» Discothek
» Kauf
Standort: Gastgewerbe »
Deutschland » Nordrhein-Westfalen » Kleve (Kreis) » Emmerich am Rhein
Emmerich: Multifunktionshalle in Emmerich
Das Wichtigste auf einen Blick:
| Objektnummer: | 8930532 |
Preise
| Kaufpreis | 579.000 € |
| Nebenkosten | keine Angabe |
Flächen
| Nutzfläche | 925 m² |
| Gesamtfläche | 925 m² |
| Grundstücksfläche | 1.796 m² |
| Maklerprovision | 3,57% vom Kaufpreis (inkl. MwSt.) |
Objekt Adresse
46446 Emmerich am Rhein
- Nordrhein-Westfalen
Sonstige Angaben
| Baujahr | 1978 |
| Verfügbar ab | keine Angabe |
| Heizungsart | Zentralheizung |
| Energieträger/Befeuerung | Gas |
Objektbeschreibung
Diese Immobilie befindet sich im Gewerbegebiet von Emmerich und bietet eine ausgezeichnete Anbindung sowie eine gut ausgebaute Infrastruktur. Die vielseitig nutzbare Multifunktionshalle wurde ursprünglich als Diskothek genutzt und zuletzt als Sauna-Club betrieben. Sie eröffnet zahlreiche Nutzungsmöglichkeiten und ist ideal für Investoren oder Unternehmer, die ein innovatives Konzept umsetzen möchten.
Baujahr: Das Gebäude wurde etwa 1978 als Lager, Büro und Ausstellungsfläche errichtet.
Das Grundstück erstreckt sich über ca. 1.796 m² und verfügt über einen ansprechenden Innenhof, der Privatsphäre gewährleistet. Der Garten ist eingezäunt und bietet mit einer Sauna, Dusche und einem Whirlpool optimale Bedingungen für Entspannung und Erholung. Alternativ kann dieser Bereich auch für Parkplatzerweiterungen oder Lagerzwecke genutzt werden.
Fläche: ca. 925 m²
Umbauter Raum: ca. 3.600 m²
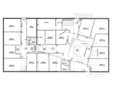
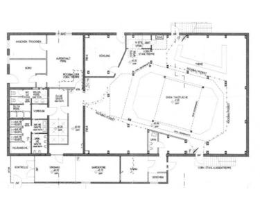
Erdgeschoss:
- Eingangsbereich mit Garderobe
- Großer offener Bereich (ehemals Theke bzw. Disko mit Tanzfläche)
- Umkleidebereich sowie separate Duschen und Sanitäranlagen für Damen und Herren
- Aufenthaltsraum
- Ehemaliger Kühlraum
- Büro
- Hauswirtschaftsraum mit Technik
Obergeschoss:
Je nach Nutzung stehen bis zu 13 Zimmer zur Verfügung, einige davon sind mit Whirlpools ausgestattet.
- Zwei WC-Anlagen
- Offener Flurbereich mit Loungeecke
- Technikräume
Konstruktion:
Die Halle besteht aus einer Stahlkonstruktion mit zweischaligen KSV-Wänden, das Dach ist in "Berliner Welle" ausgeführt. Das Obergeschoss ist größtenteils in Ständerbauweise errichtet, was flexible Gestaltungsmöglichkeiten erlaubt.
Heizung & Lüftung:
Das Gebäude wird durch zwei Gaszentralheizungen beheizt. Eine Lüftungsanlage, die ursprünglich für den Betrieb einer Diskothek konzipiert wurde, sorgt für ein angenehmes Raumklima.
Sicherheit:
Die Immobilie ist alarmgesichert, was zusätzliche Sicherheit für Betreiber und Gäste gewährleistet.
Stellplätze:
Zahlreiche Stellplätze sind auf einem Schotterparkplatz sowie direkt vor dem Gebäude vorhanden, was eine bequeme Anreise für Gäste ermöglicht.
Nutzungspotenzial:
Nach Rücksprache mit der lokalen Behörde sind verschiedene Nutzungsmöglichkeiten denkbar: Die Fortführung eines Sauna-Clubs, die Umwandlung in eine Eventhalle oder die Einrichtung eines Sport- und Fitnessstudios sind nur einige Optionen.
Sonstiges:
Eine Vermietung der Immobilie wird vom Eigentümer nicht gewünscht; weitere Informationen erteilen wir Ihnen gerne in einem persönlichen Gespräch.
Kaufpreis: Euro 579.000,--
Sonstige Informationen
Übernahme:
Nach Absprache mit dem Verkäufer
Besichtigungen:
Nur nach vorheriger Terminabsprache mit Rücksicht auf den Verkäufer. Terminabsprache unter: 02828 92199 (Büro Emmerich-Elten), 02824-965211 (Büro Kalkar), 02871 2945633 (Büro Bocholt)
Provision:
Vom Verkäufer sowie Käufer sind mit Abschluss des Kaufvertrages eine Vermittlungs- bzw. Nachweisprovision vom Gesamtkaufpreis an die Rainer Elsmann Immobilien GmbH zu zahlen. Die Provisionshöhe entnehmen Sie bitte den Angaben in der Broschüre bzw. auf unserer Webseite.
Hinweis:
Sind mehrere Kaufinteressenten für die Immobilie vorhanden, wird der Verkäufer seine Verkaufsentscheidung treffen; gegebenenfalls kann es zu einem Bieterverfahren kommen.
Der Makler wird die Entscheidungen den Kaufinteressenten übermitteln. Wir weisen daraufhin, dass den Kaufinteressenten keine Schadensersatzansprüche zustehen weder gegen den Verkäufer noch gegen den Makler. Deshalb Vorsicht bei Vorleistungen (z.B. Gutachterkosten)
Allgemein:
Sämtliche, in diesem Angebot enthaltenen Angaben, Zeichnungen, Abmessungen und Preisangaben beruhen auf Angaben des Verkäufers, oder eines Dritten. Die Benennungen der Räume/Zimmer beziehen sich auf die aktuelle Nutzung und ggf. nicht auf die baurechtlichen Genehmigungen. Insbesondere im Falle älterer, bewohnter oder umgebauter Immobilien kann letzten Endes nicht immer gewährleistet werden, dass der neueste Stand der Technik eingehalten ist und das Objekt daneben allen Anforderungen Stand hält. Der Makler übernimmt in der Folge keine Gewähr für die Richtigkeit der von ihm lediglich weitergegebenen Informationen zur Beschaffenheit der Immobilie und/oder deren uneingeschränkter Eignung zu einer vorgesehenen Nutzung. Soweit der Makler neben der eigenen Sorgfalt auch für eigene Auskünfte haftet, ist diese Haftung auf grobe Fahrlässigkeit oder vorsätzliches Handeln beschränkt. Es gelten die allgemeinen Geschäftsbedingungen.
Übersetzungen:
Die Übersetzungen auf unserer Webseite erfolgen automatisch mit Deepl.
Informatie voor Nederlanders:
Wij spreken Nederlands!
Daarnaast begeleiden wij Nederlanders niet alleen bij de aankoop van een huis in Duitsland en alles wat daarbij komt kijken maar ook bij de emigratie naar Duitsland. Neem gewoon contact met ons op en laat u informeren!
. Info zum Energieausweis: liegt zur Besichtigung vor
Lageplan