Exposé
Objektart:
Haus
» Kauf
Standort: Haus »
Deutschland » Mecklenburg-Vorpommern » Güstrow (Kreis) » Güstrow
Imposante Architektenvilla in Güstrow
Vorderansicht
Das Wichtigste auf einen Blick:
| Objektnummer: | 8929194 |
Preise
| Kaufpreis | 795.000 € |
| Nebenkosten | keine Angabe |
Flächen
| Wohnfläche | 1.231 m² |
| Grundstücksfläche | 1.200 m² |
| Maklerprovision | 3,57% inkl. MwSt |
Objekt Adresse
18273 Güstrow
Sonstige Angaben
| Baujahr | 1900 |
| Zimmer | 12 |
| Verfügbar ab | sofort |
| Bad | 2 |
| Garage/Stellplätze | 6 |
| Bad | 2 |
| Boden | Dielen, Fliesen, Teppich |
| Garten | Ja |
| Garage/Stellplätze | 6 |
| Keller | Ja |
| Heizungsart | Zentralheizung |
| Energieträger/Befeuerung | Gas |
Objektbeschreibung
Diese Villa wurde Anfang des 20. Jahrhunderts durch einen Architekten mit modernen und barockisierenden Elementen im Stil eines Gutshauses erbaut. Das ca. 2.904 m² große Grundstück liegt im Herzen der Barlachstadt Güstrow, unweit des Schlosses. Die großzügige Villa aus der Gründerzeit steht unter Denkmalschutz und bietet mit ca. 1.231 m² Wohn- und Nutzfläche auf 4 Etagen viel Raum für eine individuelle Gestaltung, sowohl als Wohn- und/oder Geschäftsbereich. Die gesamte Fläche des Gebäudes mit einem voll unterkellerten Bereich ist zurzeit leerstehend und wurde im Vorfeld gewerblich genutzt. Der Dachboden bietet zusätzlich Ausbaupotenzial. Das Gebäude hat seinen eigenen imposanten Charme. Die Holzfenster und -türen sind teilweise noch Originalelemente. Die Fassade ist durch glatte Flächen verziert. Auch der Innenbereich konnte teilweise im Originalzustand erhalten bleiben, ist aber momentan sanierungsbedürftig. Die Decken sind mit Stuck versehen und die Fußböden vermutlich unter den Fliesen sowie Teppich mit alten Holzdielen oder Parkett belegt. Der
Außenbereich bietet ausreichend PKW-Stellplätze. Auf dem Grundstück befindet sich ebenfalls ein Einfamilienhaus, bestehend aus zwei Wohneinheiten mit insgesamt ca. 180 m² Wohnfläche. Diese sind derzeit vermietet. Beheizt werden die Objekte jeweils über eine Gaszentralheizung. Gleichzeitig ist eine weitere Bebauung mit einem Einfamilienhaus auf dem Grundstück möglich. Ein positiver Bauvorbescheid liegt derzeit vor. Die Villa, das EFH und das Baugrundstück können bei Bedarf auch einzeln erworben werden.
Außenbereich bietet ausreichend PKW-Stellplätze. Auf dem Grundstück befindet sich ebenfalls ein Einfamilienhaus, bestehend aus zwei Wohneinheiten mit insgesamt ca. 180 m² Wohnfläche. Diese sind derzeit vermietet. Beheizt werden die Objekte jeweils über eine Gaszentralheizung. Gleichzeitig ist eine weitere Bebauung mit einem Einfamilienhaus auf dem Grundstück möglich. Ein positiver Bauvorbescheid liegt derzeit vor. Die Villa, das EFH und das Baugrundstück können bei Bedarf auch einzeln erworben werden.
Lage des Objektes
Güstrow ist mit ca. 30.000 Einwohnern die größte Kreisstadt im näheren Umfeld der ca. 44 km entfernten Hansestadt Rostock. Insbesondere die Altstadt von Güstrow besticht durch Fachwerk, Backsteingotik, den Bürgerhäusern und den extravaganten Renaissancebauten. Die kulturelle Ader der Stadt wird durch das Stadtmuseum, die Krippenausstellung in der Heilig Geist Kirche und Galerien unterstrichen. Güstrow ist nicht nur eine Kulturstadt, sondern hat sich in den letzten Jahrzehnten auch zu einer umweltgerechten Stadt entwickelt. Güstrow hat einen Bahnhof mit Fernbahnanschluss. Einkaufsmöglichkeiten und eine Bushaltestelle sind in wenigen Minuten (fußläufig) erreichbar. Ärzte, Schulen und Kindergärten sind ebenfalls vertreten. Die Stadt liegt am Kreuzungspunkt der B 104 und B 103. Zudem können Städte wie Hamburg, Berlin und Rostock über die A 19 oder A 20 erreicht werden. Der Flughafen Rostock-Laage ist nur ca. 17 km entfernt. Bis zur Landeshauptstadt Schwerin sind es ca. 61 km. Die Gegend bietet eine hohe Wohnqualität und ermöglicht für jede Altersgruppe ein angenehmes Wohngefühl.
Sonstige Informationen
Der Makler-Vertrag mit uns und/oder unserem Beauftragten kommt durch die Bestätigung der Inanspruchnahme unserer Maklertätigkeit in Textform zustande, wie z.B. insbesondere die Unterschrift des Suchkundenvertrages und/oder des Objekt-Exposés. Die Käufercourtage in Höhe von 6 % zuzüglich Umsatzsteuer in jeweils geltender Höhe, derzeit also insgesamt 7,14 % des Kaufpreises einschließlich Umsatzsteuer ist bei notariellem Vertragsabschluss verdient und fällig. Die Höhe der
Bruttocourtage unterliegt einer Anpassung bei Steuersatzänderung. Grunderwerbssteuer, Notar- und Gerichtskosten trägt der Käufer.
Treppenhaus
Flur
Kellergeschoss
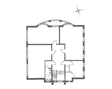
Erdgeschoss
1. Obergeschoss
2. Obergeschoss
Spitzboden