Exposé
Objektart:
Haus
» Einfamilienhaus
» Kauf
Istrien, Svetvinčenat – moderne Villa mit Pool in ruhiger Lage im Zentrum Istriens
Angeboten von:
Art Living Real Estate j.d.o.o.
Pozioi 1g
52470 Umag
Kroatien
Telefon:+385917848083
www.artliving-realestate.hr
Ansprechpartner/in
Mia Glad| Mobil | 091 784 8083 |
Das Wichtigste auf einen Blick:
| Objektnummer: | 8920165 |
Preise
| Kaufpreis | 400.000 € |
| Nebenkosten | keine Angabe |
Flächen
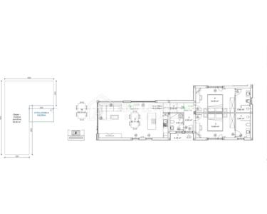
| Gesamtfläche | 125 m² |
| Grundstücksfläche | 540 m² |
Objekt Adresse
52342 Svetvinčenat
- Istrien
Sonstige Angaben
| Baujahr | 2024 |
| Zimmer | 3 |
| Verfügbar ab | keine Angabe |
| Bad | 2 |
| Anzahl der Etagen im Haus | 0 |
| Bad | 2 |
Objektbeschreibung
Istrien, Svetvinčenat
Neue freistehende moderne Villa mit Pool zu verkaufen, Gesamtfläche 125 m2, an einem ruhigen und schönen Ort im Zentrum Istriens, 30 km vom schönen Rovinj, 16 km vom Meer und schönen Stränden und nur 25 km vom Flughafen Pula entfernt
Das Haus besteht aus einer Eingangshalle, einem Wohnzimmer mit Esszimmer und offener Küche, 2 Schlafzimmern, jeweils mit eigenem Bad, einem Hauswirtschaftsraum und einer überdachten Terrasse von 17 m2 mit einer modernen Sommerküche.
Das Haus befindet sich auf einem Grundstück von 540 m2, auf dem sich ein Swimmingpool von 36 m2 mit angelegter Liegewiese und Garten sowie ein eigener Parkplatz befinden.
Diese luxuriös eingerichtete moderne Villa mit Flachdach verfügt über eine elektrische Fußbodenheizung sowie eine Klimaanlage in jedem Zimmer separat.
Das Haus befindet sich in ruhiger und schöner Lage am Waldrand und eignet sich sowohl für den Urlaub und Aufenthalt als auch für die Vermietung zu touristischen Zwecken.
EIGENSCHAFTEN
Eine moderne Villa mit Flachdach
Schwimmbad 36 m2
Ruhige und schöne Lage
Klimatisiert
Fußbodenheizung in allen Räumen
Sommerküche
Die Provision der Agentur für den Käufer beträgt 3 % und wird im Falle eines Immobilienkaufs bei Abschluss des Vorvertrags bzw. Kaufvertrags gezahlt.
Sehr geehrte Kunden, die Besichtigung der Immobilie ist nur mit einem unterzeichneten Vermittlungsvertrag möglich, der die Grundlage für weitere Maßnahmen im Zusammenhang mit dem Verkauf und der Provision bildet, alles in Übereinstimmung mit dem Gesetz über die Vermittlung bei Immobilientransaktionen.
HINWEIS: Wir übernehmen keine Verantwortung für Fehler in den Objektbeschreibungen, möchten jedoch so präzise und genau wie möglich sein.
AGENTUR-ID-CODE: 1106
ID CODE: 1106
Neue freistehende moderne Villa mit Pool zu verkaufen, Gesamtfläche 125 m2, an einem ruhigen und schönen Ort im Zentrum Istriens, 30 km vom schönen Rovinj, 16 km vom Meer und schönen Stränden und nur 25 km vom Flughafen Pula entfernt
Das Haus besteht aus einer Eingangshalle, einem Wohnzimmer mit Esszimmer und offener Küche, 2 Schlafzimmern, jeweils mit eigenem Bad, einem Hauswirtschaftsraum und einer überdachten Terrasse von 17 m2 mit einer modernen Sommerküche.
Das Haus befindet sich auf einem Grundstück von 540 m2, auf dem sich ein Swimmingpool von 36 m2 mit angelegter Liegewiese und Garten sowie ein eigener Parkplatz befinden.
Diese luxuriös eingerichtete moderne Villa mit Flachdach verfügt über eine elektrische Fußbodenheizung sowie eine Klimaanlage in jedem Zimmer separat.
Das Haus befindet sich in ruhiger und schöner Lage am Waldrand und eignet sich sowohl für den Urlaub und Aufenthalt als auch für die Vermietung zu touristischen Zwecken.
EIGENSCHAFTEN
Eine moderne Villa mit Flachdach
Schwimmbad 36 m2
Ruhige und schöne Lage
Klimatisiert
Fußbodenheizung in allen Räumen
Sommerküche
Die Provision der Agentur für den Käufer beträgt 3 % und wird im Falle eines Immobilienkaufs bei Abschluss des Vorvertrags bzw. Kaufvertrags gezahlt.
Sehr geehrte Kunden, die Besichtigung der Immobilie ist nur mit einem unterzeichneten Vermittlungsvertrag möglich, der die Grundlage für weitere Maßnahmen im Zusammenhang mit dem Verkauf und der Provision bildet, alles in Übereinstimmung mit dem Gesetz über die Vermittlung bei Immobilientransaktionen.
HINWEIS: Wir übernehmen keine Verantwortung für Fehler in den Objektbeschreibungen, möchten jedoch so präzise und genau wie möglich sein.
AGENTUR-ID-CODE: 1106
ID CODE: 1106