Exposé
Objektart:
Büro / Praxen
» Bueroflaeche
» Kauf
Bukovec Zelinski, Gewerbegebäude in ruhiger Lage, Bukovec Zelinski – 238m2
Angeboten von:
Dom Ekspert d.o.o.
Varazdinska cesta 111
10360 Sesvete
Kroatien
Telefon:+385 12013007
Ansprechpartner/in
Valentina Banovec| Telefon: | +385 1 2013 007 |
| Mobil | +385 99 462 0956 |
Das Wichtigste auf einen Blick:
| Objektnummer: | 8908364 |
Preise
| Kaufpreis | 178.000 € |
| Nebenkosten | keine Angabe |
Flächen
| Gesamtfläche | 237 m² |
| Bürofläche | 237 m² |
Objekt Adresse
10380 Sveti Ivan Zelina
- Zagreb (Region) [Zagrebacka]
Sonstige Angaben
| Baujahr | 1997 |
| Zimmer | 11 |
| Verfügbar ab | keine Angabe |
| Bad | 3 |
| Anzahl der Etagen im Haus | 3 |
| Bad | 3 |
Objektbeschreibung
Zu verkaufen: Gewerbegebäude mit 237.79 m² auf einem 567 m² großen Grundstück in Bukovec Zelinski, Sveti Ivan Zelina.
Objektübersicht:
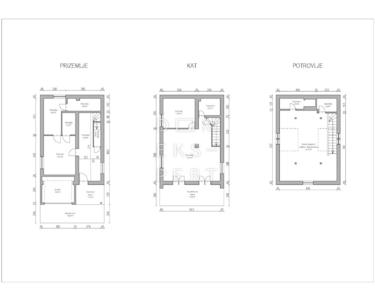
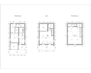
Dieses Gewerbegebäude erstreckt sich über drei Etagen – Erdgeschoss, Obergeschoss und Dachgeschoss – mit einer Gesamtfläche von 237.79 m² auf einem Grundstück von 567 m².
Raumaufteilung:
Erdgeschoss:
- Garage
- Überdachte Terrasse
- Eingangsflur
- Abstellraum unter der Treppe
- Zimmer
- Badezimmer
- Separates WC
- Heizraum/Abstellraum
Obergeschoss:
- Große Fläche
- Kleinere Fläche
- Badezimmer
- Unüberdachte Terrasse
Dachgeschoss:
- Küche mit Essbereich und Wohnzimmer
- Badezimmer
- Abstellraum
Die Etagen sind durch eine interne Treppe verbunden, während das Dachgeschoss als Wohnbereich ausgebaut ist.
Bau- und Renovierungsjahr:
- Das Gebäude wurde 1997 errichtet
- 2020 wurden alle Installationen im Dachgeschoss erneuert und das Dach mit Schindeln neu gedeckt
Ausstattung:
- Innen- und Außenfenster aus Holz
- Klimaanlage auf jeder Etage
Infrastruktur:
- Strom
- Stadtwasseranschluss
- Gasanschluss vorhanden
- Abwasserentsorgung über eine Sammelgrube
Für die Klimatisierung werden Klimageräte genutzt. Zur Nutzung der Gasheizung muss ein Gasboiler installiert werden.
Rechtlicher Status:
Die Eigentumsdokumentation ist vollständig und die Immobilie kann mit einem Bankkredit erworben werden.
Lage:
Das Gewerbegebäude befindet sich in Bukovec Zelinski, einer ruhigen Siedlung nahe Sveti Ivan Zelina.
- Sesvete: 14 km entfernt
- Anschluss an die Umgehungsstraße Sveta Helena: nur 5 km
KONTAKT:
Valentina Banovec
Festnetz: +385 1 2013 007
Mobil: +385 99 4620 956
E-Mail: valentina.banovec@domekspert.hr
ID CODE: 2608
Objektübersicht:
Dieses Gewerbegebäude erstreckt sich über drei Etagen – Erdgeschoss, Obergeschoss und Dachgeschoss – mit einer Gesamtfläche von 237.79 m² auf einem Grundstück von 567 m².
Raumaufteilung:
Erdgeschoss:
- Garage
- Überdachte Terrasse
- Eingangsflur
- Abstellraum unter der Treppe
- Zimmer
- Badezimmer
- Separates WC
- Heizraum/Abstellraum
Obergeschoss:
- Große Fläche
- Kleinere Fläche
- Badezimmer
- Unüberdachte Terrasse
Dachgeschoss:
- Küche mit Essbereich und Wohnzimmer
- Badezimmer
- Abstellraum
Die Etagen sind durch eine interne Treppe verbunden, während das Dachgeschoss als Wohnbereich ausgebaut ist.
Bau- und Renovierungsjahr:
- Das Gebäude wurde 1997 errichtet
- 2020 wurden alle Installationen im Dachgeschoss erneuert und das Dach mit Schindeln neu gedeckt
Ausstattung:
- Innen- und Außenfenster aus Holz
- Klimaanlage auf jeder Etage
Infrastruktur:
- Strom
- Stadtwasseranschluss
- Gasanschluss vorhanden
- Abwasserentsorgung über eine Sammelgrube
Für die Klimatisierung werden Klimageräte genutzt. Zur Nutzung der Gasheizung muss ein Gasboiler installiert werden.
Rechtlicher Status:
Die Eigentumsdokumentation ist vollständig und die Immobilie kann mit einem Bankkredit erworben werden.
Lage:
Das Gewerbegebäude befindet sich in Bukovec Zelinski, einer ruhigen Siedlung nahe Sveti Ivan Zelina.
- Sesvete: 14 km entfernt
- Anschluss an die Umgehungsstraße Sveta Helena: nur 5 km
KONTAKT:
Valentina Banovec
Festnetz: +385 1 2013 007
Mobil: +385 99 4620 956
E-Mail: valentina.banovec@domekspert.hr
ID CODE: 2608