Exposé
Objektart:
Haus
» Einfamilienhaus
» Kauf
Attraktive neue Villa mit Pool und Meerblick, Istrien, Sveti Lovreč
Angeboten von:
Alpha Luxe Group d.o.o.
Mate Vlasica 17
52440 Porec
Kroatien
www.alphaluxegroup.nekretnine1.hr
Ansprechpartner/in
Robert Budimir| Mobil | +385 95 363 1892 |
Das Wichtigste auf einen Blick:
| Objektnummer: | 8905619 |
Preise
| Kaufpreis | 860.000 € |
| Nebenkosten | keine Angabe |
Flächen
| Gesamtfläche | 150 m² |
| Grundstücksfläche | 690 m² |
Objekt Adresse
52448 Sveti Lovreč
- Istrien
Sonstige Angaben
| Baujahr | 2023 |
| Zimmer | 5 |
| Verfügbar ab | keine Angabe |
| Bad | 3 |
| Anzahl der Etagen im Haus | 1 |
| Bad | 3 |
Objektbeschreibung
Sveti Lovreč liegt inmitten üppiger Lavendelfelder im westlichen Teil der Halbinsel Istrien, im unmittelbaren Hinterland von Vrsar, Poreč und Rovinj, und ist eine der am besten erhaltenen mittelalterlichen Festungsstädte Istriens.
Die Lage der kleinen Stadt auf einem sanften Hügel, der das Gebiet dominiert, in dem sich bis zu 22 Siedlungen, Dörfer und Weiler verstreut haben, spricht für ihre bedeutende Rolle im Laufe der Geschichte.
Das Haus ist als eine Wohneinheit mit einer Nutzfläche von 161,2 m² konzipiert, die sich über zwei Etagen und eine Hoffläche von 619 m² erstreckt.
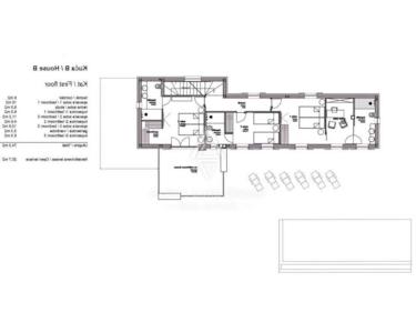
Im Erdgeschoss, von dem aus Zugang zu einer überdachten Terrasse mit Sommerküche und Esszimmer besteht, verbindet ein offen gestalteter Wohnbereich Wohnzimmer, Esszimmer und Küche. Ein Gästebad, ein Abstellraum und ein zusätzlicher Raum/Waschküche befinden sich alle im restlichen Erdgeschoss.
Ein Schlafzimmer mit eigenem Bad, ein eigenes Bad, ein Kleiderschrank und ein Arbeitszimmer befinden sich auf der ersten Ebene. Auf der zweiten Ebene befindet sich dagegen ein weiteres Schlafzimmer mit eigenem Bad und Zugang zu einer Außenterrasse mit Panoramablick auf die Region und das Meer.
Eine Fußbodenheizung und ein Gebläsekonvektor werden verwendet, um das Haus mit einer Wärmepumpe zu kühlen und zu heizen. Der Hof des Anwesens ist vollständig eingezäunt und ästhetisch gestaltet. Es verfügt über ein Sonnendeck und eine überdachte Sommerküche mit Toilette, die von einem 38 m² großen Überlaufpool mit Sonnendeck dominiert wird.
Diese Immobilie ist ideal für ein ruhiges Familienleben und eine Investition für die touristische Vermietung. Die Website, das Layout und die Annehmlichkeiten machen es perfekt für beide. Die beworbenen Kosten beinhalten eine schlüsselfertige Anordnung zum Kauf eines ausgestatteten und möblierten Hauses.
ID CODE: ALG-1443
Die Lage der kleinen Stadt auf einem sanften Hügel, der das Gebiet dominiert, in dem sich bis zu 22 Siedlungen, Dörfer und Weiler verstreut haben, spricht für ihre bedeutende Rolle im Laufe der Geschichte.
Das Haus ist als eine Wohneinheit mit einer Nutzfläche von 161,2 m² konzipiert, die sich über zwei Etagen und eine Hoffläche von 619 m² erstreckt.
Im Erdgeschoss, von dem aus Zugang zu einer überdachten Terrasse mit Sommerküche und Esszimmer besteht, verbindet ein offen gestalteter Wohnbereich Wohnzimmer, Esszimmer und Küche. Ein Gästebad, ein Abstellraum und ein zusätzlicher Raum/Waschküche befinden sich alle im restlichen Erdgeschoss.
Ein Schlafzimmer mit eigenem Bad, ein eigenes Bad, ein Kleiderschrank und ein Arbeitszimmer befinden sich auf der ersten Ebene. Auf der zweiten Ebene befindet sich dagegen ein weiteres Schlafzimmer mit eigenem Bad und Zugang zu einer Außenterrasse mit Panoramablick auf die Region und das Meer.
Eine Fußbodenheizung und ein Gebläsekonvektor werden verwendet, um das Haus mit einer Wärmepumpe zu kühlen und zu heizen. Der Hof des Anwesens ist vollständig eingezäunt und ästhetisch gestaltet. Es verfügt über ein Sonnendeck und eine überdachte Sommerküche mit Toilette, die von einem 38 m² großen Überlaufpool mit Sonnendeck dominiert wird.
Diese Immobilie ist ideal für ein ruhiges Familienleben und eine Investition für die touristische Vermietung. Die Website, das Layout und die Annehmlichkeiten machen es perfekt für beide. Die beworbenen Kosten beinhalten eine schlüsselfertige Anordnung zum Kauf eines ausgestatteten und möblierten Hauses.
ID CODE: ALG-1443