Exposé
Objektart:
Büro / Praxen
» Bueroflaeche
» Miete
Standort: Büro / Praxen »
Deutschland » Baden-Württemberg » Esslingen (Kreis) » Esslingen
Büro im Zentrum von Esslingen
Lage bei Stadtmitte
Das Wichtigste auf einen Blick:
| Objektnummer: | 8859573 |
Preise
| Miete für das Objekt | Auf Anfrage |
| Nebenkosten | keine Angabe |
Flächen
| Gesamtfläche | 250 m² |
| Bürofläche | 200 m² |
| Maklerprovision | keine Provision, courtagefrei |
Objekt Adresse
73728 Esslingen
- Baden-Württemberg
Sonstige Angaben
| Baujahr | 2009 |
| Verfügbar ab | nach Absprache |
| Garage/Stellplätze | 3 |
| Inserat befindet sich im Stockwerk | 1 |
| Garage/Stellplätze | 3 |
| Heizungsart | Zentralheizung |
| Energieträger/Befeuerung | Gas |
Objektbeschreibung
Das Stadtzentrum ist pures Leben. Kurze Wege, viele Freizeitangebote und das Gefühl, im Herzen der Stadt zu wohnen. Immobilien im Herzen eines Ortes zeichnen sich nicht wie die auf dem Land oder am Stadtrand durch eine ruhige Lage aus. Aber sie sind für viele Menschen der Inbegriff des Szenelebens und bei Stadtfans extrem beliebt. Solche Häuser und Wohnungen erlauben es, „mal eben“ auszugehen oder die neuesten Ausstellungen oder Konzerte zu besuchen. Besonders beliebt sind Häuser in der Altstadt - mehr Zentrum geht nicht.
Ausstattung
Bemerkungen:
Büroräume mit flexibler Nutzung. Küche,
Tageslicht von allen vier Seiten, zwei davon in einen begrünten Innenhof
Separaten Zugang .
Lage des Objektes
Bisherige Nutzung Schulungszentrum
Die Räume liegen unmittelbar an der Altstadt von Esslingen, direkt neben dem Projekt DICK mit Kino, Restaurant.
3 TG Stellplätze im Haus und 3 Stellplätze Außenbereich .
Für Ihre Kunden Parkhaus gegenüber
Zufahrt über verkehrsberuhigte Straße
Bahnhof und Buslinien sind fußläufig zu erreichen
Die Räume liegen unmittelbar an der Altstadt von Esslingen, direkt neben dem Projekt DICK mit Kino, Restaurant.
3 TG Stellplätze im Haus und 3 Stellplätze Außenbereich .
Für Ihre Kunden Parkhaus gegenüber
Zufahrt über verkehrsberuhigte Straße
Bahnhof und Buslinien sind fußläufig zu erreichen
Sonstige Informationen
Heizungsart: Zentralheizung
Energieträger: Gas
Energieausweis nicht vorhanden
MIETE VB 13,25 € Netto zuzüglich Parkplätze
Alternativ Staffelmiete 12,75 €
VERMIETBAR AB 1.3.25 bzw nach Absprache
BEURTEILUNG BISHERIGE NUTZER
Die momentanen Nutzer der Räume , sie arbeiten für ein Unternehmen mit vielen Niederlassungen im Bereich Erwachsenenbildung, haben uns berichten: " Dies ist der beste Standort der Firma . Wir sind begeistert von der Ruhe. Wir sind in wenigen Minuten in der Kernzone von Esslingen. Durch den Innenhof sehen wir immer ins Grüne. Die Größe der Einheit ist optimal für eine gute Teambildung. Kurz gesagt, es macht uns Spass dort zu arbeiten."
Makleranfragen nicht erwünscht. Nach § 7 UWG sind unaufgeforderte Kontaktaufnahmen durch Makler ohne ausdrückliche Einwilligung des Empfängers verboten!
Büro 1.OG Westseite
Zugang Büro
Büro 1.OG
Büro 1.OG und Stellplätze
Büro 1.OG Innenhof
Wartebereich
Empfang
Seminarraum Bild 1
Seminarraum Bild 2
Besprechung
Büro
Flur
Küche
Toilette
Restaurant, Cafe, Kinocenter
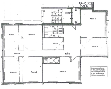
Grundriss variabel
alternativer Grundriss
Lageplan