Exposé
Objektart:
Haus
» Doppelhaushaelfte
» Kauf
Standort: Haus »
Deutschland » Niedersachsen » Stade (Kreis) » Oldendorf
Ideal für die junge Familie: Geräumige Doppelhaushälfte mit eigener PV-Anlage!
Ansicht aus der Sackgasseu01
Das Wichtigste auf einen Blick:
| Objektnummer: | 8856811 |
Preise
| Kaufpreis | 386.000 € |
| Nebenkosten | keine Angabe |
Flächen
| Wohnfläche | 140,5 m² |
| Nutzfläche | 20 m² |
| Grundstücksfläche | 434 m² |
Objekt Adresse
21726 Oldendorf
Sonstige Angaben
| Baujahr | 2001 |
| Zimmer | 5 |
| Verfügbar ab | nach Vereinbarung ! |
| Bad | 2 |
| Anzahl der Etagen im Haus | 1 |
| Bad | 2 |
| Terrassen | 1 |
| Energieausweistyp | Verbrauch |
| Ausstellungsdatum | 06. 10. 2024 |
| Gültig bis | 2034-10-07 |
| Baujahr (laut Energieausweis) | 2022 |
| Energieeffizienzklasse | C |
| Energieverbrauchkennwert | 85.80 kWh/(m²*a) |
| Heizungsart | Zentralheizung |
| Energieträger/Befeuerung | Gas |
Objektbeschreibung
Ihr Einstieg ins Wohnungseigentum: Geräumige, solide und gepflegte Doppelhaushälfte - ideal für die junge Familie zu verkaufen.
Diese attraktive Doppelhaushälfte mit Carport und Solaranlage in Oldendorf wartet auf Sie!
KEINE ZUSÄTZLICHE KÄUFERCOURTAGE !
Diese attraktive Doppelhaushälfte mit Carport und Solaranlage in Oldendorf wartet auf Sie!
KEINE ZUSÄTZLICHE KÄUFERCOURTAGE !
Ausstattung
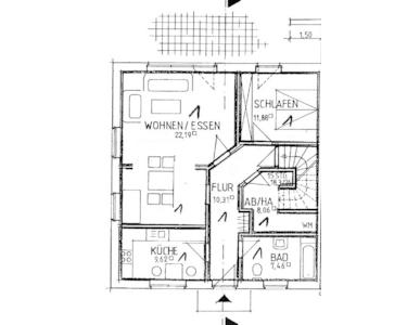
Diese Doppelhaushälfte mit pflegeleichtem Gartengrundstück bietet Ihnen und Ihrer Familie im Erdgeschoss eine Küche, ein geräumiges Wohn-/Esszimmer mit Zugang zur schönen Terrasse, ein Arbeits-/Kinderzimmer, ein Gästebad sowie einen Technik-/Abstellraum.
Abgerundet wird das Raumangebot durch 3 weitere Zimmer im Dachgeschoss sowie das Vollbad und dem riesigen ausbaubaren Spitzboden (aktuell Abstellraum).
Die Gastherme wurde im Jahr 2022 erneuert.
Durch die vorhandene PV-Anlage, die bereits im Kaufpreis enthalten ist, erzielen Sie aktuell aus der Einspeisevergütung zusätzliche Einnahmen und können später nach Vertragsablauf den produzierten Strom zur Eigennutzung verwenden.
Gerne leiten wir Ihre Kaufpreisvorstellung an den Eigentümer nach einer persönlichen Besichtigung des Hauses weiter.
Abgerundet wird das Raumangebot durch 3 weitere Zimmer im Dachgeschoss sowie das Vollbad und dem riesigen ausbaubaren Spitzboden (aktuell Abstellraum).
Die Gastherme wurde im Jahr 2022 erneuert.
Durch die vorhandene PV-Anlage, die bereits im Kaufpreis enthalten ist, erzielen Sie aktuell aus der Einspeisevergütung zusätzliche Einnahmen und können später nach Vertragsablauf den produzierten Strom zur Eigennutzung verwenden.
Gerne leiten wir Ihre Kaufpreisvorstellung an den Eigentümer nach einer persönlichen Besichtigung des Hauses weiter.
Lage des Objektes
Oldendorf bietet die perfekte Mischung aus ländlicher Idylle vereint mit den Vorzügen der Stadt. Alles, was Sie für das tägliche Leben benötigen (großer Supermarkt, eine Apotheke, eine Drogerie und zwei Bankfilialen) ist fußläufig zu erreichen. Ebenfalls vor Ort befinden sich Ärzte und Zahnärzte. Auch den Freizeitmöglichkeiten, mit dem Vereinsleben, einem Fitnessstudio oder ausgiebigen Touren durch die Natur, sind keine Grenzen gesetzt.
In Oldendorf gibt es ein Schulzentrum mit Grund- und Oberschule sowie einen Kindergarten mit Krippe. Gymnasien und andere weiterführende Schulen finden Sie unter anderem in Stade oder Bremervörde.
In ca. 5-10 Autominuten erreichen Sie den nächst größeren Ort Himmelpforten, der neben Bäckereien, Cafe`s und weiteren Einkaufsmöglichkeiten auch über einen Bahnhof mit HVV Anschluss nach Hamburg und Cuxhaven verfügt.
Nach ca. 20 Autominuten erreichen Sie die Hansestadt Stade mit ihrer wunderschönen Altstadt, welche auch immer wieder einen Besuch wert ist und ebenfalls weitere vielfältige Einkaufs- und Freizeitmöglichkeiten bietet.
In Oldendorf gibt es ein Schulzentrum mit Grund- und Oberschule sowie einen Kindergarten mit Krippe. Gymnasien und andere weiterführende Schulen finden Sie unter anderem in Stade oder Bremervörde.
In ca. 5-10 Autominuten erreichen Sie den nächst größeren Ort Himmelpforten, der neben Bäckereien, Cafe`s und weiteren Einkaufsmöglichkeiten auch über einen Bahnhof mit HVV Anschluss nach Hamburg und Cuxhaven verfügt.
Nach ca. 20 Autominuten erreichen Sie die Hansestadt Stade mit ihrer wunderschönen Altstadt, welche auch immer wieder einen Besuch wert ist und ebenfalls weitere vielfältige Einkaufs- und Freizeitmöglichkeiten bietet.
Sonstige Informationen
EnEV: Der Energiekennwert gemäß verbrauchsorientiertem Energieausweis vom 08.10.2024 beträgt für dieses Gebäude 85,8 kWh/(m2*a). Die Anlagentechnik ist aus dem Jahr 2001/2022 (neue Heizung). Der Energieträger ist Erdgas. Die Einteilung der Energieeffizienzklasse erfolgte mit "C", siehe auch Energieausweis, den wir zum Besichtigungstermin bereithalten.
GELDWÄSCHE:
Als Bank und Immobilienmaklerunternehmen ist die Volksbank eG nach § 2 Abs. 1 Nr. 14 und § 11 Abs. 1, 2 Geldwäschegesetz (GwG) dazu verpflichtet, bei der Begründung einer Geschäftsbeziehung die Identität des Vertragspartners festzustellen und zu überprüfen, bzw. sobald ein ernsthaftes Interesse an der Durchführung des Immobilienkaufvertrages besteht. Hierzu ist es erforderlich, dass wir nach § 11 Abs. 4 GwG die relevanten Daten Ihres Personalausweises festhalten (wenn Sie als natürliche Person handeln) beispielsweise mittels einer Kopie. Bei einer juristischen Person benötigen wir eine Kopie des Handelsregisterauszugs, aus welchem der wirtschaftlich Berechtigte hervorgeht. Das Geldwäschegesetz sieht vor, dass der Makler die Kopien bzw. Unterlagen fünf Jahre aufbewahren muss. Als unser Vertragspartner haben Sie auch ein Mitwirkungspflicht nach § 11 Abs. 6 GwG.
HAFTUNG:
Wir weisen darauf hin, dass die von uns weitergegebenen Objektinformationen, Unterlagen, Pläne etc. vom Verkäufer bzw. Vermieter stammen. Eine Haftung für die Richtigkeit oder Vollständigkeit der Angaben – trotz bestmöglicher Prüfung - übernehmen wir daher nicht. Es obliegt daher unseren Kunden, die darin enthaltenen Objektinformationen und Angaben auf ihre Richtigkeit hin zu überprüfen.
Ferner können wir auch nicht gewährleisten, dass zum Zeitpunkt des Zugangs des Exposés oder zu einem späteren Zeitpunkt das Objekt noch zum Verkauf / zur Vermietung (bzw. sonstige Zwischenverwertung) steht, insofern sind unsere Immobilienangebote sind freibleibend und vorbehaltlich Irrtümer!
Seitenansicht
Garten-/Terrassenansicht
Küche
Wohn-/Esszimmer
Wohn-/Esszimmer
Duschbad EG
Zimmer DG
Zimmer DG
Zimmer DG
Bad mit Wanne u. Dusche DG
Bad mit Wanne u. Dusche DG
die Aufteilung im EG
die Aufteilung im DG
Grundstücksteilung, DHH 1
4_Streetview_Lage_ungefaehr