Exposé
Objektart:
Büro / Praxen
» Bueroflaeche
» Miete
Standort: Büro / Praxen »
Deutschland » Bremen » Bremen, Stadt (Kreis) » Bremen
Große Kellerlagerräume mit geräumigen Büroeinheiten und Stellplätzen!
Büro mit Lagerfläche zu vermieten – Hechler & Twachtmann Immobilien GmbH
Das Wichtigste auf einen Blick:
| Objektnummer: | 8855591 |
Preise
| Kaltmiete | 1.100 € |
| Warmmiete | 1.800 € |
| Kaltmiete (netto) | 1.100 € |
| Nebenkosten | 700 € |
| Heizkosten enthalten | Ja |
| Kaution | 2.200 € |
Flächen
| Bürofläche | 140 m² |
| Maklerprovision | Im Erfolgsfall sind vom Mieter 3,57 Monatskaltmieten inkl. MwSt. zu zahlen! |
Objekt Adresse
28219 Bremen
- Bremen
Sonstige Angaben
| Baujahr | 1963 |
| Verfügbar ab | 01.09.25 |
| Inserat befindet sich im Stockwerk | 0 |
| Fahrstuhl | Ja |
| Keller | Ja |
| Energieausweistyp | Verbrauch |
| Gültig bis | 2025-12-17 |
| Baujahr (laut Energieausweis) | 1963 |
| Wesentlicher Energieträger | Oel |
Objektbeschreibung
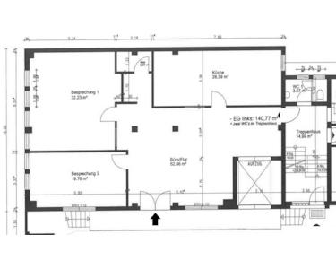
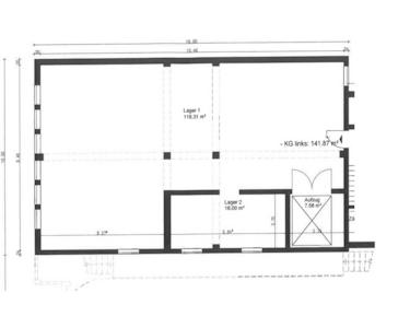
Im Bremer Ortsteil Osterfeuerberg, direkt an der Zufahrt zur Bundesstraße (B6), können wir Ihnen derzeit auf einem Gewerbegrundstück dieses ca. 140 m² große Büro mit ca. 141 m² Kellerlager anbieten. Das Gebäude wurde 1963 erbaut und bis heute ist es ein Ort, wo sich immer mehrere Gewerbetreibende unterschiedlicher Geschäftsfelder ansiedeln.
Die Gewerbefläche liegt im Hochparterre- und Kellergeschoss und ist von einer Rampe mit Treppenaufgang zu erreichen. Über eine doppelflügelige Eingangstür ist die Bürofläche mit ca. 140 m² im Hochparterre zu erreichen. Hier werden Sie von einem ca. 52 m² großen Empfangs-/Großraumbüro empfangen. Von diesem sind zwei weitere Büroräume mit großen Fensterfronten sowie ein separater Server- oder Archivraum zu erreichen. Ihnen und Ihren Mitarbeitern steht außerdem ein ca. 26 m² großer Aufenthaltsraum mit Einbauküche zur Verfügung.
Die Fläche ist mit einem gepflegten Nadelfilzteppichboden und Deckenbeleuchtung ausgestattet. Eine EDV-Verkabelung ist vorhanden. Mit einer Internetgeschwindigkeit von bis zu 1.000 MBit/s können Sie hier problemlos Ihrer Bürotätigkeit nachgehen.
Über das Treppenhaus sowie dem Lastenaufzug gelangen Sie in den Kellerbereich, in dem sich die Lagerfläche von insgesamt rund 141 m² Größe befindet. Diese verteilt sich auf 2 Lagerräume. Durch die Kellerfenster werden die Flächen angenehm beleuchtet – trotz der Lage im Untergeschoss kann hier das warme Tageslicht empfangen werden.
Vor dem Büro stehen Ihnen Pkw-Stellplätze für Kunden oder den Eigengebrauch zur Verfügung. Diese können für je € 25,- zusätzlich angemietet werden.
Zögern Sie nicht, uns für weitere Informationen oder eine Besichtigung zu kontaktieren. Wir freuen uns darauf!
Die Gewerbefläche liegt im Hochparterre- und Kellergeschoss und ist von einer Rampe mit Treppenaufgang zu erreichen. Über eine doppelflügelige Eingangstür ist die Bürofläche mit ca. 140 m² im Hochparterre zu erreichen. Hier werden Sie von einem ca. 52 m² großen Empfangs-/Großraumbüro empfangen. Von diesem sind zwei weitere Büroräume mit großen Fensterfronten sowie ein separater Server- oder Archivraum zu erreichen. Ihnen und Ihren Mitarbeitern steht außerdem ein ca. 26 m² großer Aufenthaltsraum mit Einbauküche zur Verfügung.
Die Fläche ist mit einem gepflegten Nadelfilzteppichboden und Deckenbeleuchtung ausgestattet. Eine EDV-Verkabelung ist vorhanden. Mit einer Internetgeschwindigkeit von bis zu 1.000 MBit/s können Sie hier problemlos Ihrer Bürotätigkeit nachgehen.
Über das Treppenhaus sowie dem Lastenaufzug gelangen Sie in den Kellerbereich, in dem sich die Lagerfläche von insgesamt rund 141 m² Größe befindet. Diese verteilt sich auf 2 Lagerräume. Durch die Kellerfenster werden die Flächen angenehm beleuchtet – trotz der Lage im Untergeschoss kann hier das warme Tageslicht empfangen werden.
Vor dem Büro stehen Ihnen Pkw-Stellplätze für Kunden oder den Eigengebrauch zur Verfügung. Diese können für je € 25,- zusätzlich angemietet werden.
Zögern Sie nicht, uns für weitere Informationen oder eine Besichtigung zu kontaktieren. Wir freuen uns darauf!
Ausstattung
- 1 Großraumbüro/ Empfangsbereich
- 2 separate Büroräume
- 1 Archiv oder Serverraum
- Aufenthaltsraum mit Küchenzeile
- Nadelfilzteppich
- Rasterdecke mit integrierter Beleuchtung
- Kabelkanäle mit CAT 7 Datenkabel
- Internetverbindung bis 1.000 MBit/s
- WCs im Treppenhaus
- Außenrollläden
- Lastenaufzug im EG und Keller
- 2 große Lagerräume im Keller
- Betonboden
- Gaszentralheizung
- Durchlauferhitzer
- bis zu 4 Pkw-Stellplätze nach Absprache
- 2 separate Büroräume
- 1 Archiv oder Serverraum
- Aufenthaltsraum mit Küchenzeile
- Nadelfilzteppich
- Rasterdecke mit integrierter Beleuchtung
- Kabelkanäle mit CAT 7 Datenkabel
- Internetverbindung bis 1.000 MBit/s
- WCs im Treppenhaus
- Außenrollläden
- Lastenaufzug im EG und Keller
- 2 große Lagerräume im Keller
- Betonboden
- Gaszentralheizung
- Durchlauferhitzer
- bis zu 4 Pkw-Stellplätze nach Absprache
Lage des Objektes
Die Büro- und Lagerfläche befinden sich im Bremer Stadtteil Osterfeuerberg und bieten eine optimale Verkehrsanbindung an die B6 sowie an die A27. Durch die zentrale Lage und die gute Infrastruktur haben sich hier einige Firmen, unter anderem Biomaris und Lidl, angesiedelt. Die Auf- und Abfahrt zum Zubringer Überseestadt, der zur A27 und B75 führt, liegt nur ca. 60 Meter entfernt. Auch die Bremer Innenstadt ist sowohl mit dem Auto als auch mit den öffentlichen Verkehrsmitteln in nur wenigen Minuten zu erreichen – kurzum, ein super, zentraler Standort mitten in Bremen!
Sonstige Informationen
Es liegt ein Energieverbrauchsausweis vor.
Dieser ist gültig bis 17.12.2025.
Endenergieverbrauch für die Wärme beträgt 151.20 kwh/(m²*a).
Endenergieverbrauch für den Strom beträgt 1.50 kwh/(m²*a).
Wesentlicher Energieträger der Heizung ist Öl.
Die Fläche kann als Büro, Lager, und/oder Werkstatt genutzt werden. Eine andere Nutzung ist leider nicht möglich.
Zu den genannten Nebenkosten rechnen Sie bitte die Kosten für Strom, welche Sie eigenständig mit dem Versorgungsunternehmen abrechnen.
Hinweis: inzwischen wurde die Öl-Heizung durch eine Gasheizung ersetzt!
Bitte beachten Sie, dass für die Anmietung dieser Immobilie auf Wunsch des Vermieters folgende Voraussetzungen gelten:
- Mindestvertragslaufzeit von 2 Jahren mit Verlängerungsoption
- Staffelmiete alle 2 Jahre um € 50,00
- Nachweis über positive Bonität (durch Vorlage aktueller BWA)
- bei Neugründungen ggf. erhöhte Kaution nach Absprache
- keine negativen Schufa-Einträge
- Stellplatzmiete pro Stellplatz € 25,00
SCHON GEWUSST...?
Wir veröffentlichen unsere Immobilienangebote zuerst auf unserer Website. Die Vermarktung in den bekannten Immobilien-Portalen findet – sofern erforderlich – bis zu einer Woche später statt.
Außenansicht – Rampe
Rampe
Großraumbüro/ Empfangsbereich
Großraumbüro mit Zugang zum Lastenaufzug
Lastenaufzug
Großraumbüro/ Empfangsbereich
Großraumbüro/ Empfangsbereich
Büroraum 1
Büroraum 2
großer Küchen- und Aufenthaltsraum
Einbauküche
großer Lagerraum im Keller
großer Lagerraum im Keller
weiterer Lagerram im Keller
Stellplätze für Fahrräder
Außenansicht
Grundriss EG vorne-links
Grundriss KG vorne-links