Exposé
Objektart:
Zinshaus Renditeobjekt
» Wohnanlagen
» Kauf
Standort: Zinshaus Renditeobjekt »
Deutschland » Niedersachsen » Emsland (Kreis) » Sögel
Kapitalanlage in Sögel: Neubau Mehrfamilienhaus KfW-40-Standard direkt neben einer Pflegeeinrichtung!
Kapitalanlage - Renditeimmobilie in Sögel
Das Wichtigste auf einen Blick:
| Objektnummer: | 8837722 |
Preise
| Kaufpreis | 1.583.000 € |
| Nebenkosten | keine Angabe |
Flächen
| Wohnfläche | 447 m² |
| Grundstücksfläche | 585 m² |
| Maklerprovision | 2,975 % |
Objekt Adresse
49751 Sögel
- Niedersachsen
Sonstige Angaben
| Baujahr | 2024 |
| Verfügbar ab | keine Angabe |
| Fahrstuhl | Ja |
| Keller | Ja |
| Baujahr (laut Energieausweis) | 2024 |
| Heizungsart | Zentralheizung |
Objektbeschreibung
Dieses Mehrfamilienhaus bietet neben einer überschaubaren Größe von fünf Eigentumswohnungen eine sehr gute und funktionale Raumaufteilung. Die Wohnungen bieten einen hohen Wohnkomfort und die gewünschte Lebensqualität. Entdecken Sie diese Immobilie mit einer hochwertigen Ausstattung, ansprechender und durchdachter Architektur. Profitieren Sie von einer schönen Umgebung und der zugleich guten Infrastruktur in Sögel. In einer zentralen Ortskernlage entsteht dieses attraktive Neubauvorhaben. Es wird hohen und modernen Wohnansprüchen in jeder Hinsicht gerecht. Die insgesamt nur 5 Eigentumswohnungen mit sehr interessanter Architektur, individuellen Grundriss- und Raumplanungen sowie Wohnungsgrößen zwischen ca. 79 m² bis 128 m² Wohnfläche bieten verschiedenen Zielgruppen ein neues Zuhause. Großzügige Terrassen/Balkone/Dachterrassen, interessante Fenstergestaltungen und freundliche Wohnräume geben diesem Haus den besonderen Charme. Hell und großzügig präsentieren sich diese anspruchsvollen Eigentumswohnungen und entfalten insbesondere über die gelungene Raumaufteilung hinaus ein hohes Maß an Wohnqualität. Besonders hervorzuheben ist die überdachte Terrasse, auf der Sie gemütliche Stunden im Freien verbringen können. Ein PKW-Stellplatz je Wohnung, ein Aufzug und ein gesonderter Kellerbereich je Wohnung runden das Angebot ab. Die Wohnungen bestechen durch ihre moderne Ausstattung und die ansprechende Raumaufteilung. Diese Immobilie befindet sich in einer attraktiven Lage und bietet somit eine optimale Wohnqualität. Die Wohnungen sind durch das gemeinschaftlich genutzte Treppenhaus sowie mit dem Fahrstuhl bequem erreichbar. Besonders nennenswert ist der durchdachte Grundriss mit der sehr guten Raumaufteilung.
Ausstattung
Dieses interessante Mehrfamilienhaus bietet Ihnen zusätzliche Vorteile, die es zu einer attraktiven Kapitalanlage macht:
• Neubau-Erstbezug mit zeitlos hochwertiger Ausstattung
• KfW 40 Standard für hohe Energieeffizienz
• Überdachte Terrasse/Balkon für erhöhten Wohnkomfort
• Inklusive PKW-Stellplatz je Wohnung
• Fahrstuhl
• Großzügige, helle Räume mit modernen Materialien
• Ideal für Mieter durch zentrale Lage und reiflich durchdachte Raumaufteilung
Zeitlos hochwertige Materialien warten auf Sie. Ausgewählte Bodenbeläge in Kombination mit der Fußbodenheizung sorgen für eine angenehme Wärme mit modernem Charakter. Die Fenster durchfluten die Räume mit Licht und ermöglichen einen angenehmen Blick in die Nachbarschaft. Dieses Mehrfamilienhaus entspricht genau Ihren Vorstellungen und Wünschen? - schicken Sie uns gerne eine schriftliche Anfrage oder rufen Sie uns einfach an.
• Neubau-Erstbezug mit zeitlos hochwertiger Ausstattung
• KfW 40 Standard für hohe Energieeffizienz
• Überdachte Terrasse/Balkon für erhöhten Wohnkomfort
• Inklusive PKW-Stellplatz je Wohnung
• Fahrstuhl
• Großzügige, helle Räume mit modernen Materialien
• Ideal für Mieter durch zentrale Lage und reiflich durchdachte Raumaufteilung
Zeitlos hochwertige Materialien warten auf Sie. Ausgewählte Bodenbeläge in Kombination mit der Fußbodenheizung sorgen für eine angenehme Wärme mit modernem Charakter. Die Fenster durchfluten die Räume mit Licht und ermöglichen einen angenehmen Blick in die Nachbarschaft. Dieses Mehrfamilienhaus entspricht genau Ihren Vorstellungen und Wünschen? - schicken Sie uns gerne eine schriftliche Anfrage oder rufen Sie uns einfach an.
Lage des Objektes
Sögel ist ein malerischer Ort im Landkreis Emsland im westlichen Niedersachsen. Die Gemeinde Sögel zeichnet sich durch ein charmantes Ortsbild aus, das u.a. von der schönen Schlossanlage Clemenswerth geprägt ist. Der Ortskern von Sögel lädt zum Bummeln und die Schlossanlage zu erholsamen Spaziergängen ein. Die Gemeinde Sögel bietet Ihnen eine Vielzahl von Freizeitmöglichkeiten in der umliegenden Natur sowie Freizeit- und Sportaktivitäten. Sögel liegt auf dem "Hümmling" inmitten einer grünen und hügeligen Landschaft, die zum Wandern, Radfahren und Erkunden einlädt. Alle Einkaufsmöglichkeiten, Krankenhaus - Hümmling-Hospital, Ärzte, Apotheken, Banken, Schulen, Kindergarten, Freizeit- und Kulturangebote usw. befinden sich in unmittelbarer Nähe und sind in wenigen Gehminuten erreicht.
Sonstige Informationen
Heizungsart: Wärmepumpe
Baujahr: 2024
- Angaben zum Energieausweis: Ein gültiger Energieausweis liegt aktuell noch nicht vor.
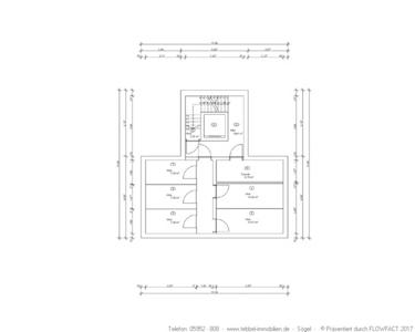
- Bei den Außenansichten, Grundrissplänen und Lageplan handelt es sich um Visualisierungen! Die definitiven Ansichten, Grundrisspläne und Lageplan können Änderungen beinhalten!
Ansicht
Vorderansicht
Rückansicht
Rückansicht
Erdgeschoss
Obergeschoss
Staffelgeschoss - Penthouse
Kellergeschoss