Exposé
Objektart:
Büro / Praxen
» Miete
Standort: Büro / Praxen »
Deutschland » Sachsen » Leipzig, Stadt (Kreis) » Leipzig
BUERO.flächen in der City
Ansicht
Das Wichtigste auf einen Blick:
| Objektnummer: | 8832541 |
Preise
| Kaltmiete | 14 € |
| Kaltmiete (netto) | 14 € |
| Nebenkosten | keine Angabe |
| Mietpreis pro m² | 14 € |
Flächen
| Bürofläche | 1.084 m² |
| Bürofläche | 1.084 m² |
| Fläche teilbar ab | 1084 m² |
| Maklerprovision | provisionsfrei |
Objekt Adresse
04109 Leipzig
Sonstige Angaben
| Verfügbar ab | keine Angabe |
Objektbeschreibung
Das Geschäftshaus Katharinenstraße 17 ist direkt am Sachsenplatz gelegen mit Blick zum neuen Bildermuseum. Das historische Gebäude ist auch bekannt unter dem Namen KRETSCHMANNS HOF. Im Erdgeschoss befinden sich Laden- und in den Obergeschossen Büroflächen. Die Etagen werden über einen Aufzug erschlossen. Das Gebäude wurde 2009 aufwendig und unter Denkmalschutzrichtlinien saniert. Die einzelnen Einheiten werden über mehrere Innenhöfe belichtet.
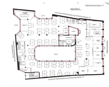
Die angebotene Mietfläche im 3. Obergeschoss über ca. 1.084 m² ist teilklimatisiert und verfügt über 2 Eingangsbereiche. Der Mietbereich kann nach den Raumprofil des Mieters ausgebaut und ausgestattet werden. Stellplätze können in den umliegenden Tiefgaragen/Parkhäusern genutzt werden. Der Mietpreis richtet sich nach Ausstattung, Lage im Gebäude und Vertragslaufzeit und liegt zwischen 14,00 EUR/ m² und 18,00 EUR/ m².
Die angebotene Mietfläche im 3. Obergeschoss über ca. 1.084 m² ist teilklimatisiert und verfügt über 2 Eingangsbereiche. Der Mietbereich kann nach den Raumprofil des Mieters ausgebaut und ausgestattet werden. Stellplätze können in den umliegenden Tiefgaragen/Parkhäusern genutzt werden. Der Mietpreis richtet sich nach Ausstattung, Lage im Gebäude und Vertragslaufzeit und liegt zwischen 14,00 EUR/ m² und 18,00 EUR/ m².
Lage des Objektes
Die zentrale Lage und das gewachsene, vielfältige Umfeld haben die historische Innenstadt zu einer der beliebtesten Bürostandorte werden lassen. Alle wichtigen Einrichtungen wie das Neue Rathaus, die verschiedensten Banken, der Hauptbahnhof und die Leipziger Universität sind von hier aus innerhalb weniger Minuten zu erreichen. Die Anbindung an den Öffentlichen Nahverkehr ist ideal über den Innenstadtring gegeben, über den auch der Autobahnanschluß A 14 gut zu erreichen ist.
Sonstige Informationen
Flächenanmietung leicht gemacht? Bitte sprechen Sie uns an, gern stellen wir Ihnen eine Auswahl geeigneter Büroflächenangebote zusammen. Für Fragen, ein persönliches Gespräch oder auch eine persönliche Terminvereinbarung stehen wir Ihnen gern telefonisch unter 0341 | 5643000 zur Verfügung.
Ansicht
Treppenhaus
Innenansicht
Objekt-Bild
Objekt-Bild
Objekt-Bild
Objekt-Bild
Empfang
Bestand Grundriss
Screenshot 2023-07-26 113801