Exposé
Objektart:
Büro / Praxen
» Bueroflaeche
» Miete
Standort: Büro / Praxen »
Deutschland » Nordrhein-Westfalen » Düsseldorf, Stadt (Kreis) » Düsseldorf
Kennedydamm Düsseldorf I Neue Büroflächen am Markt I hochwertig & provisionsfrei
Das Wichtigste auf einen Blick:
| Objektnummer: | 8831839 |
Preise
| Nebenkosten | keine Angabe |
| Mietpreis pro m² | 17,5 € |
Flächen
| Gesamtfläche | 294 m² |
| Bürofläche | 294 m² |
Objekt Adresse
Tersteegenstraße 28
40474 Düsseldorf
- Nordrhein-Westfalen
Sonstige Angaben
| Baujahr | 1998 |
| Verfügbar ab | nach Absprache |
| Anzahl der Etagen im Haus | 7 |
| Inserat befindet sich im Stockwerk | 1 |
| Fahrstuhl | Ja |
| Gültig bis | 2027-09-13 |
| Baujahr (laut Energieausweis) | 1998 |
Objektbeschreibung
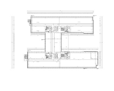
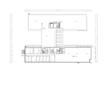
Das Gebäude hat eine H-förmige Struktur und besteht aus zwei parallelen Gebäudeteilen mit jeweils 4 bzw. 7 Obergeschossen und einem mittleren, 4-geschossigen Verbindungstrakt. Empfangen werden Nutzer wie Besucher in einer großzügigen und repräsentativen Eingangshalle. Die einzelnen Geschosse bieten dem Nutzer Möglichkeiten zur Realisierung unterschiedlicher Bürotypen ( Einzel-, gruppen- oder Großraumbüro ) in diversen Grundrisskombinationen.
Ausstattung
- 4 Personenaufzüge
- modern eingerichtete Teeküche pro Mieteinheit
- flexible Flächenaufteilung
- außenliegender elektrischer Sonnenschutz pro Fensterachse ( außer Nordseite )
- Hohlraumboden
- abgehängte Decken mit integrierter BAP-Beleuchtung
- modern eingerichtete Teeküche pro Mieteinheit
- flexible Flächenaufteilung
- außenliegender elektrischer Sonnenschutz pro Fensterachse ( außer Nordseite )
- Hohlraumboden
- abgehängte Decken mit integrierter BAP-Beleuchtung
Lage des Objektes
Das Objekt liegt im Düsseldorfer Stadtteil Golzheim und ist vom südlich gelegenen Bürostandort „Kennedydamm“, an dem Unternehmen wie E.ON und L’Oreal ansässig sind, durch die B7/Theodor-Heuss-Brücke räumlich getrennt. Während rund um das Objekt Büronutzungen dominieren, nimmt nach Norden und Westen der Anteil der Wohnbebauung zu. In Nähe des Gebäude liegt das “Haus der Ärzteschaft“, in dem die Kassenärztliche Vereinigung Nordrhein, die Ärztekammer Nordrhein sowie die Nordrheinische Ärzteversorgung ansässig sind. Die Messe sowie der Flughafen sind in wenigen Minuten erreichbar. Auch
die Rheinuferpromenade sowie die Altstadt Düsseldorfs liegen in unmittelbarer Nähe.
die Rheinuferpromenade sowie die Altstadt Düsseldorfs liegen in unmittelbarer Nähe.
Grundriss | 2. OG
Grundriss | 3. OG
Grundriss | 4. OG
Grundriss | 6. OG