Exposé
Objektart:
Einzelhandel
» Ladenlokal
» Miete
Standort: Einzelhandel »
Deutschland » Nordrhein-Westfalen » Olpe (Kreis) » Finnentrop-Heggen
/ Moderne und helle Büro- Praxisfläche! Viele Möglichkeiten in Heggen!
Bild1
Das Wichtigste auf einen Blick:
| Objektnummer: | 8821817 |
Preise
| Kaltmiete | 900 € |
| Nebenkosten | 500 € |
| Mietpreis pro m² | 5,36 € |
Flächen
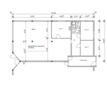
| Nutzfläche | 168 m² |
| Gesamtfläche | 168 m² |
Objekt Adresse
57413 Finnentrop-Heggen
Sonstige Angaben
| Baujahr | 1982 |
| Verfügbar ab | sofort |
| Barrierefrei | |
| Energieausweistyp | Verbrauch |
| Ausstellungsdatum | 23. 11. 2022 |
| Gültig bis | Mon Nov 22 00:00:00 CET 2032 |
| Energieeffizienzklasse | C |
| Wesentlicher Energieträger | GAS |
Objektbeschreibung
Gehen Sie neue Wege und zögern Sie nicht uns zu kontaktieren.
Dieser moderne ehemalige Friseursalon mit rund 168 m² bietet eine einmalige Gelegenheit zur Neuvermietung. Die großzügigen, lichtdurchfluteten Räumlichkeiten überzeugen mit einer freundlichen Atmosphäre und einem zeitgemäßen, stilvollen Ambiente. Große Fensterfronten sorgen für optimale Sichtbarkeit und einladendes Tageslicht.
Profitieren Sie von einer guten Lage und exzellenter Sichtbarkeit direkt an der Hauptstraße von Heggen.
Ein idealer Standort für eine Büro, Praxisfläche o.ä.
Viele Möglichkeiten sind hier denkbar!
Dieser moderne ehemalige Friseursalon mit rund 168 m² bietet eine einmalige Gelegenheit zur Neuvermietung. Die großzügigen, lichtdurchfluteten Räumlichkeiten überzeugen mit einer freundlichen Atmosphäre und einem zeitgemäßen, stilvollen Ambiente. Große Fensterfronten sorgen für optimale Sichtbarkeit und einladendes Tageslicht.
Profitieren Sie von einer guten Lage und exzellenter Sichtbarkeit direkt an der Hauptstraße von Heggen.
Ein idealer Standort für eine Büro, Praxisfläche o.ä.
Viele Möglichkeiten sind hier denkbar!
Lage des Objektes
Heggen, ein Ortsteil der Gemeinde Finnentrop im Sauerland, bietet Gewerbetreibenden eine attraktive Kombination aus ländlicher Idylle und guter verkehrstechnischer Erreichbarkeit. Die zentrale Lage im Kreis Olpe ermöglicht eine effiziente Anbindung an die Orte Attendorn und Plettenberg.
Bild2
Bild3
Bild4
Bild5
Bild6
Bild7
Bild8