Exposé
Objektart:
Wohnung
» Dachgeschoss
» Miete
Standort: Wohnung »
Deutschland » Sachsen » Zwickau, Stadt (Kreis) » Zwickau
Einzigartige Dachgeschosswohnung sucht Liebhaber
Wohnzimmer
Angeboten von:
Marko Künne Immobilien
Käthe-Kollwitz-Str. 58c
04109 Leipzig
Deutschland
Telefon:+49(0)341-4429566
Fax:+49(0)341-2253930
www.kuenne-immobilien.de
Ansprechpartner/in
Marko Künne Immobilien
Vincent Wilke
| Telefon: | 0176 46023255 |
| Fax: | 0341 2253930 |
Das Wichtigste auf einen Blick:
| Objektnummer: | 8813090 |
Preise
| Kaltmiete | 346,75 € |
| Warmmiete | 561,75 € |
| Nebenkosten | 215 € |
| Heizkosten enthalten | Ja |
| Mietpreis pro m² | 4,75 € |
| Kaution | 693,50€ |
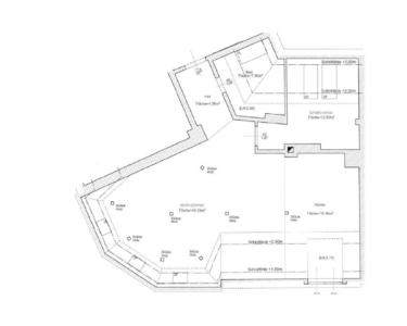
Flächen
| Wohnfläche | 73 m² |
Objekt Adresse
Werdauer Straße 58
08056 Zwickau
Sonstige Angaben
| Baujahr | 1905 |
| Zimmer | 2 |
| Verfügbar ab | sofort, nach vereinbarung |
| Bad | 1 |
| Anzahl der Etagen im Haus | 3 |
| Inserat befindet sich im Stockwerk | 3 |
| Bad | 1 |
| Bad | Wanne |
| Keller | Ja |
| Energieausweistyp | Verbrauch |
| Ausstellungsdatum | 31. 07. 2018 |
| Gültig bis | 30.07.2028 |
| Energieeffizienzklasse | D |
| Energieverbrauchkennwert | 124,1 kWh/(m²*a) |
| Wesentlicher Energieträger | Gas |
| Energieträger/Befeuerung | Gas |
Objektbeschreibung
Diese einzigartige Dachgeschosswohnung mit 73 m² beeindruckt durch ein offenes Konzept. Der Wohnbereich mit offener Küche schafft eine großzügige, einladende Atmosphäre. Die moderne Wohnküche ist nicht nur funktional, sondern auch der zentrale Treffpunkt für gemütliche Abende mit Freunden oder der Familie. Das Badezimmer ist mit einer Wanne ausgestattet und verfügt über ein Fenster, das für natürliches Tageslicht und Frische sorgt.
Ausstattung
- Keller
- Bad mit Fenster und Wanne
- Küche mit Fenster
- Bad mit Fenster und Wanne
- Küche mit Fenster
Lage des Objektes
Die direkte Wohnlage zeichnet sich durch kurze Wege zum ÖPNV, zum Einkaufen aus. Die Nähe zu den zwei Krankenhäusern der Stadt macht sie besonders für Mitarbeiter/innen und Auszubildende, Ärzte/innen und sonstigen Personal attraktiv.
Die kreisfreie Stadt Zwickau zählt mit seinen etwa 90.000 Einwohnern als viertgrößte Stadt in Sachsen und ist ein Gründungsmitglied der Metropolregion Mitteldeutschland.
Zwickau liegt im Süd-Westen Sachsens an der Zwickauer Mulde und am Eingang zum Westerzgebirge sowie zum Vogtland.
War die Stadt früher nahezu 800 Jahre lang durch den Abbau von Steinkohle bekannt, ist sie heutzutage den meisten durch die Automobilbranche ein Begriff. Das Fahrzeugwerk Zwickau-Mosel der Volkswagen Sachsen GmbH ist in der Gegend einer der größten Arbeitgeber und führte zur Ansiedlung zahlreicher Zulieferer. Auch andere Wirtschaftszweige wie beispielsweise die Entwicklung von Systemen zur Energiespeicherung, der Isolations- und Kältetechnik, der Bau von Anlagen oder Brücken oder die Logistik sind hier gut vertreten.
Auch im kulturellen Bereich hat Zwickau viel zu bieten. Der weltbekannte Komponist Robert Schumann ist hier geboren, ebenso wie der Maler und Grafiker Max Pechstein. Kultureinrichtungen wie das 1525 erbaute Gewandhaus, das August-Horch-Museum Zwickau, ein Automobilmuseum, oder die Kunstsammlungen Zwickau stellen nur einen kleinen Auszug der Angebote dar.
Durch die B93 in Nord-Süd-Richtung oder die B173 und B175 in Ost-West-Richtung ist die Stadt infrastrukturell gut angebunden. Ergänzt wird dies durch die nördlich verlaufende A4 und die südlich verlaufende A72. Chemnitz ist hierüber in etwa 40 Minuten erreichbar, Städte wie Jena oder Dresden in ca. 1 Stunde beziehungsweise in unter 1,5 Stunden.
Die kreisfreie Stadt Zwickau zählt mit seinen etwa 90.000 Einwohnern als viertgrößte Stadt in Sachsen und ist ein Gründungsmitglied der Metropolregion Mitteldeutschland.
Zwickau liegt im Süd-Westen Sachsens an der Zwickauer Mulde und am Eingang zum Westerzgebirge sowie zum Vogtland.
War die Stadt früher nahezu 800 Jahre lang durch den Abbau von Steinkohle bekannt, ist sie heutzutage den meisten durch die Automobilbranche ein Begriff. Das Fahrzeugwerk Zwickau-Mosel der Volkswagen Sachsen GmbH ist in der Gegend einer der größten Arbeitgeber und führte zur Ansiedlung zahlreicher Zulieferer. Auch andere Wirtschaftszweige wie beispielsweise die Entwicklung von Systemen zur Energiespeicherung, der Isolations- und Kältetechnik, der Bau von Anlagen oder Brücken oder die Logistik sind hier gut vertreten.
Auch im kulturellen Bereich hat Zwickau viel zu bieten. Der weltbekannte Komponist Robert Schumann ist hier geboren, ebenso wie der Maler und Grafiker Max Pechstein. Kultureinrichtungen wie das 1525 erbaute Gewandhaus, das August-Horch-Museum Zwickau, ein Automobilmuseum, oder die Kunstsammlungen Zwickau stellen nur einen kleinen Auszug der Angebote dar.
Durch die B93 in Nord-Süd-Richtung oder die B173 und B175 in Ost-West-Richtung ist die Stadt infrastrukturell gut angebunden. Ergänzt wird dies durch die nördlich verlaufende A4 und die südlich verlaufende A72. Chemnitz ist hierüber in etwa 40 Minuten erreichbar, Städte wie Jena oder Dresden in ca. 1 Stunde beziehungsweise in unter 1,5 Stunden.
Haus
Innenhof
Schlafzimmer
Bad
Badezimmer Bild 2
offene Küche
SF DG links