Exposé
Objektart:
Wohnung
» Kauf
Zu verkaufen, Zagreb, Sveti duh, luxuriöse zweistöckige Wohnung mit Parkplatz, Garten
Angeboten von:
Biliskov nekretnine d.o.o.
Cesta dr. F. Tudmana 866A
21216 Kastel Stari
Telefon:+38598411775
Das Wichtigste auf einen Blick:
| Objektnummer: | 8810300 |
Preise
| Kaufpreis | 890.000 € |
| Nebenkosten | keine Angabe |
Flächen
| Gesamtfläche | 240 m² |
| Fläche Sonstiges | 2 m² |
Objekt Adresse
Zagreb
- Zagreb (Stadt) [Grad Zagreb]
Sonstige Angaben
| Verfügbar ab | keine Angabe |
| Terrassen | 1 |
| Energieeffizienzklasse | A |
Objektbeschreibung
Zagreb, Črnomerec
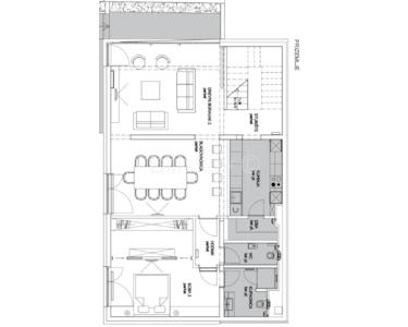
Schöne zweistöckige Sechszimmerwohnung von 240 m2, im Hochparterre und im ersten Stock eines Neubaus (2021).
Das Gebäude verfügt über insgesamt drei Wohnungen.
Die Wohnung ist luxuriös eingerichtet und besteht aus:
Obergeschoss: Eingang (8,70 m2, Treppenhaus (10,68 m2), Wohnzimmer (24,33 m2), Flur (4,36 m2), Hauswirtschaftsraum (5,84 m2), Badezimmer (4,68 m2), Zimmer 1 (14,98 m2), Zimmer 2 ( 24,35 m2), Badezimmer (5,27 m2), Abstellraum (5,25 m2).
Untere Etage: Treppe, Flur (2,73 m2), Wohnzimmer (24,98 m2), Esszimmer (21,72), Küche (9,47 m2), Speisekammer (2,62 m2), Schlafzimmer/Kleiderschrank (22,51 m2), Badezimmer (5,48 m2). ), Toilette (2,79 m2) und Terrasse (32,57 m2).
In der Wohnung gibt es grosse Glaswände und viel Tageslicht, was für eine zusätzliche Atmosphäre sorgt.
Zur Wohnung gehören zwei Parkplätze mit einer Gesamtfläche von 27,92 m2 und drei Gärten mit einer Gesamtfläche von 197,24 m2.
Die Wohnung steht komplett möbliert und ausgestattet zum Verkauf.
Ausgezeichnete Mikrolage, unmittelbare Nähe zum Krankenhaus, zur Schule und zu öffentlichen Verkehrsmitteln (Bus).
EC: A
Ausrichtung: Südosten
Heizung: Zentrale Gasheizung/Klimaanlage
Kaufpreis: 890.000 €
https://youtu.be/8wL9QDxQclo
Das Vermittlungshonorar für den Käufer beträgt 2 % + MwSt. des erzielten Kaufpreises.
www.biliskov.com ID: 14742
Schöne zweistöckige Sechszimmerwohnung von 240 m2, im Hochparterre und im ersten Stock eines Neubaus (2021).
Das Gebäude verfügt über insgesamt drei Wohnungen.
Die Wohnung ist luxuriös eingerichtet und besteht aus:
Obergeschoss: Eingang (8,70 m2, Treppenhaus (10,68 m2), Wohnzimmer (24,33 m2), Flur (4,36 m2), Hauswirtschaftsraum (5,84 m2), Badezimmer (4,68 m2), Zimmer 1 (14,98 m2), Zimmer 2 ( 24,35 m2), Badezimmer (5,27 m2), Abstellraum (5,25 m2).
Untere Etage: Treppe, Flur (2,73 m2), Wohnzimmer (24,98 m2), Esszimmer (21,72), Küche (9,47 m2), Speisekammer (2,62 m2), Schlafzimmer/Kleiderschrank (22,51 m2), Badezimmer (5,48 m2). ), Toilette (2,79 m2) und Terrasse (32,57 m2).
In der Wohnung gibt es grosse Glaswände und viel Tageslicht, was für eine zusätzliche Atmosphäre sorgt.
Zur Wohnung gehören zwei Parkplätze mit einer Gesamtfläche von 27,92 m2 und drei Gärten mit einer Gesamtfläche von 197,24 m2.
Die Wohnung steht komplett möbliert und ausgestattet zum Verkauf.
Ausgezeichnete Mikrolage, unmittelbare Nähe zum Krankenhaus, zur Schule und zu öffentlichen Verkehrsmitteln (Bus).
EC: A
Ausrichtung: Südosten
Heizung: Zentrale Gasheizung/Klimaanlage
Kaufpreis: 890.000 €
https://youtu.be/8wL9QDxQclo
Das Vermittlungshonorar für den Käufer beträgt 2 % + MwSt. des erzielten Kaufpreises.
www.biliskov.com ID: 14742