Exposé
Objektart:
Büro / Praxen
» Bueroflaeche
» Miete
Standort: Büro / Praxen »
Deutschland » Nordrhein-Westfalen » Düsseldorf, Stadt (Kreis) » Düsseldorf
NEUBAU - Ärztehaus in urbaner Innenstadtlage!
Grünes Haus Planung
Das Wichtigste auf einen Blick:
| Objektnummer: | 8806698 |
Preise
| Nebenkosten | keine Angabe |
| Mietpreis pro m² | 21 € |
Flächen
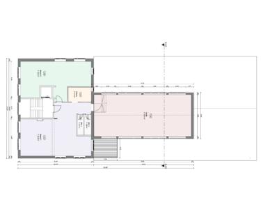
| Gesamtfläche | 595 m² |
| Bürofläche | 595 m² |
| Fläche teilbar ab | 130 m² |
Objekt Adresse
40223 Düsseldorf
- Nordrhein-Westfalen
Sonstige Angaben
| Verfügbar ab | keine Angabe |
Objektbeschreibung
Dieses Büroobjekt in Düsseldorf bietet moderne Arbeitsflächen in einem vergleichsweise neuen und wachsenden Standort. Die Räume zeichnen sich durch eine flexible Grundrissgestaltung und helle, offene Flächen aus, die sich optimal an die Bedürfnisse eines dynamischen Unternehmens anpassen lassen.
Mit einer modernen Ausstattung und einer angenehmen Arbeitsatmosphäre eignet sich die Immobilie hervorragend für Unternehmen verschiedener Branchen. Weitere Details und individuelle Gestaltungsmöglichkeiten können auf Anfrage zur Verfügung gestellt werden.
Mit einer modernen Ausstattung und einer angenehmen Arbeitsatmosphäre eignet sich die Immobilie hervorragend für Unternehmen verschiedener Branchen. Weitere Details und individuelle Gestaltungsmöglichkeiten können auf Anfrage zur Verfügung gestellt werden.
Lage des Objektes
Das Objekt befindet sich im lebendigen Stadtteil Oberbilk. Die Lage bietet eine hervorragende Anbindung an den öffentlichen Nahverkehr, darunter Straßenbahnen und Buslinien, die eine schnelle Erreichbarkeit des Düsseldorfer Stadtzentrums und umliegender Stadtteile gewährleisten. In unmittelbarer Nähe befinden sich verschiedene Geschäfte, Restaurants und Cafés, die eine gute Infrastruktur für den Arbeitsalltag bieten.
Durch die zentrale Lage und die Nähe zu wichtigen Verkehrsachsen ist das Objekt ideal für Unternehmen, die von einer gut angebundenen Lage in Düsseldorf profitieren möchten.
Durch die zentrale Lage und die Nähe zu wichtigen Verkehrsachsen ist das Objekt ideal für Unternehmen, die von einer gut angebundenen Lage in Düsseldorf profitieren möchten.
Grünes Haus Planung
Status Quo
Grundriss KG
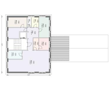
Grundriss 1.OG
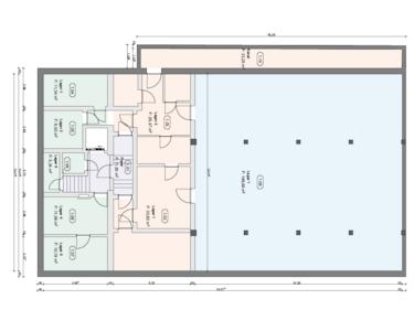
Grundriss 2.OG
Grundriss 3.OG