Exposé
Objektart:
Büro / Praxen
» Bueroflaeche
» Miete
Standort: Büro / Praxen »
Deutschland » Nordrhein-Westfalen » Mettmann (Kreis) » Erkrath
Flexible Büros und Praxisflächen.
Das Wichtigste auf einen Blick:
| Objektnummer: | 8803647 |
Preise
| Nebenkosten | keine Angabe |
| Mietpreis pro m² | 10 € |
Flächen
| Gesamtfläche | 444 m² |
| Bürofläche | 444 m² |
| Maklerprovision | Provisionspflichtig |
Objekt Adresse
40699 Erkrath
Sonstige Angaben
| Verfügbar ab | kurzfristig |
| Inserat befindet sich im Stockwerk | 1 |
Beschreibung der Immobilie
Dieses gepflegte Bürogebäude in Erkrath steht ab sofort zur Vermietung und bietet eine ideale Arbeitsumgebung für Unternehmen, die Wert auf Funktionalität und ein professionelles Erscheinungsbild legen. Die Immobilie beeindruckt durch ihre solide Bauweise und eine architektonisch ansprechende Gestaltung.
Ein stufenloser Zugang sowie ein Personenaufzug sorgen für eine komfortable und barrierefreie Erschließung aller Ebenen. Die flexibel gestaltbaren Büroflächen ermöglichen eine passgenaue Umsetzung individueller Raumkonzepte – ideal für moderne und effiziente Arbeitsstrukturen.
Dank seiner Lage in einem etablierten Geschäftsgebiet bietet das Objekt eine hervorragende Grundlage für einen zukunftsfähigen Unternehmensstandort.
Ein stufenloser Zugang sowie ein Personenaufzug sorgen für eine komfortable und barrierefreie Erschließung aller Ebenen. Die flexibel gestaltbaren Büroflächen ermöglichen eine passgenaue Umsetzung individueller Raumkonzepte – ideal für moderne und effiziente Arbeitsstrukturen.
Dank seiner Lage in einem etablierten Geschäftsgebiet bietet das Objekt eine hervorragende Grundlage für einen zukunftsfähigen Unternehmensstandort.
Lage & Infrastruktur
Die Liegenschaft am Steinhof 3–5 in Erkrath überzeugt durch ihre verkehrsgünstige Lage: Die Autobahnen A3 und A46 sind in wenigen Minuten erreichbar und bieten eine schnelle Anbindung an Düsseldorf, Köln sowie das gesamte Ruhrgebiet.
Auch der öffentliche Nahverkehr ist hervorragend ausgebaut. Mehrere Buslinien verbinden den Standort mit den umliegenden Stadtteilen sowie den Bahnhöfen in Erkrath und Düsseldorf. Direkt hinter dem Gebäude befindet sich eine S-Bahnhaltestelle, die eine direkte Anbindung an das regionale und überregionale Bahnnetz ermöglicht.
Auch der öffentliche Nahverkehr ist hervorragend ausgebaut. Mehrere Buslinien verbinden den Standort mit den umliegenden Stadtteilen sowie den Bahnhöfen in Erkrath und Düsseldorf. Direkt hinter dem Gebäude befindet sich eine S-Bahnhaltestelle, die eine direkte Anbindung an das regionale und überregionale Bahnnetz ermöglicht.
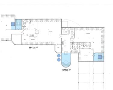
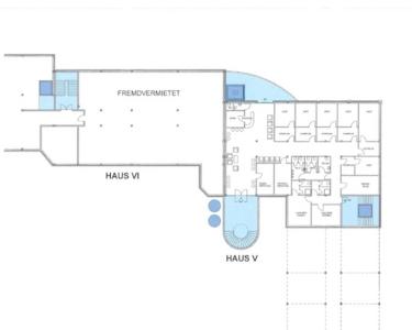
Grundriss 1
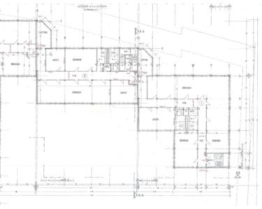
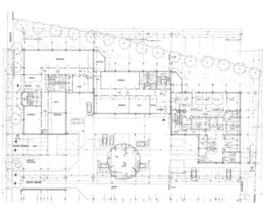
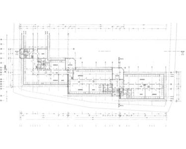
Ambulante Reha EG
Ambulante Reha 1.OG
Ambulante Reha 2.OG
Haus 3 2.OG
Ambulante Reha DG
Neubau 1 EG
Neubau 1 1.OG
Neubau 1 2.OG