Exposé
Objektart:
Büro / Praxen
» Bueroflaeche
» Miete
Standort: Büro / Praxen »
Deutschland » Bayern » München, Landeshauptstadt (Kreis) » München
PERFEKTES LOFTBÜRO IN EHEMALIGEM PRODUKTIONSAREAL - provisionsfrei
1
Angeboten von:
Harald Dördrechter Immobilien Consulting
Schluchtweg 23
82340 Feldafing
Deutschland
Telefon:08157-924772
Fax:08157-924771
www.hdic.de
Ansprechpartner/in
Harald Dördrechter ImmobilienConsulting
Herr Harald Dördrechter
| Telefon: | 08157 - 92 47 72 |
| Fax: | 08157 - 92 47 71 |
Das Wichtigste auf einen Blick:
| Objektnummer: | 8772646 |
Preise
| Miete für das Objekt | Auf Anfrage |
| Nebenkosten | 3 € |
| Mietpreis pro m² | 20 € |
Flächen
| Gesamtfläche | 1.775 m² |
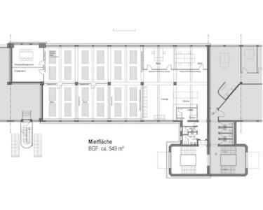
| Bürofläche | 549 m² |
| Fläche teilbar ab | 368 m² |
Objekt Adresse
81369 München
Sonstige Angaben
| Baujahr | 1939 |
| Letzte Modernisierung | 2022 |
| Verfügbar ab | kurzfristig |
| Inserat befindet sich im Stockwerk | 1 |
| Energieausweistyp | Verbrauch |
| Ausstellungsdatum | 15. 09. 2020 |
| Gültig bis | 15.09.2030 |
| Heizungsart | Zentralheizung |
| Wesentlicher Energieträger | Fernwärme |
| Energieträger/Befeuerung | Fernwärme |
Objektbeschreibung
Das liebevoll revitalisierte und mit einem Neubau arrondierte Gewerbeareal aus dem Jahr 1930 hat sich zu einem lebendigen Campus mit einer gesunden Mischung aus jungen und renommierten Mietern ( Werbung, IT, Kommunikation, Verlag, Aus- und Weiterbildung, Schulung, Kanzlei) entwickelt. Die einzelnen Häuser wurden aufwändig renoviert, wobei die Eingangsbereiche und Treppenhäuser ein extravagantes Farbkonzept erhalten haben. Das komplette Gelände wurde neu begrünt und umgestaltet. Die einzelnen Büroflächen sind so unterschiedlich wie die Mieter: von Einzelbüros bis zu loftartigen Großraumlösungen ist alles realisierbar. Alle Flächen haben Loftcharakter und Charme, durch große Fenster helle und lichtdurchflutete Räume, attraktive Raumhöhen, Personen- / Lastenaufzug vorhanden TG-Einzelstellplätze in der zweigeschossigen Tiefgarage anmietbar à € 100,00. ,(Stromanschlüsse für Elektromobilität).
Ausstattung
Extravagant gestaltete Loftfläche nach Designvorgaben mit Stahl und Glaskonstruktion - Hochwertiges Design mit Parkettböden und neuestem Stand der Technik - traumhafte Designerküche vom Vormieter - eigene Dusche - klimatisierter Serverraum - Glasfaseranschluss - bap-gerechte Beleuchtung - Akustikpaneele - Personenaufzug - Lastengeeigneter Aufzug - der Innenhof wurde als Campus komplett neu gestaltet und bietet attraktive Grünflächen und Aufenthaltsbereiche vor dem Gebäude. - Stromanschlüsse für Elektromobilität vorhanden
Lage des Objektes
Im südlichen Münchner Stadtteil "Mittersendling", sehr gute Anbindung an den Mittleren Ring und die Autobahnen Garmisch und Lindau, S-Bahn "Mittersendling" und U- Bahn "Obersendling" fußläufig sehr gut erreichbar, Bushaltestelle vor der Türe. Alle Einkaufsmöglichkeiten und berühmter Biergarten im direkten Umfeld.
Sonstige Informationen
Falls Sie in unseren Exposés noch nicht Ihre ideale Bürolösung gefunden haben, zögern Sie nicht, sich mit uns in Verbindung zu setzen. Sie erreichen uns per E-Mail unter info@hdic.de oder telefonisch unter 0171 3802649. Teilen Sie uns Ihr genaues Suchprofil mit, und wir setzen unsere Expertise ein, um aus über 1000 Objekten in München und Umland das perfekte Büro für Sie zu finden. Unser Service ist professionell, schnell, zielführend und wird mit höchster Diskretion durchgeführt. Zusätzlich laden wir Sie ein, unsere Webseite hdic.de zu besuchen, wo Sie weitere attraktive Objekte finden können.
2
3
4
5
6
7
8
9
10
11
TH 2
12
1
Ansicht (5)
Ansicht (4)
Ansicht (6)
Ansicht (7)
Ansicht (1)
Ansicht (2)
Ansicht (3)
GR 1.OG 549m2