Exposé
Objektart:
Haus
» Einfamilienhaus
» Kauf
Großes Haus mit zwei Wohneinheiten, gr. Grundstück
Das Wichtigste auf einen Blick:
| Objektnummer: | 8749813 |
Preise
| Kaufpreis | 254.000 € |
| Nebenkosten | keine Angabe |
Flächen
| Wohnfläche | 193 m² |
| Grundstücksfläche | 3.888 m² |
| Maklerprovision | 2 % |
Objekt Adresse
8991 Teskánd
- Zala
Sonstige Angaben
| Zimmer | 4 |
| Verfügbar ab | keine Angabe |
Objektbeschreibung
Nähe Zalaegeszerszeg, in Teskánd, bieten wir ein zweistöckiges Familienhaus mit zwei separaten Wohnungen an.
Das Haus liegt im Zentrum der Siedlung, auf einem 3.888 m2 großen, doppelt breiten Grundstück. Auf der Rückseite des Grundstücks befindet sich eine Wasserquelle mit reichlicher Wassermenge, die einen 200 m2 großen Gartenteich speist.
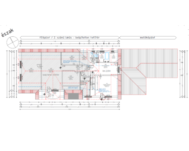
Erdgeschoss: 104 m2 Wohnung (Wohnzimmer, Schlafzimmer, Vorzimmer, Küche, Esszimmer, Badezimmer, WC), Garage und diverse Räume, 18 m2 Terrasse. Keller 13 m2
Dachgeschoss: 47 m2 Wohnung (Wohn-Schlafzimmer, Küche, Esszimmer, Kammer, Badezimmer, WC) + 80 m2 ausbaufähiges Dachgeschoss.
Die Beheizung des Anwesens erfolgt über eine Gaszentralheizung, optional ist jedoch auch ein Holzheizkessel vorhanden. Warmwasser wird von einem Elektroboiler bereitgestellt.
Anschlüsse:
Separate Gaszähler für die Wohnungen
Separate Stromzähler (3 x 25 A) für die Wohnungen
Ein Nebengebäude mit mehreren Räumen ist an das Haus angebaut.
Schöner angelegter Garten, eingezäunt mit Gartenteich und Obstbaumbestand. Aufgrund der Größe des Grundstücks kann es der Länge nach zweigeteilt und sogar separat verkauft werden, eignet sich aber auch hervorragend für die Tierhaltung und für den Gartenbetrieb.
Info: 5148
Das Haus liegt im Zentrum der Siedlung, auf einem 3.888 m2 großen, doppelt breiten Grundstück. Auf der Rückseite des Grundstücks befindet sich eine Wasserquelle mit reichlicher Wassermenge, die einen 200 m2 großen Gartenteich speist.
Erdgeschoss: 104 m2 Wohnung (Wohnzimmer, Schlafzimmer, Vorzimmer, Küche, Esszimmer, Badezimmer, WC), Garage und diverse Räume, 18 m2 Terrasse. Keller 13 m2
Dachgeschoss: 47 m2 Wohnung (Wohn-Schlafzimmer, Küche, Esszimmer, Kammer, Badezimmer, WC) + 80 m2 ausbaufähiges Dachgeschoss.
Die Beheizung des Anwesens erfolgt über eine Gaszentralheizung, optional ist jedoch auch ein Holzheizkessel vorhanden. Warmwasser wird von einem Elektroboiler bereitgestellt.
Anschlüsse:
Separate Gaszähler für die Wohnungen
Separate Stromzähler (3 x 25 A) für die Wohnungen
Ein Nebengebäude mit mehreren Räumen ist an das Haus angebaut.
Schöner angelegter Garten, eingezäunt mit Gartenteich und Obstbaumbestand. Aufgrund der Größe des Grundstücks kann es der Länge nach zweigeteilt und sogar separat verkauft werden, eignet sich aber auch hervorragend für die Tierhaltung und für den Gartenbetrieb.
Info: 5148