Exposé
Objektart:
Wohnung
» Etage
» Kauf
Standort: Wohnung »
Deutschland » Bayern » Nürnberg, Stadt (Kreis) » Nürnberg
Charmante 2-Zimmer-Wohnung mit top Anbindung in Nürnberg
Titelbild
Das Wichtigste auf einen Blick:
| Objektnummer: | 8742490 |
Preise
| Kaufpreis | Auf Anfrage |
| Nebenkosten | keine Angabe |
Flächen
| Wohnfläche | 19,68 m² |
| Nutzfläche | 44,83 m² |
Objekt Adresse
90443 Nürnberg
- Bayern
Sonstige Angaben
| Zimmer | 2 |
| Verfügbar ab | keine Angabe |
| Bad | 1 |
| Küche | Einbauküche |
| Bad | 1 |
| Bad | Dusche |
| Boden | Fliesen, Laminat |
| Balkone | 1 |
| Fahrstuhl | Ja |
| Barrierefrei | |
| Keller | Ja |
Objektbeschreibung
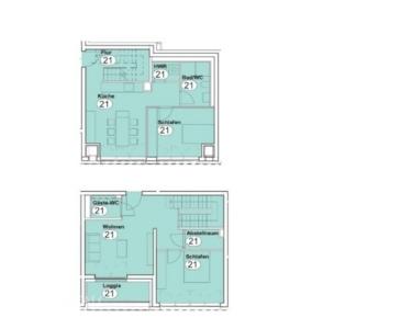
Diese gemütliche 2-Zimmer-Wohnung befindet sich im Obergeschoss eines modernen Wohngebäudes. Die zentrale Lage ermöglicht eine hervorragende Anbindung an öffentliche Verkehrsmittel sowie schnellen Zugang zu Einkaufsmöglichkeiten, Restaurants und weiteren Annehmlichkeiten des täglichen Bedarfs.
Wohnungsdetails:
Wohnen/Essen/Küche: Der offene Wohn- und Essbereich mit integrierter Küche erstreckt sich über 19,68 m² und bietet ausreichend Platz für eine komfortable Wohnatmosphäre. Die großen Fenster sorgen für viel Tageslicht und eine freundliche Atmosphäre.
Schlafen: Das Schlafzimmer hat eine Größe von 12,84 m² und bietet genügend Raum für ein Doppelbett und zusätzlichen Stauraum.
Bad/WC: Das moderne Badezimmer ist 3,60 m² groß und verfügt über eine Dusche, ein WC und einen Waschtisch.
Zwischensumme Wohnfläche: 42,24 m²
Balkon:
Die Wohnung verfügt über einen Balkon mit einer Fläche von 2,59 m², der zu 1/2 auf die Wohnfläche angerechnet wird, was zusätzliche 5,17 m² nutzbare Fläche ergibt. Der Balkon ist ideal für entspannte Stunden im Freien und bietet genug Platz für eine kleine Sitzgruppe.
Gesamtwohnfläche:
Die gesamte Wohnfläche der Wohnung beträgt ca. 48,83 m², inklusive des anteilig angerechneten Balkons.
Fazit:
Diese charmante 2-Zimmer-Wohnung im Obergeschoss überzeugt durch ihre gut durchdachte Raumaufteilung und die hochwertige Ausstattung. Mit ihrer offenen Wohnküche, dem gemütlichen Schlafzimmer und dem einladenden Balkon bietet sie alles, was man für ein komfortables und modernes Wohnen benötigt. Die zentrale Lage und die gute Anbindung an die Infrastruktur machen diese Wohnung zu einer idealen Wahl für Singles oder Paare.
Wohnungsdetails:
Wohnen/Essen/Küche: Der offene Wohn- und Essbereich mit integrierter Küche erstreckt sich über 19,68 m² und bietet ausreichend Platz für eine komfortable Wohnatmosphäre. Die großen Fenster sorgen für viel Tageslicht und eine freundliche Atmosphäre.
Schlafen: Das Schlafzimmer hat eine Größe von 12,84 m² und bietet genügend Raum für ein Doppelbett und zusätzlichen Stauraum.
Bad/WC: Das moderne Badezimmer ist 3,60 m² groß und verfügt über eine Dusche, ein WC und einen Waschtisch.
Zwischensumme Wohnfläche: 42,24 m²
Balkon:
Die Wohnung verfügt über einen Balkon mit einer Fläche von 2,59 m², der zu 1/2 auf die Wohnfläche angerechnet wird, was zusätzliche 5,17 m² nutzbare Fläche ergibt. Der Balkon ist ideal für entspannte Stunden im Freien und bietet genug Platz für eine kleine Sitzgruppe.
Gesamtwohnfläche:
Die gesamte Wohnfläche der Wohnung beträgt ca. 48,83 m², inklusive des anteilig angerechneten Balkons.
Fazit:
Diese charmante 2-Zimmer-Wohnung im Obergeschoss überzeugt durch ihre gut durchdachte Raumaufteilung und die hochwertige Ausstattung. Mit ihrer offenen Wohnküche, dem gemütlichen Schlafzimmer und dem einladenden Balkon bietet sie alles, was man für ein komfortables und modernes Wohnen benötigt. Die zentrale Lage und die gute Anbindung an die Infrastruktur machen diese Wohnung zu einer idealen Wahl für Singles oder Paare.
Ausstattung
Loggia: Die Wohnung verfügt über eine großzügige Loggia, die zum Entspannen und Genießen der frischen Luft einlädt.
Dusche: Das Badezimmer ist mit einer modernen Dusche ausgestattet, die für erfrischende und komfortable Duschmomente sorgt.
WG geeignet: Aufgrund ihrer optimalen Raumaufteilung und großzügigen Wohnfläche eignet sich die Wohnung ideal für eine Wohngemeinschaft.
Personenaufzug: Ein Personenaufzug im Gebäude ermöglicht einen barrierefreien Zugang zur Wohnung und erhöht den Wohnkomfort für alle Bewohner.
Fußbodenheizung mit Blockheizkraftwerk: Die Wohnung verfügt über eine effiziente Fußbodenheizung in Verbindung mit einem Blockheizkraftwerk, die für eine angenehme Wärme und niedrige Energiekosten sorgt.
Fliesen und Parkett: Die Böden sind mit hochwertigen Fliesen und Parkett ausgestattet, die nicht nur langlebig und pflegeleicht sind, sondern auch ein elegantes Wohnambiente schaffen.
Außenwanddämmung: Eine hochwertige Außenwanddämmung sorgt für eine optimale Wärmedämmung und ein energieeffizientes Wohnklima.
Fenster mit Dreifachverglasung: Die Fenster sind mit einer hochwertigen Dreifachverglasung ausgestattet, die für eine optimale Schalldämmung und Wärmedämmung sorgt und somit ein ruhiges und behagliches Wohnklima schaff
Dusche: Das Badezimmer ist mit einer modernen Dusche ausgestattet, die für erfrischende und komfortable Duschmomente sorgt.
WG geeignet: Aufgrund ihrer optimalen Raumaufteilung und großzügigen Wohnfläche eignet sich die Wohnung ideal für eine Wohngemeinschaft.
Personenaufzug: Ein Personenaufzug im Gebäude ermöglicht einen barrierefreien Zugang zur Wohnung und erhöht den Wohnkomfort für alle Bewohner.
Fußbodenheizung mit Blockheizkraftwerk: Die Wohnung verfügt über eine effiziente Fußbodenheizung in Verbindung mit einem Blockheizkraftwerk, die für eine angenehme Wärme und niedrige Energiekosten sorgt.
Fliesen und Parkett: Die Böden sind mit hochwertigen Fliesen und Parkett ausgestattet, die nicht nur langlebig und pflegeleicht sind, sondern auch ein elegantes Wohnambiente schaffen.
Außenwanddämmung: Eine hochwertige Außenwanddämmung sorgt für eine optimale Wärmedämmung und ein energieeffizientes Wohnklima.
Fenster mit Dreifachverglasung: Die Fenster sind mit einer hochwertigen Dreifachverglasung ausgestattet, die für eine optimale Schalldämmung und Wärmedämmung sorgt und somit ein ruhiges und behagliches Wohnklima schaff
Lage des Objektes
Die Immobilie befindet sich in einer erstklassigen zentralen Lage in Nürnberg. Der Verkehrsknotenpunkt „Plärrer“, die Altstadt, der Hauptbahnhof sowie die Pegnitzauen sind in wenigen Minuten zu Fuß oder mit dem Fahrrad erreichbar. Die hervorragende Anbindung an den öffentlichen Nahverkehr und das Autobahnnetz ermöglicht eine schnelle Erreichbarkeit von Arbeitsplätzen und Freizeiteinrichtungen in der gesamten Metropolregion Nürnberg.
Sonstige Informationen
Wir bieten Ihnen eine kostenlose 24/7 Hotline (0800-6460646) an. Bei Interesse fordern Sie einfach das Exposé mit einigen weiteren Inhalten an. Dieses wird Ihnen automatisch i.d.R. kurzfristig zugesandt.
Bei einem Besichtigungswunsch antworten Sie am besten per Mail auf das Exposé, wir melden uns dann umgehend mit Terminvorschlägen bei Ihnen. Bitte geben Sie immer Ihre vollständigen Kontaktdaten an.
Die Objektbeschreibung beruht ganz oder zum Teil auf Angaben des Eigentümers. Für die Richtigkeit oder Vollständigkeit übernehmen wir keine Gewähr.
Ansicht von der Ferne
Ansicht von der Ferne
Grundrisse