Exposé
Objektart:
Büro / Praxen
» Buerohaus
» Miete
Standort: Büro / Praxen »
Deutschland » Sachsen » Leipzig, Stadt (Kreis) » Leipzig
BUERO.flächen in Leipzig - Plagwitz
Außenansicht
Das Wichtigste auf einen Blick:
| Objektnummer: | 8741826 |
Preise
| Miete für das Objekt | Auf Anfrage |
| Nebenkosten | keine Angabe |
| Mietpreis pro m² | 16 € |
Flächen
| Bürofläche | 500 m² |
| Bürofläche | 500 m² |
| Fläche teilbar ab | 500 m² |
| Maklerprovision | provisionsfrei |
Objekt Adresse
Weißenfelser Straße 75-77
04229 Leipzig
Sonstige Angaben
| Verfügbar ab | keine Angabe |
Objektbeschreibung
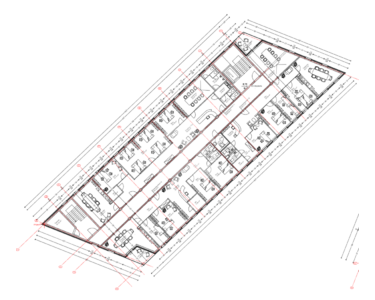
Das Areal der historischen Gewerbehöfe erstreckt sich auf 16 ha - überwiegend Gewerbefläche, welche mit Hallen, Bürogebäuden, Parkplätzen und Einkaufscentern bebaut ist. Aktuell sind auf dem Gelände eine Vielzahl von Gewerbetreibenden, Einzelhändlern, mittelständischen Handwerksbetrieben sowie Bildungseinrichtungen angesiedelt. Das Gebiet verfügt über großes Potenzial zur Entwicklung von Einzelhandelsflächen, Lagerflächen mit angeschlossenen Büros, Flächen für Gastronomie, Business-Center etc. In der Weißenfelser Straße wird ein moderner Neubau errichtet. Auf 5 Geschossen entstehen Büroflächen, die nach dem Raumprofil des Nutzers ausgebaut und ausgestattet werden. Im Gebäude stehen folgende Flächen zur Anmietung zur Verfügung:
Erdgschoss mit ca. 500,00 m²
1. Obergeschoss mit ca. 747,27 m²
2. Obergeschoss mit ca. 747,27 m²
3. Obergeschoss mit ca. 747,27 m²
4. Obergeschoss mit ca. 747,27 m²
Die Mietflächen können etagenweise angemietet werden. PKW Stellplätze für Mitarbeiter und Kunden können in dem nahe gelegen Parkhaus angemietet werden.
Erdgschoss mit ca. 500,00 m²
1. Obergeschoss mit ca. 747,27 m²
2. Obergeschoss mit ca. 747,27 m²
3. Obergeschoss mit ca. 747,27 m²
4. Obergeschoss mit ca. 747,27 m²
Die Mietflächen können etagenweise angemietet werden. PKW Stellplätze für Mitarbeiter und Kunden können in dem nahe gelegen Parkhaus angemietet werden.
Lage des Objektes
Die "Plagwitzer Höfe" befinden sich etwa 10 Autominuten von Leipzigs Innenstadt entfernt. Die A9, die A14 und die Neue Messe erreicht man in ca. 20 Minuten, den Flughafen in ca. 30 Minuten. Es liegt eine gute Anbindung an den ÖPNV vor. Das Gewerbegebiet ist somit optimal an die Infrastruktur angeschlossen. Der (Aus-)Bau der Mieteinheiten entsprechend der betriebsorganisatorischen Anforderungen des Mieters ist möglich.
Sonstige Informationen
Der angegebene Mietpreis richtet sich nach Ausstattung, Lage im Gebäude sowie Mietvertragslaufzeit und liegt zwischen 16,00 EUR/m² - 18,00 EUR/m² zzgl. Nebenkosten.
Außenansicht
Innenansicht
Innenansicht
Innenansicht
Innenansicht
Innenansicht
Innenansicht
Innenansicht
Grundriss