Exposé
Objektart:
Haus
» Villa
» Kauf
Moderne Villa mit Panoramablick und großem Grundstück in Jávea
falc-overlay-image-[TIME]
Angeboten von:
Das Wichtigste auf einen Blick:
| Objektnummer: | 8721342 |
Preise
| Kaufpreis | 1.190.000 € |
| Nebenkosten | keine Angabe |
Flächen
| Wohnfläche | 326 m² |
Objekt Adresse
03738 Bahía de Jávea
- Valencia
Sonstige Angaben
| Zimmer | 5 |
| Verfügbar ab | keine Angabe |
| Bad | 3 |
| Bad | 3 |
| Balkone | 1 |
| Garten | Ja |
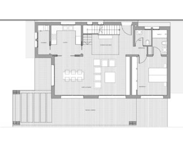
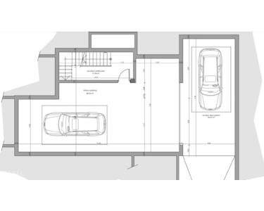
Objektbeschreibung
Diese atemberaubende, neu erbaute, moderne Villa befindet sich in der begehrten Gegend von Piver, in der Nähe aller wichtigen Dienstleistungen und nur 5 Autominuten von den wunderschönen Stränden von Jávea entfernt. Jedes seiner Zimmer bietet durch große Panoramafenster einen Panoramablick auf den majestätischen Berg Montgó und den unendlichen Horizont des Meeres. Das Haus nimmt ein Grundstück von 1050 m2 ein und verfügt über eine Gesamtbaufläche von 327 m2, umgeben von einem üppigen Garten, der eine ruhige und friedliche Umgebung bietet. Im Erdgeschoss gibt es ein geräumiges, offenes Wohnzimmer, das perfekt in das Esszimmer integriert ist, und eine voll ausgestattete Küche. Es verfügt außerdem über ein komplettes Schlafzimmer mit eigenem Bad und großzügigen Einbauschränken sowie ein Gästebad und eine praktische Waschküche. Von dieser Etage aus haben Sie direkten Zugang zur bezaubernden Poolterrasse und dem wunderschönen Garten. Im Obergeschoss befinden sich zwei geräumige Schlafzimmer, jeweils komplett mit Ankleidezimmer und eigenem Bad. Darüber hinaus gibt es ein gemütliches 30 m2 großes Wohnzimmer, das in ein viertes Schlafzimmer umgewandelt werden kann, eine 25 m2 große überdachte Terrasse und ein 13,5 m2 großes Solarium. Es ist zu beachten, dass alle Räume über hohe Decken und Panoramafenster mit Klimaglas verfügen, die ein Gefühl unvergleichlicher Geräumigkeit und Helligkeit vermitteln. Bimodale Kanalklimaanlagen Fußbodenheizung und ein fortschrittliches aerothermisches System Automatische Jalousien und ein automatisches Bewässerungssystem für die Gartenpflege. Alle Badezimmer sind elegant eingerichtet, die Küche ist mit hochwertigen Geräten deutscher Herkunft ausgestattet und die Oberflächen und Baumaterialien sind von höchster Qualität, was ein luxuriöses und komfortables Wohnerlebnis gewährleistet. Diese Villa stellt die perfekte Balance zwischen modernem Design und Funktionalität dar und bietet ein außergewöhnliches Zuhause in einer privilegierten Umgebung.
Lage des Objektes
Diese Immobilie befindet sich in der wunderschönen Küstenstadt Javea, nur wenige Gehminuten vom Meer entfernt. Die nächsten öffentlichen Verkehrsmittel sind nur 563 Meter entfernt, was den Zugang zu anderen Städten und Stränden in der Umgebung erleichtert. Der nächste Hauptbahnhof ist nur 46 Autominuten entfernt und der nächste Flughafen ist nur 75 Autominuten entfernt. Diese Lage bietet die perfekte Kombination aus Ruhe und Nähe zu wichtigen Orten und Einrichtungen. Die Umgebung ist bekannt für ihr mediterranes Klima, ihre wunderschönen Strände und ihr reiches kulturelles Erbe und ist daher ein beliebtes Ziel für Urlauber und Einheimische gleichermaßen.
Villa Terrasse
Villa Eingang
Villa Pool
Villa Pool I
Villa Terrasse I
Grundriss 1
Grundriss 2
Grundriss Hof