Exposé
Objektart:
Büro / Praxen
» Buerohaus
» Miete
Standort: Büro / Praxen »
Deutschland » Sachsen » Bautzen (Kreis) » Bautzen
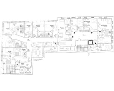
BUERO.flächen mit 590 m2 im Zentrum Bautzen Reichenstraße
Ansicht Reichenstraße
Das Wichtigste auf einen Blick:
| Objektnummer: | 8686924 |
Preise
| Miete für das Objekt | Auf Anfrage |
| Nebenkosten | 2,5 € |
Flächen
| Bürofläche | 590 m² |
| Bürofläche | 229 m² |
| Fläche teilbar ab | 229 m² |
| Maklerprovision | provisionsfrei |
Objekt Adresse
Reichenstraße 18
02625 Bautzen
Sonstige Angaben
| Verfügbar ab | keine Angabe |
Objektbeschreibung
Die neu entstehenden Büroflächen in den Obergeschossen werden über einen zentralen Eingangsbereich in der Reichenstraße und aus der Kesselstraße mit einer Aufzugsanlage erschlossen. Die Mietbereiche sind teilweise im früheren Kaufhaus zur Kesselstraße gelegen und verfügen über hohe Decken, große loftartige Fensterflächen, Parkettboden und können individuell nach Mieterwunsch aufgeteilt und ausgestattet werden.
Lage des Objektes
Bautzen gilt als der bedeutendster Arbeitsort der Region Oberlausitz- Niederschlesien und ist somit ein reizvoller Standort für alle Wirtschaftsbereiche. Über die nahe gelegene Bundesstraße B6 ist eine zügige Anbindung an die Autobahn A4 gegeben. Das denkmalgeschützte Wohn- und Geschäftshaus befindet sich direkt in der Fußgängerzone und Haupteinkaufsstraße der historischen Innenstadt von Bautzen. Unzählige Einkaufsläden, mehrere Kaffees & Restaurants sowie Wahrzeichen wie der Reichenturm, das Rathaus oder der Dom St. Petri sind in unmittelbarer Nähe. Das Kornmarktcenter ist fußläufig in 2 Minuten erreicht. Im Erdgeschoss des Gebäudes befindet sich ein Drogeriemarkt.
Sonstige Informationen
Der Mietpreis berechnet sich je nach Lage im Gebäude, der gewünschten Ausstattung und Vertragslaufzeit. Gern unterbreiten wir Ihnen Ihr persönliches Mietabgebot.
Reichenstraße
Treppenhaus
Musterbild 2
Ansicht Kesselstraße
GR Reichenstraße Bautzen 1. OG