Exposé
Objektart:
Büro / Praxen
» Bueroflaeche
» Miete
Standort: Büro / Praxen »
Deutschland » Nordrhein-Westfalen » Düsseldorf, Stadt (Kreis) » Düsseldorf
Flexible Büro- und Hallenflächen in der Hafenpforte
Das Wichtigste auf einen Blick:
| Objektnummer: | 8684941 |
Preise
| Nebenkosten | keine Angabe |
| Mietpreis pro m² | 11,5 € |
Flächen
| Gesamtfläche | 244 m² |
| Bürofläche | 244 m² |
| Maklerprovision | Provisionspflichtig |
Objekt Adresse
40589 Düsseldorf
- Nordrhein-Westfalen
Sonstige Angaben
| Verfügbar ab | kurzfristig |
| Inserat befindet sich im Stockwerk | 4 |
Objektbeschreibung
Die Gewerbeimmobilie Hafenpforte bietet repräsentative Hallen- und Büroflächen mit besonderer Hafenatmosphäre. Das Gebäude wurde 1983 errichtet und in den letzetn Jahren umfangreich renoviert.
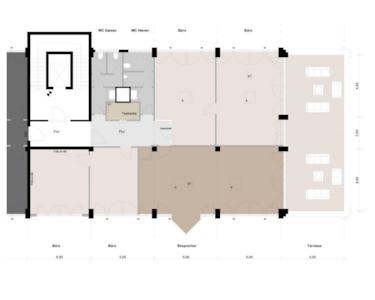
Die besondere Stärke der Hafenpforte liegt in der vielfältigen Teilbarkeit und Kombinierbarkeit alle Ebenen. Bei idealen Rastermaßen lassen sich Einzel-, Gruppen und Großraumbüros mit einer Größe von bis zu 250 m² gleichermaßen elegant darstellen. Mit einer individuellen Raumplanung setzen wir Ihre Vorstellungen optimal um.
Die besondere Stärke der Hafenpforte liegt in der vielfältigen Teilbarkeit und Kombinierbarkeit alle Ebenen. Bei idealen Rastermaßen lassen sich Einzel-, Gruppen und Großraumbüros mit einer Größe von bis zu 250 m² gleichermaßen elegant darstellen. Mit einer individuellen Raumplanung setzen wir Ihre Vorstellungen optimal um.
Lage des Objektes
Von der Düsseldorfer City aus gesehen fahren Sie knapp 8 Seemeilen flußaufwärts und machen am Reisholzer Hafen fest. Hier in exponierter Portallage kaum sieben Kilometer Luftlinie von der City haben Sie viele Probleme wie Kostendruckl, Effizienz und Erreichbarkeit elegant umschifft. Vor allem aus verkehrstechnischer Sicht bietet die Hafenpforte im Süden von Düsseldorf viele Vorteile:
- gute Verkehrsanbindung über die B8
- beste Anbindung an das Autobahnnetz
- ausreichend Parkmöglichkeiten direkt am Objekt
- U-Bahn-Haltestelle 3 Fußminuten entfernt
- werbewirksame Portallage an der B8
- gute Verkehrsanbindung über die B8
- beste Anbindung an das Autobahnnetz
- ausreichend Parkmöglichkeiten direkt am Objekt
- U-Bahn-Haltestelle 3 Fußminuten entfernt
- werbewirksame Portallage an der B8
Übersichtsplan.JPG
Grundriss 4.OG
1.OG Schulung