Exposé
Objektart:
Hallen / Lager / Produktion
» Halle
» Miete
Standort: Hallen / Lager / Produktion »
Deutschland » Bayern » Regensburg (Kreis) » Köfering
Moderne Lager-/Produktionshalle mit guter Verkehrsanbindung
Hallenfläche
Das Wichtigste auf einen Blick:
| Objektnummer: | 8676370 |
Preise
| Kaltmiete (netto) | 3.500 € |
| Nebenkosten | keine Angabe |
| Kaution | 2 Nettomonatsmieten |
Flächen
| Gesamtfläche | 410 m² |
| Maklerprovision | 2 Nettomonatsmieten zzgl. MwSt. |
Objekt Adresse
93096 Köfering
Sonstige Angaben
| Verfügbar ab | ab sofort |
Objektbeschreibung
In äußerst verkehrsgünstiger Lage an der B 15, werden diese neuwertigen Lager-/Hallenflächen zum Erstbezug angeboten.
Das Objekt bietet ca. 390 m² Gesamtnutzfläche und wird mittels Wäremepumpe beheizt. Starkstrom-, Wasser- und Kabelanschluß sind vorhanden. Der Betonboden ist hoch belastbar. Die Beleuchtung erfolgt über moderne LED-Strahler.
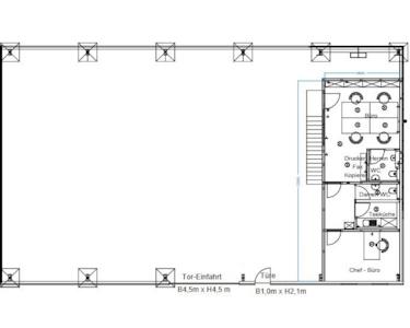
Die Hallenfläche kann über ein besonders großes Sektionaltor (4,5 m x 4,5 m) angedient werden. Zusätzlich ist eine separate Eingangstüre vorhanden. Die Hallenhöhe beträgt mindestens 4,0 Meter (zur Rückwand) und maximal bis 7,5 Meter (zur Vorderwand).
Ein großer Büroraum mit Teeküche sowie eine WC-Anlage für Damen und Herren stehen Ihnen zur Verfügung.
Die asphaltierte Aussenflächen bietet ausreichend Parkplätze direkt vor der Halle. Zusätzliche Freiflächen zur Lagerung können bei Bedarf mit angemietet werden.
Gerne zeigen wir Ihnen diese multifunktionale Gewerbefläche!
Das Objekt bietet ca. 390 m² Gesamtnutzfläche und wird mittels Wäremepumpe beheizt. Starkstrom-, Wasser- und Kabelanschluß sind vorhanden. Der Betonboden ist hoch belastbar. Die Beleuchtung erfolgt über moderne LED-Strahler.
Die Hallenfläche kann über ein besonders großes Sektionaltor (4,5 m x 4,5 m) angedient werden. Zusätzlich ist eine separate Eingangstüre vorhanden. Die Hallenhöhe beträgt mindestens 4,0 Meter (zur Rückwand) und maximal bis 7,5 Meter (zur Vorderwand).
Ein großer Büroraum mit Teeküche sowie eine WC-Anlage für Damen und Herren stehen Ihnen zur Verfügung.
Die asphaltierte Aussenflächen bietet ausreichend Parkplätze direkt vor der Halle. Zusätzliche Freiflächen zur Lagerung können bei Bedarf mit angemietet werden.
Gerne zeigen wir Ihnen diese multifunktionale Gewerbefläche!
Ausstattung
* ca. 390 m² Gesamtfläche
* ca. 350 m² Hallenfläche
* ca. 40 m² Büro-/Sozialraum
* großes Sektionaltor
* ausreichend Parkmöglichkeiten
* verkehrsgünstige Lage
* modernes Gebäude
* Erstbezug
* Bei Bedarf kann Lagerfläche im Außenbereich mit angemietet werden
Nebenkosten-Vorauszahlung wird je nach Nutzung neu festgelegt
* ca. 350 m² Hallenfläche
* ca. 40 m² Büro-/Sozialraum
* großes Sektionaltor
* ausreichend Parkmöglichkeiten
* verkehrsgünstige Lage
* modernes Gebäude
* Erstbezug
* Bei Bedarf kann Lagerfläche im Außenbereich mit angemietet werden
Nebenkosten-Vorauszahlung wird je nach Nutzung neu festgelegt
Lage des Objektes
Köfering ist eine aufstrebende Gemeinde mit ca. 2.900 Einwohnern im Oberpfälzer Landkreis Regensburg in Bayern.
Die Nähe zu den Gewerbestandorten Neutraubling, Obertraubling und auch Regensburg machen diesen Standort hochinteressant.
Die nächsten Autobahnauffahrten zur A 3, Regensburg sowie Neutraubling erreichen Sie in wenigen Fahrminuten. Durch Köfering verläuft die Bundesstraße 15.
Der Ort ist auch optimal an den öffentlichen Nahverkehr RVV angebunden.
Eine Bushaltestelle befindet sich direkt vor dem Objekt.
Zudem verfügt der Ort über den Haltepunkt Köfering an der Eisenbahnstrecke von Regensburg nach Landshut und München.
Die Nähe zu den Gewerbestandorten Neutraubling, Obertraubling und auch Regensburg machen diesen Standort hochinteressant.
Die nächsten Autobahnauffahrten zur A 3, Regensburg sowie Neutraubling erreichen Sie in wenigen Fahrminuten. Durch Köfering verläuft die Bundesstraße 15.
Der Ort ist auch optimal an den öffentlichen Nahverkehr RVV angebunden.
Eine Bushaltestelle befindet sich direkt vor dem Objekt.
Zudem verfügt der Ort über den Haltepunkt Köfering an der Eisenbahnstrecke von Regensburg nach Landshut und München.
Sonstige Informationen
Ein Energieausweis ist in Erstellung.
Bitte beachten Sie, dass für die im Exposé aufgeführten Angaben keine Haftung übernommen wird.
Wir bieten Ihnen gerne an, sich bei einem persönlichen Termin in unserer Immobilien Lounge
unverbindlich über dieses und weitere interessante Objekte zu informieren.
Vereinbaren Sie einfach einen Termin oder nennen Sie uns gleich einen Terminvorschlag!
Grundriss
Hallenfläche