Exposé
Objektart:
Büro / Praxen
» Bueroflaeche
» Miete
Standort: Büro / Praxen »
Deutschland » Bayern » München, Landeshauptstadt (Kreis) » München
PARKSITE - SCHWABING AUF TOPNIVEAU - provisionsfrei
a1
Angeboten von:
Harald Dördrechter Immobilien Consulting
Schluchtweg 23
82340 Feldafing
Deutschland
Telefon:08157-924772
Fax:08157-924771
www.hdic.de
Ansprechpartner/in
Harald Dördrechter ImmobilienConsulting
Herr Harald Dördrechter
| Telefon: | 08157 - 92 47 72 |
| Fax: | 08157 - 92 47 71 |
Das Wichtigste auf einen Blick:
| Objektnummer: | 8671128 |
Preise
| Miete für das Objekt | Auf Anfrage |
| Nebenkosten | 4,5 € |
| Mietpreis pro m² | 20,5 € |
Flächen
| Gesamtfläche | 3.000 m² |
| Bürofläche | 476 m² |
Objekt Adresse
80807 München
Sonstige Angaben
| Baujahr | 2009 |
| Verfügbar ab | nach Vereinbarung |
| Inserat befindet sich im Stockwerk | 2 |
| Heizungsart | Fernwärme |
| Wesentlicher Energieträger | Fernwärme |
| Energieträger/Befeuerung | Fernwärme |
Objektbeschreibung
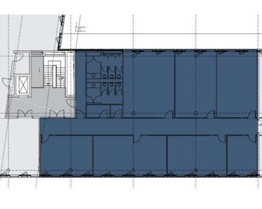
Das dreigeschossige Bürohaus beeindruckt mit seiner einzigartigen Architektur und der durchdachten Gestaltung. Die interessant gegliederte Fassade aus Glasfaserbeton-Elementen, eingefärbten Glaspaneelen und großzügigen Fensterflächen verleiht dem Gebäude seinen besonderen Reiz. Der u-förmige Grundriss schafft einen fast atriumartigen Grünbereich mit integrierten Parkplätzen. Betonkernaktivierung in den Zwischendecken sorgt für eine effiziente Kühlung und Beheizung der Räume. Sämtliche Räume sind flexibel teilbar, um individuelle Anforderungen zu erfüllen.
Tiefgaragenstellplätze à € 100,00 und Lagerflächen à € 8,50/m² anmietbar.
Tiefgaragenstellplätze à € 100,00 und Lagerflächen à € 8,50/m² anmietbar.
Ausstattung
Feingliedrig strukturierte Elementfassade: Bodentiefe Verglasung.
Verdeckt installierte Aluminium-Jalousien: Für optimalen Sonnenschutz.
Zutrittskontrollsystem: Berührungslose Magnetkartenlesegeräte, optionale Kameranachrüstung.
Offene, helle Treppenhäuser: Repräsentative Gestaltungselemente und individuelles Beleuchtungskonzept.
Großzügiges Stützraster von 8,10 m: Flexibles Ausbauraster von 1,35 m.
Lichte Raumhöhe: Ca. 3,00 m, im Erdgeschoss 4,10 m.
Büroflächen mit Hohlraumboden/Bodentanks: Optional Kühlung.
Getrennte Sanitäreinheiten in allen Mietbereichen: Elektroverteilungsraum und klimatisierter Serverraum.
Verdeckt installierte Aluminium-Jalousien: Für optimalen Sonnenschutz.
Zutrittskontrollsystem: Berührungslose Magnetkartenlesegeräte, optionale Kameranachrüstung.
Offene, helle Treppenhäuser: Repräsentative Gestaltungselemente und individuelles Beleuchtungskonzept.
Großzügiges Stützraster von 8,10 m: Flexibles Ausbauraster von 1,35 m.
Lichte Raumhöhe: Ca. 3,00 m, im Erdgeschoss 4,10 m.
Büroflächen mit Hohlraumboden/Bodentanks: Optional Kühlung.
Getrennte Sanitäreinheiten in allen Mietbereichen: Elektroverteilungsraum und klimatisierter Serverraum.
Lage des Objektes
Das Bürohaus befindet sich in der Parkstadt Schwabing, einem erstklassigen Standort im Münchner Norden. Die Top-Anbindung zur Autobahn, zum Flughafen und in die Münchner Innenstadt bietet maximale Flexibilität. Restaurants und Geschäfte des täglichen Bedarfs befinden sich im benachbarten Gebäude, einem modernen Shopping-Center. Namhafte Unternehmen wie Fujitsu-Siemens, Langenscheidt, Roland Berger und CBP Cronauer haben sich bereits für diesen Standort entschieden. Vier Hotels unterschiedlicher Preisklassen befinden sich ebenfalls in der Parkstadt Schwabing. MVV: U-Bahnstation "Alte Heide" und Tram 23 sind gut erreichbar.
a3
a2
Eingang 2
TH
i1
innen1
San
TG
GR 2.OG 476m²