Exposé
Objektart:
Büro / Praxen
» Buerohaus
» Miete
Standort: Büro / Praxen »
Deutschland » Sachsen » Leipzig, Stadt (Kreis) » Leipzig
BUERO.Haus in der Südvorstadt Leipzigs
Außenansicht
Das Wichtigste auf einen Blick:
| Objektnummer: | 8621164 |
Preise
| Miete für das Objekt | Auf Anfrage |
| Nebenkosten | keine Angabe |
Flächen
| Bürofläche | 2.400 m² |
| Bürofläche | 2.400 m² |
| Fläche teilbar ab | 2400 m² |
| Maklerprovision | provisionsfrei |
Objekt Adresse
04275 Leipzig
Sonstige Angaben
| Verfügbar ab | keine Angabe |
Objektbeschreibung
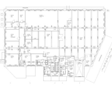
Das 4geschossige frühere Fabrikgebäude mit einer Gesamtfläche von ca. 4.400 m² kann vielfältig genutzt werden. Über einen zentralen Eingangsbereich werden die Geschosse über eine Aufzugsanlage erschlossen. Zusätzlich ist ein Lastenaufzug vorhanden. Die Mietbereiche können nach dem Raumprofil des Nutzers ausgebaut und ausgestattet werden. Insgesamt stehen im Gebäude folgende Flächen zur Anmietung.
Untergeschoss: Stellplätze/Tiefgarage ca. 800 m²
Erdgeschoss 800 m² Stellplätze/Werkstatt
1. Obergeschoss: Büro/Werkstatt
2. Obergeschoss: 800 m² Büro
3. Obergeschoss: 800 m² Büro
Auf dem großen grünen Grundstück stehen weitere Flächen für eine Stellplatznutzung zur Verfügung.
Untergeschoss: Stellplätze/Tiefgarage ca. 800 m²
Erdgeschoss 800 m² Stellplätze/Werkstatt
1. Obergeschoss: Büro/Werkstatt
2. Obergeschoss: 800 m² Büro
3. Obergeschoss: 800 m² Büro
Auf dem großen grünen Grundstück stehen weitere Flächen für eine Stellplatznutzung zur Verfügung.
Lage des Objektes
Das revitalisierte denkmalgeschützte frühere Fabrikgebäude befindet sich in der Südvorstadt Leipzigs nahe des Amtsgerichtes und des Landgerichtes. Von hier aus sind das Stadtzentrum und die B2 als Zubringer zum Autobahnanschluss A 14 zügig erreicht. Zahlreiche Gastronomiebetriebe und Kulinarische Einrichtungen befinden sich im kreativen Umfeld der Brandvorwerkstraße.
Sonstige Informationen
Der Mietpreis richtet sich nach Ausstattung, Lage im Gebäude und Vertragslaufzeit und liegt zwischen 12,50 EUR/ m² und 14,50 EUR/ m².
Büroanmietung leicht gemacht?
Bitte sprechen Sie uns an, gern stellen wir Ihnen eine Auswahl geeigneter Büroflächenangebote zusammen. Für Fragen, ein persönliches Gespräch oder auch eine persönliche Terminvereinbarung stehen wir Ihnen gern telefonisch unter 0341|5643000 zur Verfügung
Innenansicht
Innenansicht
Innenansicht
Innenansicht
Innenansicht
Innenansicht
Innenansicht
Grundriss