Exposé
Objektart:
Büro / Praxen
» Bueroflaeche
» Miete
Standort: Büro / Praxen »
Deutschland » Nordrhein-Westfalen » Düsseldorf, Stadt (Kreis) » Düsseldorf
Büroflächen in zentraler Lage zur Miete. Moderne Büroausstattung, sehr gute Anbindung an den ÖPNV
Das Wichtigste auf einen Blick:
| Objektnummer: | 8604939 |
Preise
| Nebenkosten | keine Angabe |
| Mietpreis pro m² | 13,5 € |
Flächen
| Gesamtfläche | 660 m² |
| Bürofläche | 660 m² |
Objekt Adresse
40210 Düsseldorf
- Nordrhein-Westfalen
Sonstige Angaben
| Baujahr | 1956 |
| Verfügbar ab | kurzfristig |
| Anzahl der Etagen im Haus | 8 |
| Inserat befindet sich im Stockwerk | 3 |
| Boden | Teppich |
| Fahrstuhl | Ja |
| Energieausweistyp | Verbrauch |
| Gültig bis | 2024-07-01 |
| Baujahr (laut Energieausweis) | 1956 |
| Energieeffizienzklasse | C |
| Heizungsart | Zentralheizung |
| Wesentlicher Energieträger | Elektro |
| Energieträger/Befeuerung | Elektro |
Objektbeschreibung
8-geschossiges Büro- und Geschäftshaus, attraktive Naturstein-Granit-Fassade, repräsentativer Eingangsbereich, Personenaufzüge, objekteigene Tiefgarage mit PKW-Stellplätzen.
Das Objekt liegt sehr zentral in Düsseldorf und befindet sich direkt gegenüber des Hauptbahnhofes.
Die Flächen sind ab sofort verfügbar.
Das Objekt liegt sehr zentral in Düsseldorf und befindet sich direkt gegenüber des Hauptbahnhofes.
Die Flächen sind ab sofort verfügbar.
Ausstattung
- Personenaufzug
- Doppelverglasung in Alurahmen
- außenliegender Sonnenschutz
- Verloursteppichboden
- Fensterbankkabelkanäle
- abgehängte Decken mit integrierten, computerunterstützenden Beleuchtungskörpern
- Doppelverglasung in Alurahmen
- außenliegender Sonnenschutz
- Verloursteppichboden
- Fensterbankkabelkanäle
- abgehängte Decken mit integrierten, computerunterstützenden Beleuchtungskörpern
Lage des Objektes
Die Liegenschaft befindet sich in zentraler Innenstadtlage, direkt gegenüber dem Hauptbahnhof. Es sind nur wenige Gehminuten bis zur Königsallee. Mehrere öffentliche Parkhäuser in unmittelbarer Nähe.
In südl. Richtung erreicht man Autobahnanschlussstellen, die über die BAB 46 eine Anbindung an die Städte Hilden, Solingen und Wuppertal oder Richtung Dormagen und Köln gewährleistet. Über die Rhein-Kniebrücke erreicht man den linksrheinischen Bereich und somit die Gebiete wie Krefeld, Mönchengladbach/Venlo, Aachen und Neuss.
Der nur einige 100 m entfernte Hauptbahnhof stellt mit den S-Bahnlinien S6, S7, S8 und S11 eine gute Anbindung an den öffentlichen Personennahverkehr dar.
In südl. Richtung erreicht man Autobahnanschlussstellen, die über die BAB 46 eine Anbindung an die Städte Hilden, Solingen und Wuppertal oder Richtung Dormagen und Köln gewährleistet. Über die Rhein-Kniebrücke erreicht man den linksrheinischen Bereich und somit die Gebiete wie Krefeld, Mönchengladbach/Venlo, Aachen und Neuss.
Der nur einige 100 m entfernte Hauptbahnhof stellt mit den S-Bahnlinien S6, S7, S8 und S11 eine gute Anbindung an den öffentlichen Personennahverkehr dar.
Vorderansicht
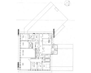
Grundriss 1. OG
Grundriss 2.OG
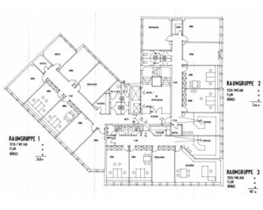
Grundriss 1.-5. OG
IMG_0130
IMG_0132
IMG_0133
IMG_0135
IMG_0136
IMG_0137
IMG_0138
IMG_0139
IMG_0140