Exposé
Objektart:
Wohnung
» Apartment
» Miete
Standort: Wohnung »
Deutschland » Schleswig-Holstein » Lübeck, Hansestadt (Kreis) » Lübeck
Schöne zentrale 3-Zimmerwohnung in Lübeck, möbliert
Wohnen
Angeboten von:
HomeCompany Kiel
Lutherstraße 38-40
24114 Kiel
Deutschland
Telefon:43119445
Fax:4319828501
Ansprechpartner/in
Herr Kai Fierus| Telefon: | 0431-19445 |
| Fax: | 0431-9828501 |
Das Wichtigste auf einen Blick:
| Objektnummer: | 8580551 |
Preise
| Warmmiete | 1.280 € |
| Nebenkosten | keine Angabe |
| Kaution | 2.000,00 € € |
Flächen
| Wohnfläche | 65 m² |
Objekt Adresse
23552 Lübeck
- Schleswig-Holstein
Sonstige Angaben
| Zimmer | 3 |
| Verfügbar ab | 01.02.2026 |
| Küche | Einbauküche |
| Bad | Wanne |
| Boden | Parkett |
| Heizungsart | Zentralheizung |
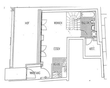
Objektbeschreibung
Diese attraktive, ruhige 3 Zimmer Maisonette-Wohnung befindet sich mitten in der Lübecker Altstadt in einer schönen Wohnanlage. Sie ist in sich vollkommen abgeschlossen mit extra Eingang und eigener Haustür. Im Erdgeschoss großes Wohn-Esszimmer mit Zugang zur großen Terrasse, großzügig ausgestattete offene Küche. Bad mit Badewanne, Waschmaschine und Trockner. Im Obergeschoss helles Galerie-/Arbeitszimmer mit Schreibtisch und Aktenschrank, Schlafzimmer mit Doppelbett (1,80m breit).
Große Terrasse mit Gartenmöbeln,
Verdunklungsvorhänge im Schlafzimmer, begehbarer Kleiderschrank neben dem Bad, Staubsauger, Bügeleisen mit Bügelbrett Abstellfläche im Obergeschoss,
Fahrradunterstand.
Strom bezieht der Mieter auf eigene Kosten vom Versorgungsunternehmen. Der Rundfunkbeitrag ist nicht in der Miete enthalten. Mindestmietzeit 3 Monate, Höchstmietzeit 6 Monate.
Energieausweis: Energieverbrauchsausweis, Endenergieverbrauch: 104 kWh/(m²a), wesentlicher Energieträger:Erdgas L, Baujahr: 1997
Große Terrasse mit Gartenmöbeln,
Verdunklungsvorhänge im Schlafzimmer, begehbarer Kleiderschrank neben dem Bad, Staubsauger, Bügeleisen mit Bügelbrett Abstellfläche im Obergeschoss,
Fahrradunterstand.
Strom bezieht der Mieter auf eigene Kosten vom Versorgungsunternehmen. Der Rundfunkbeitrag ist nicht in der Miete enthalten. Mindestmietzeit 3 Monate, Höchstmietzeit 6 Monate.
Energieausweis: Energieverbrauchsausweis, Endenergieverbrauch: 104 kWh/(m²a), wesentlicher Energieträger:Erdgas L, Baujahr: 1997
Ausstattung
Geschirrspüler
Einbauküche
Mikrowelle
offene Küche
Terrasse
Schreibtisch
Wannenbad
Waschmasch.
Trockner
Zentralheizung
TV-Gerät
Parkett
Herd
Kühlschrank
Bett
komfortabel
Einbauküche
Mikrowelle
offene Küche
Terrasse
Schreibtisch
Wannenbad
Waschmasch.
Trockner
Zentralheizung
TV-Gerät
Parkett
Herd
Kühlschrank
Bett
komfortabel
Sonstige Informationen
Kaution: 2.000,00 EUR
möbliert
ruhig
grün
hell
zentral
Firmenname: HomeCompany Kiel
Inhaber: Thomas Fierus
Adresse: Lutherstraße 38-40
24114 Kiel
Tel.: + 49 (0) 431 - 19445
Fax: + 49 (0) 431 - 9828501
E-Mail: kiel@homecompany.de
USt.-IdNr.: DE 220471769
Aufsichtsbehörde: Bürger- und Ordnungsamt, Gewerbeabteilung, Landeshauptstadt Kiel, Andreas Gayk Straße 31c, 24103 Kiel
V.i.S.d.P.: Thomas Fierus
Schlafen
Küche
Bad