Exposé
Objektart:
Büro / Praxen
» Bueroflaeche
» Miete
Standort: Büro / Praxen »
Deutschland » Nordrhein-Westfalen » Düsseldorf, Stadt (Kreis) » Düsseldorf
Provisionsfrei I Gut angebundene Büroflächen am Aaper Wald I Ausbau nach Mieterwunsch
Das Wichtigste auf einen Blick:
| Objektnummer: | 8568832 |
Preise
| Nebenkosten | keine Angabe |
| Mietpreis pro m² | 12,5 € |
Flächen
| Gesamtfläche | 332 m² |
| Bürofläche | 332 m² |
Objekt Adresse
40470 Düsseldorf
- Nordrhein-Westfalen
Sonstige Angaben
| Verfügbar ab | kurzfristig |
| Anzahl der Etagen im Haus | 13 |
| Inserat befindet sich im Stockwerk | 4 |
| Fahrstuhl | Ja |
| Heizungsart | Zentralheizung |
| Energieträger/Befeuerung | Gas |
Objektbeschreibung
Der Gebäudekomplex besteht aus drei Bauteilen, welche über ein repräsentatives Foyer miteinander verbunden sind. Alle Bauteile wurden im Jahre 2000 vollständig saniert und auf einen hochwertigen Gebäudestandard verbaut. Die Büroimmobilie besticht durch ein hauseigenes Restaurant, E-Ladesäulen, Leihfahrräder und Duschen mit Schließfächern. Zusätzlich steht eine Konferenzetage mit Räumen zur tageweisen Anmietung zur Verfügung.
Ausstattung
- Raumaufteilung nach Mieterwunsch
- vorgerichtete Teeküchen je Mieteinheit
- getrennte Damen- und Herren WC Einheiten
- Bodenbelag nach Mieterwunsch
- Kühldecken
- vorgerichtete Teeküchen je Mieteinheit
- getrennte Damen- und Herren WC Einheiten
- Bodenbelag nach Mieterwunsch
- Kühldecken
Lage des Objektes
Die Liegenschaft befindet sich im Düsseldorfer Norden im Büromarkt Mörsenbroicher Ei. Durch die verkehrsgünstige Lage des Objektes erreichen Sie in 5 Minuten die Autobahn A52 Richtung Düsseldorfer Flughafen. Auch die öffentliche Anbindung ist mit der vor der Tür liegenden Haltestelle "Mörsenbroicher Weg" ideal erschlossen. So ist die Düsseldorfer Innenstadt in nur 13 Minuten mit der Bahn erreichbar.
Sonstige Informationen
- hauseigenes Bistro
- nachhaltige E-Ladesäulen
- Leihfahrräder für idyllische Touren im Grafenberger Wald
- Duschen mit Schließfächer
- Konferenzetage zur tageweisen Anmietung
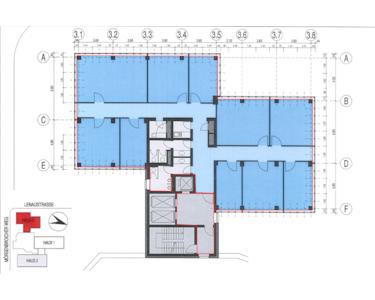
Grundriss 2.OG Haus 3
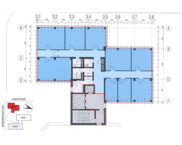
Grundriss 3.OG Haus 3
Grundriss 4.OG Haus 3
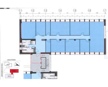
Grundriss 5.OG Haus 1
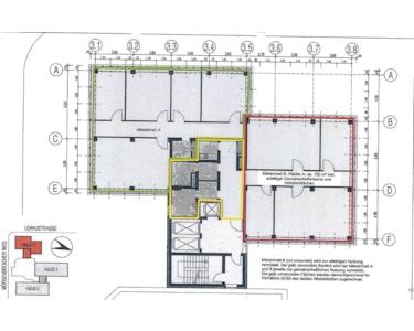
Beispielaufteilung 5. OG Haus 1
Grundriss 8.OG Haus 3