Exposé
Objektart:
Haus
» Doppelhaushaelfte
» Kauf
Standort: Haus »
Deutschland » Baden-Württemberg » Esslingen (Kreis) » Hochdorf
Neubauprojekt in Hochdorf, schöne DHH, 2 Terrassen, Balkon, Garten, KfW55, Carport und Stellplatz
Küche mit Inseltheke
Das Wichtigste auf einen Blick:
| Objektnummer: | 8567175 |
Preise
| Kaufpreis | 769.000 € |
| Nebenkosten | keine Angabe |
Flächen
| Wohnfläche | 150,6 m² |
| Grundstücksfläche | 308 m² |
Objekt Adresse
73269 Hochdorf
Sonstige Angaben
| Baujahr | 2025 |
| Zimmer | 5 |
| Verfügbar ab | keine Angabe |
| Bad | 1 |
| Bad | 1 |
| Balkone | 1 |
| Terrassen | 2 |
| Heizungsart | Fußbodenheizung |
| Energieträger/Befeuerung | Luft-Wärme-Pumpe |
Objektbeschreibung
Gelegenheit!
Neubauprojekt in schöner ruhiger und dennoch verkehrsgünstiger Lage von Hochdorf im KFW 55 Standard!
In diesem Neubauprojekt entstehen in Massivbauweise 2 moderne zeitlose Mehrfamilienhäuser mit insgesamt 15 Wohnungen sowie 4 Doppelhaushälften.
Die beiden Doppelhäuser entstehen von der Reichenbacher Straße aus wunderschön in zweiter Baureihe. Die großzügigen Räume, die intelligente Planung und Aufteilung sowie das Gefühl im Grünen zu sein, wird Sie begeistern.
Außerdem verfügen alle Häuser über großzügige Grundstücke, so dass auch alle Gartenfans auf Ihre Kosten kommen.
Durch das begrünte Flachdach sind das Erdgeschoss sowie das Obergeschoss Vollgeschosse, das heißt, Sie haben keine Schrägen.
Im Untergeschoss und im Erdgeschoss haben Sie jeweils eine Terrasse, im Obergeschoss noch zusätzlich einen Balkon.
Im Preis enthalten sind bereits pro Haus jeweils ein Außenstellplatz, ein Carport und das jeweilige Grundstück.
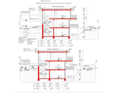
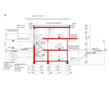
Das Haus 1/2 ist wie folgt aufgeteilt:
Erdgeschoss:
- großzügiges Wohn-Esszimmer mit offener Küche und Zugang zur Terrasse
- schöner Eingangsbereich/Diele/Treppenhaus
- ein Abstellraum
- ein separates WC mit Toilette und Waschbecken
Obergeschoss:
- drei Schlafzimmer, zwei davon mit Zugang zum Balkon
- ein Tageslicht-Badezimmer mit Badewanne, Dusche, Waschbecken und WC
- Flur/ Treppenhaus
Untergeschoss:
- ein großes Zimmer mit Zugang zur Terrasse
- Flur/Treppenhaus
Außerdem gibt es im Untergeschoss noch einen Technik- und einen Kellerraum mit Anschlüssen für Waschmaschine und Trockner.
Geplante Fertigstellung: nach Absprache
Der Energieausweis ist aktuell noch nicht erforderlich, da es sich um einen Neubau handelt. Zur Fertigstellung bzw. Übergabe der Doppelhaushälfte wird dieser vorliegen.
Neubauprojekt in schöner ruhiger und dennoch verkehrsgünstiger Lage von Hochdorf im KFW 55 Standard!
In diesem Neubauprojekt entstehen in Massivbauweise 2 moderne zeitlose Mehrfamilienhäuser mit insgesamt 15 Wohnungen sowie 4 Doppelhaushälften.
Die beiden Doppelhäuser entstehen von der Reichenbacher Straße aus wunderschön in zweiter Baureihe. Die großzügigen Räume, die intelligente Planung und Aufteilung sowie das Gefühl im Grünen zu sein, wird Sie begeistern.
Außerdem verfügen alle Häuser über großzügige Grundstücke, so dass auch alle Gartenfans auf Ihre Kosten kommen.
Durch das begrünte Flachdach sind das Erdgeschoss sowie das Obergeschoss Vollgeschosse, das heißt, Sie haben keine Schrägen.
Im Untergeschoss und im Erdgeschoss haben Sie jeweils eine Terrasse, im Obergeschoss noch zusätzlich einen Balkon.
Im Preis enthalten sind bereits pro Haus jeweils ein Außenstellplatz, ein Carport und das jeweilige Grundstück.
Das Haus 1/2 ist wie folgt aufgeteilt:
Erdgeschoss:
- großzügiges Wohn-Esszimmer mit offener Küche und Zugang zur Terrasse
- schöner Eingangsbereich/Diele/Treppenhaus
- ein Abstellraum
- ein separates WC mit Toilette und Waschbecken
Obergeschoss:
- drei Schlafzimmer, zwei davon mit Zugang zum Balkon
- ein Tageslicht-Badezimmer mit Badewanne, Dusche, Waschbecken und WC
- Flur/ Treppenhaus
Untergeschoss:
- ein großes Zimmer mit Zugang zur Terrasse
- Flur/Treppenhaus
Außerdem gibt es im Untergeschoss noch einen Technik- und einen Kellerraum mit Anschlüssen für Waschmaschine und Trockner.
Geplante Fertigstellung: nach Absprache
Der Energieausweis ist aktuell noch nicht erforderlich, da es sich um einen Neubau handelt. Zur Fertigstellung bzw. Übergabe der Doppelhaushälfte wird dieser vorliegen.
Ausstattung
Ausstattung:
- KFW 55 Energieeffizienzhaus
- Fußbodenheizung – Luft-Wasser-Wärmepumpe
- Parkettböden in den Wohnräumen, offenen Küchen, Schlafräumen, Fluren
- dreifach verglaste Fenster in allen Wohnräumen
- Flachdach mit extensiver Begrünung
Weitere Details entnehmen Sie bitte der Baubeschreibung.
Weitere Details entnehmen Sie bitte der Baubeschreibung.
- KFW 55 Energieeffizienzhaus
- Fußbodenheizung – Luft-Wasser-Wärmepumpe
- Parkettböden in den Wohnräumen, offenen Küchen, Schlafräumen, Fluren
- dreifach verglaste Fenster in allen Wohnräumen
- Flachdach mit extensiver Begrünung
Weitere Details entnehmen Sie bitte der Baubeschreibung.
Weitere Details entnehmen Sie bitte der Baubeschreibung.
Lage des Objektes
Die Gemeinde Hochdorf im Landkreis Esslingen mit ca. 4800 Einwohnern zeichnet sich durch ihre ländliche ruhige, aber zentrale verkehrsgünstige Lage aus.
Die gute und schnelle Verkehrsanbindung an die B10 und die A8 aber auch an die Große Kreisstadt Kirchheim machen Hochdorf zu einem idealen Wohnort für alle, die gerne ihre Ruhe und das ländliche Flair genießen wollen aber eine gute Anbindung schätzen und benötigen.
Verschiedene Einkaufsmöglichkeiten, Ärzte und eine Apotheke sowie Restaurants und ein Cafe sind für den täglichen Bedarf vorhanden. In den umliegenden Ortschaften stehen Ihnen noch weitere Möglichkeiten offen, zur Klinik nach Kirchheim sind es auch nur wenige Minuten Fahrtzeit.
Auch für Ihre Kinder ist gesorgt, Kindergärten sowie eine Grundschule ist Vorort, weiterführende Schulen gibt es z.B. in Ebersbach, Plochingen oder Kirchheim. Mehrere Spielplätze sind ebenfalls vorhanden.
Genießen Sie Ihre Freizeit in den verschiedenen Sport- und Freizeitanlagen oder in der schönen Umgebung von Hochdorf. Im Sommer haben Sie das große Freibad von Reichenbach vor der Haustüre, mit dem Fahrrad erreichen Sie es in wenigen Minuten.
Die gute und schnelle Verkehrsanbindung an die B10 und die A8 aber auch an die Große Kreisstadt Kirchheim machen Hochdorf zu einem idealen Wohnort für alle, die gerne ihre Ruhe und das ländliche Flair genießen wollen aber eine gute Anbindung schätzen und benötigen.
Verschiedene Einkaufsmöglichkeiten, Ärzte und eine Apotheke sowie Restaurants und ein Cafe sind für den täglichen Bedarf vorhanden. In den umliegenden Ortschaften stehen Ihnen noch weitere Möglichkeiten offen, zur Klinik nach Kirchheim sind es auch nur wenige Minuten Fahrtzeit.
Auch für Ihre Kinder ist gesorgt, Kindergärten sowie eine Grundschule ist Vorort, weiterführende Schulen gibt es z.B. in Ebersbach, Plochingen oder Kirchheim. Mehrere Spielplätze sind ebenfalls vorhanden.
Genießen Sie Ihre Freizeit in den verschiedenen Sport- und Freizeitanlagen oder in der schönen Umgebung von Hochdorf. Im Sommer haben Sie das große Freibad von Reichenbach vor der Haustüre, mit dem Fahrrad erreichen Sie es in wenigen Minuten.
Sonstige Informationen
Bitte nutzen Sie den Button "Anbieter kontaktieren", so bekommen Sie am schnellsten Informationen zu Ihrer Traumwohnung!
Verpflichtung zur Geheimhaltung / Diskretion:
Wir bitten Sie um Geheimhaltung und diskrete Verwendung der im Zusammenhang mit diesem Objekt erhaltenen Daten und Informationen, insbesondere projektspezifischer Daten, wie z.B. Adressen, Grundrisse, Namen etc. im Zusammenhang mit diesen Objekten.
Falls Sie sich vorab einen ersten Eindruck von der Lage der Immobilie machen möchten, bitten wir um Ihre Diskretion.
Besichtigungstermine sind nur nach vorheriger Terminvereinbarung mit uns möglich.
Unser Angebot ist freibleibend. Alle Angaben erfolgen nach bestem Wissen, jedoch ohne Gewähr. Ein Zwischenverkauf ist vorbehalten. Die Weitergabe an Dritte ist nicht gestattet, sofern diese Daten nicht zu Finanzierungszwecken dienen oder anderen, im Zusammenhang mit dem Kauf eines Objekts stehenden Aufgaben verwendet werden sollen. Sämtliche Daten wurden uns vom Verkäufer genannt und werden ohne Gewähr an den Interessenten weitergeleitet! Dieses Exposé ist eine Vorabinformation und ist ausschließlich für Sie selbst bestimmt. Als Rechtsgrundlage gilt allein der abgeschlossene Kaufvertrag. Eine unbefugte Weitergabe sensibler Informationen kann einen Schadenersatzanspruch begründen.
Sämtliche Illustrationen sowie die eingezeichneten Möbel, Küchen und Ausstattungen sind nur Beispiele und daher auch kein Vertragsbestandteil. Visuelle Darstellungen können von der finalen Ausführung abweichen. Alle Unterlagen, Pläne und Flächenangaben sind auf Basis der Baupläne Stand Februar 2023. Diese sind nicht zur Maßentnahme geeignet. Änderungen auch noch während der Ausführung bleiben vorbehalten.
Maßgeblich sind nur der notarielle Kaufvertrag und seine beurkundeten Anlagen.
unverbindliche Illustration DHH
EG
OG
UG
Aktion Energieausweis
unverbindliche Illustration Projekt
DH2-EG
DH2-OG
DH2-UG
Ansicht Nord-Ost DHH 1-2
Ansicht Nord-West Doppelhaushälften
Ansicht Süd-Ost DHH
Schnitt C-C DHH 1-2 und 1-3
Schnitt C-C und D-D DHH
aerial1_2F-min