Exposé
Objektart:
Büro / Praxen
» Bueroflaeche
» Miete
Standort: Büro / Praxen »
Deutschland » Nordrhein-Westfalen » Düsseldorf, Stadt (Kreis) » Düsseldorf
Top Flächen im Seestern-Gebiet
Das Wichtigste auf einen Blick:
| Objektnummer: | 8530966 |
Preise
| Nebenkosten | keine Angabe |
| Mietpreis pro m² | 13 € |
Flächen
| Gesamtfläche | 278 m² |
| Bürofläche | 278 m² |
| Maklerprovision | Provisionpflichtig |
Objekt Adresse
40547 Düsseldorf
- Nordrhein-Westfalen
Sonstige Angaben
| Baujahr | 1997 |
| Verfügbar ab | kurzfristig |
| Inserat befindet sich im Stockwerk | 2 |
| Boden | Teppich |
| Fahrstuhl | Ja |
| Energieausweistyp | Verbrauch |
| Gültig bis | 2020-04-01 |
| Baujahr (laut Energieausweis) | 1997 |
| Heizungsart | Zentralheizung |
| Wesentlicher Energieträger | Fern |
| Energieträger/Befeuerung | Fernwärme |
Objektbeschreibung
Das Objekt bietet verteilt auf 10 Etagen ca. 8.650 m² exklusive Büroflächen, welche bequem über die Aufzüge erreicht werden können. Die ansprechende Glasfassade und der repräsentative Eingangsbereich wissen zu beeindrucken.
Die hauseigene Tiefgarage bietet ausreicherd Parkmöglichkeiten.
Die hauseigene Tiefgarage bietet ausreicherd Parkmöglichkeiten.
Lage des Objektes
Durch die gute geographische Lage ist man an die Düsseldorfer Innenstadt, den Flughafen, den Düsseldorfer Norden und die Bundesautobahnen in Richtung Ruhrgebiet ebenso gut angebunden wie an das Autobahnnetz in Richtung Mönchengladbach/ Roermond.
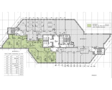
Grundriss 7.Obergeschoss
Grundriss 5.OG