Exposé
Objektart:
Büro / Praxen
» Bueroflaeche
» Miete
Standort: Büro / Praxen »
Deutschland » Brandenburg » Potsdam-Mittelmark (Kreis) » Teltow
Businessstandort der Zukunft! Büroflächen von 231,28 m² bis 2.638 m² zu vermieten!
Das Wichtigste auf einen Blick:
| Objektnummer: | 8522085 |
Preise
| Miete für das Objekt | Auf Anfrage |
| Nebenkosten | 3,3 € |
| Kaution | 3 Monatsmieten brutto warm |
Flächen
| Nutzfläche | 2.638 m² |
| Gesamtfläche | 2.638 m² |
| Bürofläche | 2.638 m² |
| Grundstücksfläche | 2.638 m² |
| Fläche teilbar ab | 231,28 m² |
| Maklerprovision | Keine |
Objekt Adresse
14513 Teltow
- Brandenburg
Sonstige Angaben
| Baujahr | 1995 |
| Verfügbar ab | sofort |
| Fahrstuhl | Ja |
| Barrierefrei | |
| Energieausweistyp | Verbrauch |
| Ausstellungsdatum | 05. 04. 2018 |
| Gültig bis | 04.04.2028 |
| Energieeffizienzklasse | C |
| Wesentlicher Energieträger | Fernwärme |
| Energieträger/Befeuerung | Fernwärme |
Objektbeschreibung
Arbeiten in Teltow – in der Airport-Region Berlin-Brandenburg:
In gut angebundener Lage mit kurzen Wegen nach Berlin und Potsdam steht dieses moderne Büro- und Geschäftshaus im Techno Terrain Teltow.
Bei dieser Immobilie handelt es sich um ein fünfgeschossiges Bürogebäude, welches sich durch Flexibilität und moderne Ausstattung auszeichnet.
Die attraktive Außengestaltung dieses modernen Geschäftshauses und die ausgezeichnete Lage zur unmittelbaren Stadtgrenze zu Berlin runden das Angebot ab.
Die Darstellung unterschiedlicher Raumkonzepte von Einzel-, Großraum- bis hin zum Kombibüro ist möglich.
Ferner besteht die Möglichkeit der Anmietung von PKW-Stellplätzen in der Tiefgarage oder im Außenbereich.
Die angebotenen Büroflächen befinden sich in der zweiten bzw. in der dritten Etage und verfügen über eine Gesamtfläche von ca. 231,28 m² bis ca. 2.638 m².
Die Büroflächen sind offen gestaltet und bieten dadurch helle und angenehme Räume.
Eine individuelle Aufteilung der Mietbereiche ist möglich und bietet daher große Flexibilität.
Gestalten Sie gemeinsam mit uns Ihren neuen, attraktiven und zukunftsorientierten Business-Standort.
Die zentrale Lage, die moderne Ausstattung und die optimale Verkehrsanbindung machen die Büroflänhe zu einem attraktiven Standort für Unternehmen, die nach einer repräsentativen Bürofläche suchen.
In gut angebundener Lage mit kurzen Wegen nach Berlin und Potsdam steht dieses moderne Büro- und Geschäftshaus im Techno Terrain Teltow.
Bei dieser Immobilie handelt es sich um ein fünfgeschossiges Bürogebäude, welches sich durch Flexibilität und moderne Ausstattung auszeichnet.
Die attraktive Außengestaltung dieses modernen Geschäftshauses und die ausgezeichnete Lage zur unmittelbaren Stadtgrenze zu Berlin runden das Angebot ab.
Die Darstellung unterschiedlicher Raumkonzepte von Einzel-, Großraum- bis hin zum Kombibüro ist möglich.
Ferner besteht die Möglichkeit der Anmietung von PKW-Stellplätzen in der Tiefgarage oder im Außenbereich.
Die angebotenen Büroflächen befinden sich in der zweiten bzw. in der dritten Etage und verfügen über eine Gesamtfläche von ca. 231,28 m² bis ca. 2.638 m².
Die Büroflächen sind offen gestaltet und bieten dadurch helle und angenehme Räume.
Eine individuelle Aufteilung der Mietbereiche ist möglich und bietet daher große Flexibilität.
Gestalten Sie gemeinsam mit uns Ihren neuen, attraktiven und zukunftsorientierten Business-Standort.
Die zentrale Lage, die moderne Ausstattung und die optimale Verkehrsanbindung machen die Büroflänhe zu einem attraktiven Standort für Unternehmen, die nach einer repräsentativen Bürofläche suchen.
Ausstattung
Die Büroflächen verfügen über eine moderne Ausstattung, die höchste Arbeitsqualität garantiert. Sämtliche Räumlichkeiten sind mit Außenjalousien ausgestattet, die für ein angenehmes Raumklima sorgen.
Die Beleuchtung erfolgt über moderne Bürolampen, die für eine optimale Ausleuchtung sorgen. Die Fenster sind doppelt verglast, sodass eine ruhige Arbeitsumgebung gewährleistet ist.
Darüber hinaus sind die Büroflächen mit einem schnellen Internetzugang ausgestattet, der eine reibungslose Kommunikation ermöglicht.
Ein Aufzug ist ebenfalls vorhanden und erleichtert den Zugang zu Ihrem neuen Businessstandort.
Tiefgaragenstellplätze sowie Außenstellplätze für die Geschäftsleitung und die Mitarbeiter können nach Absprach angemietet werden.
Die Vermietung findet nach DIN 277 (BGF) statt (die Nebenkostenabrechnung erfolgt nach der Nettogrundfläche).
Die Beleuchtung erfolgt über moderne Bürolampen, die für eine optimale Ausleuchtung sorgen. Die Fenster sind doppelt verglast, sodass eine ruhige Arbeitsumgebung gewährleistet ist.
Darüber hinaus sind die Büroflächen mit einem schnellen Internetzugang ausgestattet, der eine reibungslose Kommunikation ermöglicht.
Ein Aufzug ist ebenfalls vorhanden und erleichtert den Zugang zu Ihrem neuen Businessstandort.
Tiefgaragenstellplätze sowie Außenstellplätze für die Geschäftsleitung und die Mitarbeiter können nach Absprach angemietet werden.
Die Vermietung findet nach DIN 277 (BGF) statt (die Nebenkostenabrechnung erfolgt nach der Nettogrundfläche).
Lage des Objektes
Der mit über 600.000 m² größte innerstädtische Büro- und Gewerbepark des Landes Brandenburg ist Heimat für zahlreiche Firmen verschiedenster Branchen.
Mit über 210 Unternehmen und mehr als 6.000 Beschäftigten ist das Techno Terrain Teltow (TTT) der Wachstumsmotor für die positive wirtschaftliche Entwicklung der Gemeinde Teltow.
Hier profitieren Sie zudem von einem niedrigeren Gewerbesteuerhebesatz (320 v.H.)
Teltow ist eine Stadt in Brandenburg und gehört zur Metropolregion Berlin-Brandenburg.
Die Stadt Teltow zeichnet sich durch eine ausgezeichnete Verkehrsanbindung aus, sodass das Zentrum Berlins in nur 20 Minuten mit dem Auto oder der S-Bahn erreicht werden kann.
Die Büroflächen befinden sich in einer zentralen Lage des TTT und sind sowohl mit dem Auto als auch mit öffentlichen Verkehrsmitteln gut zu erreichen.
In der Umgebung finden sich zahlreiche Geschäfte, Restaurants und Cafés, die eine optimale Versorgung garantieren.
Mit über 210 Unternehmen und mehr als 6.000 Beschäftigten ist das Techno Terrain Teltow (TTT) der Wachstumsmotor für die positive wirtschaftliche Entwicklung der Gemeinde Teltow.
Hier profitieren Sie zudem von einem niedrigeren Gewerbesteuerhebesatz (320 v.H.)
Teltow ist eine Stadt in Brandenburg und gehört zur Metropolregion Berlin-Brandenburg.
Die Stadt Teltow zeichnet sich durch eine ausgezeichnete Verkehrsanbindung aus, sodass das Zentrum Berlins in nur 20 Minuten mit dem Auto oder der S-Bahn erreicht werden kann.
Die Büroflächen befinden sich in einer zentralen Lage des TTT und sind sowohl mit dem Auto als auch mit öffentlichen Verkehrsmitteln gut zu erreichen.
In der Umgebung finden sich zahlreiche Geschäfte, Restaurants und Cafés, die eine optimale Versorgung garantieren.
Sonstige Informationen
Sofern Sie auf eine besondere Lage, eine beeindruckende Aufteilung und ein sehr gepflegtes Umfeld Wert legen, ist dieses Bürogebäude das ideale Angebot für Sie.
Eine Besichtigung sagt mehr als jede Beschreibung, bei Interesse zögern Sie nicht und vereinbaren Sie einen unverbindlichen Termin.
Wir bieten nicht nur eine kostenlose Hotline, sondern auch einen Service am Wochenende an.
Bei Interesse geben Sie bitte immer Ihre vollständigen Kontaktdaten an.
Die Objektbeschreibung beruht ganz oder zum Teil auf Angaben des Eigentümers. Für die Richtigkeit oder Vollständigkeit übernehmen wir keine Gewähr.
Sie haben auf Anhieb nichts gefunden oder suchen etwas ganz bestimmtes?
Teilen Sie uns einfach mit, was Sie suchen und wonach wir für Sie die Augen offen halten dürfen. Profitieren Sie von den Vorteilen einer professionellen Maklersuche. Der Suchauftrag ist unverbindlich.
Auf unserer Homepage www.falcimmo.de unter der Rubrik Immobiliensuche halten wir für Sie zum einen den Onlinesuchauftrag bereit, haben aber auch viele andere nützliche Informationen für Kaufinteressenten und Eigentümer.
Sie wollen Ihre Immobilie ebenfalls professionell vermarkten, rufen Sie uns an, wir stehen Ihnen von Mo. bis So. von 6.00 - 22.00 h persönlich zur Seite, über 50.000 aktive Interessenten warten bereits auf Sie.
Außenansicht
Außenansicht
Außenansicht
Zufahrt Tiefgarage
Außenansicht
Außenansicht
Innenhof
Innenhof
Innenhof
Innenhof
Innenhof
Innenhof
Eingangsbereich
Atrium
Atrium
Büroflächen 2. OG
Büroflächen 2. OG
Büroflächen 2. OG
Büroflächen 2. OG
Büroflächen 2. OG
Büroflächen 2. OG
Sanitärbereich Damen
Sanitärbereich Herren
Büroflächen 3. OG
Büroflächen 3. OG
Büroflächen 3. OG
Blick in den Innenhof
Surverraum
Büroflächen 3. OG
Büroflächen 3. OG
Büroflächen 3. OG
Sanitärbereich mit Dusche
Kaffeeküche
Mitarbeiterküche
Mitarbeiterküche
Kaffeeküche
Büroflächen 3. OG
Büroflächen 3. OG
Büroflächen 3. OG
Büroflächen 3. OG
Büroflächen 3. OG
Büroflächen 3. OG
Büroflächen 3. OG
Büroflächen 3. OG
Büroflächen 3. OG
Büroflächen 3. OG
Sanitärbereich 3. OG
Sanitärbereich 3. OG
Sanitärbereich 3. OG
Außenansicht
Außenparkplätze
Makrolage
Mikrolage
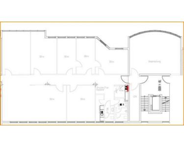
2. Obergeschoss
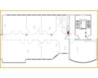
3. Obergeschoss
3. Obergeschoss
3. Obergeschoss
3. Obergeschoss
3. Obergeschoss
3. Obergeschoss
3. Obergeschoss