Exposé
Objektart:
Wohnung
» Kauf
Penthouse-Wohnung S7 mit Dachterrasse, Swimmingpool, Aufzug, Okrug Gornji
Das Wichtigste auf einen Blick:
| Objektnummer: | 8516876 |
Preise
| Kaufpreis | 560.000 € |
| Nebenkosten | keine Angabe |
Flächen
| Wohnfläche | 83 m² |
| Nutzfläche | 134 m² |
Objekt Adresse
21223 Okrug Gornji
Sonstige Angaben
| Baujahr | 2024 |
| Verfügbar ab | keine Angabe |
| Bad | 2 |
| Bad | 2 |
| Bad | Dusche |
| Boden | Fliesen |
| Balkone | 1 |
| Terrassen | 1 |
| Heizungsart | Fußbodenheizung |
| Energieträger/Befeuerung | Elektro |
Objektbeschreibung
Wir verkaufen eine Penthouse-Wohnung S7 mit Dachterrasse im dritten Stock eines neuen modernen Gebäudes, Okrug Gornji, Insel Čiovo.
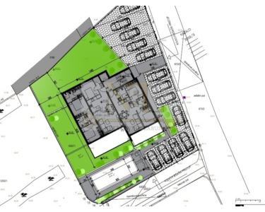
Das Gebäude befindet sich in zentraler Lage in Okrug Gornji mit hervorragender Anbindung und herrlichem Blick auf das Meer, alle Wohnungen verfügen über großzügige Südbalkone. Das Gebäude liegt 500 Meter vom Meer und dem Strand entfernt.
Das Gebäude verfügt über 8 Wohnungen und 13 Außenparkplätze und verfügt über einen Aufzug und einen großen Gemeinschaftspool.
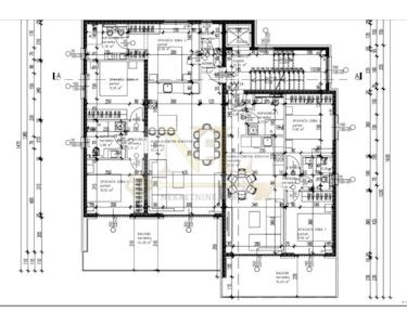
Die Penthouse-Wohnung S7 mit Dachterrasse befindet sich im dritten Stock des Gebäudes und besteht aus drei Schlafzimmern, zwei Badezimmern, einem Abstellraum, einem Wohnzimmer mit Küche und einer großen Terrasse sowie einer Dachterrasse mit Panoramablick auf die Umgebung Archipel.
Zur Wohnung gehören zwei Außenparkplätze.
Oberflächen:
Innenfläche der Wohnung: 83,4 m2
Terrasse: 24 m2
Dachterrasse: 109,6 m2
Gesamtfläche: 217 m2
Das Gebäude befindet sich in zentraler Lage in Okrug Gornji mit hervorragender Anbindung und herrlichem Blick auf das Meer, alle Wohnungen verfügen über großzügige Südbalkone. Das Gebäude liegt 500 Meter vom Meer und dem Strand entfernt.
Das Gebäude verfügt über 8 Wohnungen und 13 Außenparkplätze und verfügt über einen Aufzug und einen großen Gemeinschaftspool.
Die Penthouse-Wohnung S7 mit Dachterrasse befindet sich im dritten Stock des Gebäudes und besteht aus drei Schlafzimmern, zwei Badezimmern, einem Abstellraum, einem Wohnzimmer mit Küche und einer großen Terrasse sowie einer Dachterrasse mit Panoramablick auf die Umgebung Archipel.
Zur Wohnung gehören zwei Außenparkplätze.
Oberflächen:
Innenfläche der Wohnung: 83,4 m2
Terrasse: 24 m2
Dachterrasse: 109,6 m2
Gesamtfläche: 217 m2
Ausstattung
Herrliche Aussicht, große Dachterrasse, zwei Parkplätze, strategische Lage
Lage des Objektes
Apartment ist 500 Meter vom Meer und Strand entfernt.
Ausgezeichnete und ruhige Lage auf der Südseite der Insel Ciovo, Okrug Gornji, viele Sonnenstunden und in der Nähe des Meeres und der Strände.
Die UNESCO-Stadt Trogir ist 5 km entfernt, der Flughafen Split 10 km und die Stadt Split 30 km.
Die Insel Ciovo ist durch zwei Brücken mit dem Festland verbunden.
Ausgezeichnete und ruhige Lage auf der Südseite der Insel Ciovo, Okrug Gornji, viele Sonnenstunden und in der Nähe des Meeres und der Strände.
Die UNESCO-Stadt Trogir ist 5 km entfernt, der Flughafen Split 10 km und die Stadt Split 30 km.
Die Insel Ciovo ist durch zwei Brücken mit dem Festland verbunden.
Sonstige Informationen
Herrliche Aussicht, große Dachterrasse, zwei Parkplätze, strategische Lage