Exposé
Objektart:
Wohnung
» Kauf
Neue Wohnung im zweiten Stock, S5, Pool, Aufzug, Okrug Gornji
Das Wichtigste auf einen Blick:
| Objektnummer: | 8516248 |
Preise
| Kaufpreis | 280.000 € |
| Nebenkosten | keine Angabe |
Flächen
| Wohnfläche | 83 m² |
| Nutzfläche | 24 m² |
Objekt Adresse
21223 Okrug Gornji
Sonstige Angaben
| Baujahr | 2024 |
| Verfügbar ab | keine Angabe |
| Bad | 2 |
| Bad | 2 |
| Bad | Dusche |
| Boden | Fliesen |
| Balkone | 1 |
| Heizungsart | Fußbodenheizung |
| Energieträger/Befeuerung | Elektro |
Objektbeschreibung
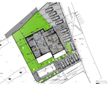
Wir verkaufen eine Dreizimmerwohnung S5 im zweiten Stock eines neuen modernen Gebäudes, Okrug Gornji, Insel Čiovo.
Das Gebäude befindet sich in zentraler Lage in Okrug Gornji mit hervorragender Anbindung und herrlichem Blick auf das Meer, alle Wohnungen verfügen über großzügige Südbalkone. Das Gebäude liegt 500 Meter vom Meer und dem Strand entfernt.
Das Gebäude verfügt über 8 Wohnungen und 13 Außenparkplätze und verfügt über einen Aufzug und einen großen Gemeinschaftspool.
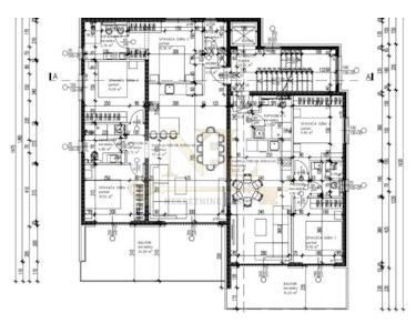
Das Apartment S5 befindet sich im zweiten Stock des Gebäudes und besteht aus drei Schlafzimmern, zwei Badezimmern, einem Abstellraum, einem Wohnzimmer mit Küche und einer großen Terrasse mit Blick auf das Meer.
Zur Wohnung gehören zwei Außenparkplätze.
Oberflächen:
Innenfläche der Wohnung: 83,4 m2
Terrasse: 24 m2
Gesamtgrundfläche: 107,4 m2
Das Gebäude befindet sich in zentraler Lage in Okrug Gornji mit hervorragender Anbindung und herrlichem Blick auf das Meer, alle Wohnungen verfügen über großzügige Südbalkone. Das Gebäude liegt 500 Meter vom Meer und dem Strand entfernt.
Das Gebäude verfügt über 8 Wohnungen und 13 Außenparkplätze und verfügt über einen Aufzug und einen großen Gemeinschaftspool.
Das Apartment S5 befindet sich im zweiten Stock des Gebäudes und besteht aus drei Schlafzimmern, zwei Badezimmern, einem Abstellraum, einem Wohnzimmer mit Küche und einer großen Terrasse mit Blick auf das Meer.
Zur Wohnung gehören zwei Außenparkplätze.
Oberflächen:
Innenfläche der Wohnung: 83,4 m2
Terrasse: 24 m2
Gesamtgrundfläche: 107,4 m2
Ausstattung
zwei Parkplätze, Südseite, strategische Lage in Okrug Gornji, alles ist in der Nähe...
Lage des Objektes
Apartment ist 500 Meter vom Meer und Strand entfernt.
Ausgezeichnete und ruhige Lage auf der Südseite der Insel Ciovo, Okrug Gornji, viele Sonnenstunden und in der Nähe des Meeres und der Strände.
Die UNESCO-Stadt Trogir ist 5 km entfernt, der Flughafen Split 10 km und die Stadt Split 30 km.
Die Insel Ciovo ist durch zwei Brücken mit dem Festland verbunden.
Ausgezeichnete und ruhige Lage auf der Südseite der Insel Ciovo, Okrug Gornji, viele Sonnenstunden und in der Nähe des Meeres und der Strände.
Die UNESCO-Stadt Trogir ist 5 km entfernt, der Flughafen Split 10 km und die Stadt Split 30 km.
Die Insel Ciovo ist durch zwei Brücken mit dem Festland verbunden.
Sonstige Informationen
zwei Parkplätze, Südseite, strategische Lage in Okrug Gornji, alles ist in der Nähe...