Exposé
Objektart:
Haus
» Einfamilienhaus
» Kauf
Standort: Haus »
Deutschland » Brandenburg » Barnim (Kreis) » Werneuchen
AKTION Familienidyll in Werneuchen
Hausansicht Straße
Das Wichtigste auf einen Blick:
| Objektnummer: | 8514084 |
Preise
| Kaufpreis | 591.360 € |
| Nebenkosten | keine Angabe |
Flächen
| Wohnfläche | 119 m² |
| Nutzfläche | 119 m² |
Objekt Adresse
16356 Werneuchen
Sonstige Angaben
| Zimmer | 4 |
| Verfügbar ab | keine Angabe |
| Bad | 1 |
| Anzahl der Etagen im Haus | 2 |
| Bad | 1 |
| Bad | Dusche, Wanne, Fenster |
| Energietyp | KfW-40 |
| Heizungsart | Zentralheizung |
| Energieträger/Befeuerung | Luft-Wärme-Pumpe |
Objektbeschreibung
Das behagliche Family-Haus mit Satteldach punktet mit einem gut durchdachten
Grundriss. Der offen gestaltete Wohn-/Ess- und Kochbereich ist lichtdurchflutet. Ein praktischer
Hauswirtschaftsraum ist direkt neben der Küche platziert. Komplettiert wird das Raumangebot im Erdgeschoss
mit einem Gäste-WC, das optional auch als Duschbad ausgeführt werden kann, einer Diele und einem
Haustechnikraum.
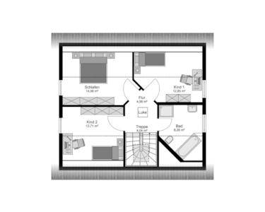
Im Dachgeschoss des Hauses sind zwei schöne Kinderzimmer, ein Elternschlafzimmer, ein Flur und ein
Familienbad untergebracht
Die Lage der Treppe und des Haustechnikraumes sind beim Winterzauberangebot fixiert.
Objektart: Einfamilienhaus, 1,5-geschossig
Dachform: Satteldach
Kniestock: 0,75 m
Grundriss. Der offen gestaltete Wohn-/Ess- und Kochbereich ist lichtdurchflutet. Ein praktischer
Hauswirtschaftsraum ist direkt neben der Küche platziert. Komplettiert wird das Raumangebot im Erdgeschoss
mit einem Gäste-WC, das optional auch als Duschbad ausgeführt werden kann, einer Diele und einem
Haustechnikraum.
Im Dachgeschoss des Hauses sind zwei schöne Kinderzimmer, ein Elternschlafzimmer, ein Flur und ein
Familienbad untergebracht
Die Lage der Treppe und des Haustechnikraumes sind beim Winterzauberangebot fixiert.
Objektart: Einfamilienhaus, 1,5-geschossig
Dachform: Satteldach
Kniestock: 0,75 m
Ausstattung
Ausstattung
STREIF-Häuser sind Energiesparhäuser. Die STREIF-Passiv-Außenwände und eine sparsame Heiztechnik mit
integrierter Wohnraumlüftung und Wärmerückgewinnung, garantieren einen geringen Energieverbrauch und ein
fantastisches Raumklima, das insbesondere Allergiker aufatmen lässt.
STREIF Leistungen sind MEHR WERT - schon im Grundpreis enthalten!
- 16-monatige Festpreisgarantie
- Energieeffizienzhaus KfW 40 EE im Standard
- Inkl. individuelle Grundrissgestaltung und Raumaufteilung
- Inkl. Fundamentplatte
- Inkl. STREIF-Luft-Luft-Wärmepumpe mit integrierter
Lüftungsanlage mit Wärmerückgewinnung
- Inkl. Haustür von KERA und Fenster von Porta/Kömmerling
- Inkl. Massivholz-Geschosstreppe aus eigener Produktion
- Inkl. Sanitärobjekte von Markenherstellern
- Inkl. Elektroinstallation
- Inkl. Baubetreuung u.v.m.
Die hohe Wertigkeit und Langlebigkeit eines STREIF-Energiespar-Hauses wird durch zahlreiche
Auszeichnungen, Qualitäts- und Gütesiegel unabhängiger Institute und Verbände dokumentiert.
Der Angebotspreis ist inklusive Grundstück und bezieht sich auf die Standard-Ausbaustufe Fast-Fertig-Plus. Ihre
Eigenleistungen: Spachtel-,Tapezier- und Malerarbeiten, Bodenbeläge, Innentüren.
Baunebenkosten fallen zuzüglich an.
Der Verkauf des Grundstücks erfolgt über einen unserer Netzwerkpartner.
Bilder können evtl. Anbauteile, Carports, Balkone, Gauben usw. zeigen, die nicht im Angebotspreis enthalten
sind. Änderungen und Irrtümer vorbehalten.
STREIF-Häuser sind Energiesparhäuser. Die STREIF-Passiv-Außenwände und eine sparsame Heiztechnik mit
integrierter Wohnraumlüftung und Wärmerückgewinnung, garantieren einen geringen Energieverbrauch und ein
fantastisches Raumklima, das insbesondere Allergiker aufatmen lässt.
STREIF Leistungen sind MEHR WERT - schon im Grundpreis enthalten!
- 16-monatige Festpreisgarantie
- Energieeffizienzhaus KfW 40 EE im Standard
- Inkl. individuelle Grundrissgestaltung und Raumaufteilung
- Inkl. Fundamentplatte
- Inkl. STREIF-Luft-Luft-Wärmepumpe mit integrierter
Lüftungsanlage mit Wärmerückgewinnung
- Inkl. Haustür von KERA und Fenster von Porta/Kömmerling
- Inkl. Massivholz-Geschosstreppe aus eigener Produktion
- Inkl. Sanitärobjekte von Markenherstellern
- Inkl. Elektroinstallation
- Inkl. Baubetreuung u.v.m.
Die hohe Wertigkeit und Langlebigkeit eines STREIF-Energiespar-Hauses wird durch zahlreiche
Auszeichnungen, Qualitäts- und Gütesiegel unabhängiger Institute und Verbände dokumentiert.
Der Angebotspreis ist inklusive Grundstück und bezieht sich auf die Standard-Ausbaustufe Fast-Fertig-Plus. Ihre
Eigenleistungen: Spachtel-,Tapezier- und Malerarbeiten, Bodenbeläge, Innentüren.
Baunebenkosten fallen zuzüglich an.
Der Verkauf des Grundstücks erfolgt über einen unserer Netzwerkpartner.
Bilder können evtl. Anbauteile, Carports, Balkone, Gauben usw. zeigen, die nicht im Angebotspreis enthalten
sind. Änderungen und Irrtümer vorbehalten.
Lage des Objektes
Unser STREIF - Grundstücksservice ist unseren Kunden vorenthalten. Gerne Prüfen wir mit Ihnen gemeinsam ob STREIF zu Ihnen passt. Hierzu stehen wir Ihnen in einem persönlichen Gespräch zur Seite.
Sonstige Informationen
STREIF Haus - der Pionier der deutschen Fertighausbranche
Die langjährige Firmentradition des Unternehmens reicht bis in das Jahr 1929 zurück. In den 50er und 60er Jahren wurde in Deutschland schnell und viel Wohnraum für Familien benötigt, seitdem konzentrierte sich das Unternehmen auf die Entwicklung und Produktion von Fertighaustypen, die im Werk in großen Stückzahlen hergestellt werden konnten. So kann das Unternehmen auf 90.000 gebaute Hausobjekte zurückblicken und sich zu Recht als Pionier der deutschen Fertighausbranche bezeichnen.
Die neuen Energiesparhäuser - So baut man heute.
Unser Anspruch ist es, in enger Partnerschaft mit unseren Kunden langlebige Häuser zu bauen, mit einer hohen architektonischen Qualität, individuell geplant und dabei energieeffizient und ressourcenschonend. Jedes STREIF-Haus ist einzigartig und wird speziell für jeden Kunden "maßgeschneidert" und gebaut. Passend zu den persönlichen Wünschen, dem vorgegebenen Budget und dem vorhandenen Grundstück planen und bauen wir jedes Haus mit viel Liebe zum Detail.
Gartenansicht
Erdgeschoss
Obergeschoss
Nachhaltig vom ersten Gedanken an.
Fair
Fairer
am Fairsten