Exposé
Objektart:
Büro / Praxen
» Bueroflaeche
» Miete
Standort: Büro / Praxen »
Deutschland » Nordrhein-Westfalen » Düsseldorf, Stadt (Kreis) » Düsseldorf
Büro- und Produktionsfläche in Düsseldorf-Lierenfeld
Das Wichtigste auf einen Blick:
| Objektnummer: | 8507763 |
Preise
| Nebenkosten | keine Angabe |
| Mietpreis pro m² | 13,5 € |
Flächen
| Gesamtfläche | 735,11 m² |
| Bürofläche | 735,11 m² |
Objekt Adresse
40231 Düsseldorf
- Nordrhein-Westfalen
Sonstige Angaben
| Verfügbar ab | kurzfristig |
| Inserat befindet sich im Stockwerk | 2 |
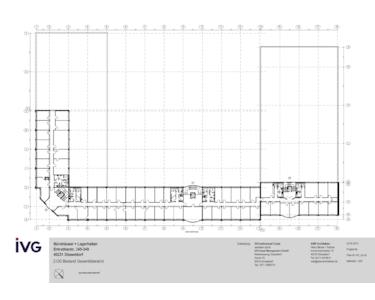
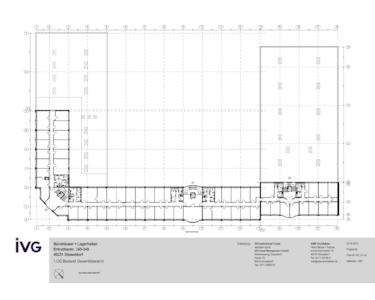
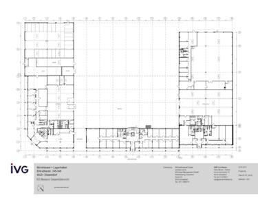
Objektbeschreibung
Die Liegenschaft befindet sich in einem guten und repräsentativen Zustand. Ausreichende Parkplätze sind vorhanden. Die Raumaufteilung erfolgt nach Mieterwunsch und die Mietfläche wird renoviert übergeben.
Lage des Objektes
Motorisierter Individualverkehr:
Über die Erkrather Straße sind die A59, A46 und A3 in nur wenigen Fahrminuten zu erreichen. Somit sind der Düsseldorfer Norden sowie die Städte Köln, Wuppertal und das Ruhrgebiet erreichbar.
ÖPNV:
Die Haltepunkte der Linien U75, 734 und 736 befinden sich unmittelbar vor dem Objekt. Der Düsseldorfer Hauptbahnhof ist innerhalb weniger Minuten zu erreichen.
Über die Erkrather Straße sind die A59, A46 und A3 in nur wenigen Fahrminuten zu erreichen. Somit sind der Düsseldorfer Norden sowie die Städte Köln, Wuppertal und das Ruhrgebiet erreichbar.
ÖPNV:
Die Haltepunkte der Linien U75, 734 und 736 befinden sich unmittelbar vor dem Objekt. Der Düsseldorfer Hauptbahnhof ist innerhalb weniger Minuten zu erreichen.
EG
1.OG
2.OG