Exposé
Objektart:
Büro / Praxen
» Bueroflaeche
» Miete
Standort: Büro / Praxen »
Deutschland » Nordrhein-Westfalen » Düsseldorf, Stadt (Kreis) » Düsseldorf
Provisionsfrei I Gut angebundene Büroflächen am Aaper Wald I Ausbau nach Mieterwunsch
Das Wichtigste auf einen Blick:
| Objektnummer: | 8507712 |
Preise
| Nebenkosten | keine Angabe |
| Mietpreis pro m² | 12,5 € |
Flächen
| Gesamtfläche | 6.286 m² |
| Bürofläche | 996 m² |
Objekt Adresse
40470 Düsseldorf
- Nordrhein-Westfalen
Sonstige Angaben
| Baujahr | 1975 |
| Verfügbar ab | sofort |
| Anzahl der Etagen im Haus | 13 |
| Boden | Teppich, Laminat |
| Fahrstuhl | Ja |
| Barrierefrei | |
| Keller | Ja |
| Gültig bis | 2030-08-07 |
| Heizungsart | Zentralheizung |
| Wesentlicher Energieträger | Gas |
| Energieträger/Befeuerung | Gas |
Objektbeschreibung
Der Gebäudekomplex besteht aus drei Bauteilen, welche über ein repräsentatives Foyer miteinander verbunden sind. Alle Bauteile wurden im Jahre 1998 vollständig saniert und auf einen hochwertigen Gebäudestandard verbaut. Die Büroimmobilie besticht durch ein Restaurant im Eingangsbereich, E-Ladesäulen, Leihfahrräder und Duschen mit Schließfächern. Zusätzlich steht eine Konferenzetage mit Räumen zur tageweisen sowie halbtageweisen Anmietung zur Verfügung.
Ausstattung
- Raumaufteilung nach Mieterwunsch
- vorgerichtete Teeküchen je Mieteinheit
- getrennte Damen- und Herren WC Einheiten
- Bodenbelag nach Mieterwunsch
- Kühldecken im Haus 3
- E-Lademöglichkeit
- vorgerichtete Teeküchen je Mieteinheit
- getrennte Damen- und Herren WC Einheiten
- Bodenbelag nach Mieterwunsch
- Kühldecken im Haus 3
- E-Lademöglichkeit
Lage des Objektes
Die Liegenschaft befindet sich im Düsseldorfer Norden im Büromarkt Düsseldorf Nordost, direkt am Aaper Wald. Durch die verkehrsgünstige Lage des Objektes erreichen Sie in 7 Minuten die Autobahn A52 Richtung Düsseldorfer Flughafen. Auch die öffentliche Anbindung ist mit der vor der Tür liegenden Haltestelle "Mörsenbroicher Weg" ideal erschlossen. So ist die Düsseldorfer Innenstadt in nur 13 Minuten mit der Bahn U72 erreichbar.
Sonstige Informationen
- persisches Restaurant im Erdgeschoss
- nachhaltige E-Ladesäulen
- Leihfahrräder für idyllische Touren im Grafenberger Wald
- Duschen mit Schließfächer
- Konferenzetage zur tageweisen Anmietung
- besetzter Empfang - EUR 0,44 Servicevertrag (Zahlung via sep. Vertrag, nicht über Nebenkosten-VZ)
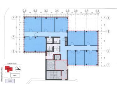
Grundriss 2.OG Haus 3
Grundriss 3.OG Haus 3
Grundriss 4.OG Haus 3
Beispielaufteilung
Grundriss 6.OG
Grundriss 7.Obergschoss
Grundriss 7.Obergschoss