Exposé
Objektart:
Haus
» Doppelhaushaelfte
» Kauf
DIE INSEL KRK, TRIBULJE – Projekt einer Doppelhaushälfte, jedes mit eigenem Pool
Angeboten von:
DUX Nekretnine d.o.o.
Tizianova
51000 Rijeka
Telefon:+385 51518-174
www.dux-nekretnine.hr
Ansprechpartner/in
Darko Miculinić| Telefon: | +385 91 480 8808 |
| Mobil | +385 91 480 8808 |
Das Wichtigste auf einen Blick:
| Objektnummer: | 8462875 |
Preise
| Kaufpreis | 1 € |
| Nebenkosten | keine Angabe |
Flächen
| Gesamtfläche | 460 m² |
Objekt Adresse
51514 Dobrinj
- Kvarner Region [Primorsko-Goranska]
Sonstige Angaben
| Baujahr | 2024 |
| Zimmer | 11 |
| Verfügbar ab | keine Angabe |
| Bad | 7 |
| Anzahl der Etagen im Haus | 1 |
| Bad | 7 |
Objektbeschreibung
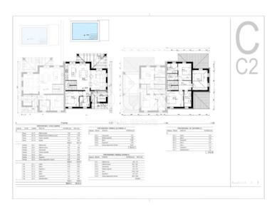
INSEL KRK, TRIBULJE - Projekt Doppelhaushälfte „C1“ und „C2“, jeweils mit eigenem Pool.
Zum Verkauf steht das Projekt einer Doppelhaushälfte „C“ mit jeweils eigenem Pool, Garten und Stellplatz für je zwei Autos, die in ein Erdgeschoss und ein Obergeschoss aufgeteilt ist. Im Erdgeschoss des Hauses „C1“ finden wir einen offenen Wohnbereich mit Küche und Esszimmer mit Zugang zu einer überdachten Terrasse, Garten und Swimmingpool, sowie ein Schlafzimmer und ein Badezimmer. Im ersten Stock des Hauses haben wir zwei weitere Schlafzimmer, jeweils mit eigenem Bad und Kleiderschrank, von denen beide Räume Zugang zu einer überdachten Terrasse haben. Die Gesamtwohnfläche jedes Hauses beträgt 230m2. Zu jedem Haus gehören zwei Parkplätze im Hof. Das Projekt wird mit Baugenehmigung verkauft, Preis auf Anfrage, die Möglichkeit einer Vereinbarung mit dem Verkäufer über den Bau und Verkauf in der schlüsselfertigen Phase. Sehr geehrte Kunden, die Vermittlungsprovision wird gemäß den Allgemeinen Geschäftsbedingungen berechnet. www.dux-nekretnine.hr/opci-uvjeti-poslovanja
ID CODE: 26492
Zum Verkauf steht das Projekt einer Doppelhaushälfte „C“ mit jeweils eigenem Pool, Garten und Stellplatz für je zwei Autos, die in ein Erdgeschoss und ein Obergeschoss aufgeteilt ist. Im Erdgeschoss des Hauses „C1“ finden wir einen offenen Wohnbereich mit Küche und Esszimmer mit Zugang zu einer überdachten Terrasse, Garten und Swimmingpool, sowie ein Schlafzimmer und ein Badezimmer. Im ersten Stock des Hauses haben wir zwei weitere Schlafzimmer, jeweils mit eigenem Bad und Kleiderschrank, von denen beide Räume Zugang zu einer überdachten Terrasse haben. Die Gesamtwohnfläche jedes Hauses beträgt 230m2. Zu jedem Haus gehören zwei Parkplätze im Hof. Das Projekt wird mit Baugenehmigung verkauft, Preis auf Anfrage, die Möglichkeit einer Vereinbarung mit dem Verkäufer über den Bau und Verkauf in der schlüsselfertigen Phase. Sehr geehrte Kunden, die Vermittlungsprovision wird gemäß den Allgemeinen Geschäftsbedingungen berechnet. www.dux-nekretnine.hr/opci-uvjeti-poslovanja
ID CODE: 26492