Exposé
Objektart:
Haus
» Einfamilienhaus
» Kauf
Standort: Haus »
Deutschland » Sachsen » Zwickau, Stadt (Kreis) » Zwickau
Baugrundstück mit Ausblick sucht Baufamilie!
Das Wichtigste auf einen Blick:
| Objektnummer: | 8451818 |
Preise
| Kaufpreis | 339.000 € |
| Nebenkosten | keine Angabe |
Flächen
| Wohnfläche | 119 m² |
| Grundstücksfläche | 2.048 m² |
Objekt Adresse
Cainsdorfer Bergstraße 32
08060 Zwickau
Sonstige Angaben
| Zimmer | 4 |
| Verfügbar ab | keine Angabe |
| Bad | 3 |
| Anzahl der Etagen im Haus | 2 |
| Bad | 3 |
| Energietyp | KfW-40 |
| Energieträger/Befeuerung | Elektro |
Objektbeschreibung
Frühlingszauber Aktionshaus FAMILY in der Größe L
Objektbeschreibung
Das behagliche Family-Haus mit Satteldach aus der Frühlingszauberaktion punktet mit einem gut durchdachten Grundriss. Der offen gestaltete Wohn-/Ess- und Kochbereich ist lichtdurchflutet. Ein praktischer Hauswirtschaftsraum ist direkt neben der Küche platziert. Komplettiert wird das Raumangebot im Erdgeschoss mit einem Gäste-WC, das optional auch als Duschbad ausgeführt werden kann, einer Diele und einem Haustechnikraum.
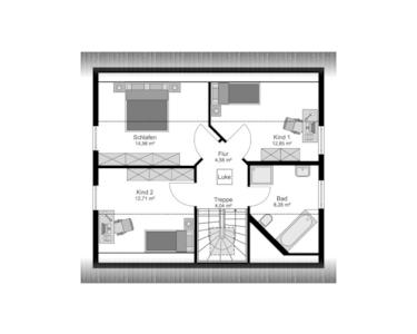
Im Dachgeschoss des Hauses sind zwei schöne Kinderzimmer, ein Elternschlafzimmer, ein Flur und ein Familienbad untergebracht. Die Netto-Raumfläche beträgt 119 m².
Die Lage der Treppe und des Haustechnikraumes sind beim Frühlingszauberangebot fixiert.
Objektart: Einfamilienhaus, 1,5-geschossig
Dachform: Satteldach
Kniestock: 0,75 m
Netto-Raumfläche: 119,09 m²
Objektbeschreibung
Das behagliche Family-Haus mit Satteldach aus der Frühlingszauberaktion punktet mit einem gut durchdachten Grundriss. Der offen gestaltete Wohn-/Ess- und Kochbereich ist lichtdurchflutet. Ein praktischer Hauswirtschaftsraum ist direkt neben der Küche platziert. Komplettiert wird das Raumangebot im Erdgeschoss mit einem Gäste-WC, das optional auch als Duschbad ausgeführt werden kann, einer Diele und einem Haustechnikraum.
Im Dachgeschoss des Hauses sind zwei schöne Kinderzimmer, ein Elternschlafzimmer, ein Flur und ein Familienbad untergebracht. Die Netto-Raumfläche beträgt 119 m².
Die Lage der Treppe und des Haustechnikraumes sind beim Frühlingszauberangebot fixiert.
Objektart: Einfamilienhaus, 1,5-geschossig
Dachform: Satteldach
Kniestock: 0,75 m
Netto-Raumfläche: 119,09 m²
Ausstattung
Ausstattung
STREIF-Häuser sind Energiesparhäuser. Die STREIF-Passiv-Außenwände und eine sparsame Heiztechnik mit integrierter Wohnraumlüftung und Wärmerückgewinnung, garantieren einen geringen Energieverbrauch und ein fantastisches Raumklima, das insbesondere Allergiker aufatmen lässt.
In unserer Premium-Linie sind folgende STREIF-Leistungen im Aktionspreis enthalten - bei der Ausbaustufe fast fertig plus.
- 16-monatige Festpreisgarantie
- Inklusive gedämmter Fundamentplatte
- Inkl. STREIF-Luft-Luft-Wärmepumpen-Technologie mit integrierter Lüftungsanlage mit Wärmerückgewinnung
- Inkl. Haustür von KERA und Fenster von Porta/Kömmerling. Fenster farbig, zum Beispiel innen in Weiß und
außen in Anthrazit, mit elektrischen IO-Funkrollläden
- Inkl. Massivholz-Geschosstreppe aus eigener Produktion
- Inkl. Sanitärobjekte von Markenherstellern
- Inkl. Elektroinstallation
- Inkl. individuelle Grundrissgestaltung und Raumaufteilung (Die Lage der Treppe und des Haustechnikraumes sind beim Frühlingszauberangebot nicht veränderbar.)
-Inkl. Vorbereitung zur Installation einer Photovoltaik-Anlage
Die hohe Wertigkeit und Langlebigkeit eines STREIF-Energiespar-Hauses werden durch zahlreiche Auszeichnungen, Qualitäts- und Gütesiegel unabhängiger Institute und Verbände dokumentiert.
Der Angebotspreis ist inklusive Grundstück und bezieht sich auf die Standard-Ausbaustufe Fast-Fertig-Plus. Ihre Eigenleistungen: Spachtel-, Tapezier- und Malerarbeiten, Bodenbeläge, Innentüren. Baunebenkosten fallen zuzüglich an.
Der Verkauf des Grundstücks erfolgt über einen unserer Netzwerkpartner.
Bilder können evtl. Anbauteile, Carports, Balkone, Gauben usw. zeigen, die nicht im Angebotspreis enthalten sind.
Änderungen und Irrtümer vorbehalten.
STREIF-Häuser sind Energiesparhäuser. Die STREIF-Passiv-Außenwände und eine sparsame Heiztechnik mit integrierter Wohnraumlüftung und Wärmerückgewinnung, garantieren einen geringen Energieverbrauch und ein fantastisches Raumklima, das insbesondere Allergiker aufatmen lässt.
In unserer Premium-Linie sind folgende STREIF-Leistungen im Aktionspreis enthalten - bei der Ausbaustufe fast fertig plus.
- 16-monatige Festpreisgarantie
- Inklusive gedämmter Fundamentplatte
- Inkl. STREIF-Luft-Luft-Wärmepumpen-Technologie mit integrierter Lüftungsanlage mit Wärmerückgewinnung
- Inkl. Haustür von KERA und Fenster von Porta/Kömmerling. Fenster farbig, zum Beispiel innen in Weiß und
außen in Anthrazit, mit elektrischen IO-Funkrollläden
- Inkl. Massivholz-Geschosstreppe aus eigener Produktion
- Inkl. Sanitärobjekte von Markenherstellern
- Inkl. Elektroinstallation
- Inkl. individuelle Grundrissgestaltung und Raumaufteilung (Die Lage der Treppe und des Haustechnikraumes sind beim Frühlingszauberangebot nicht veränderbar.)
-Inkl. Vorbereitung zur Installation einer Photovoltaik-Anlage
Die hohe Wertigkeit und Langlebigkeit eines STREIF-Energiespar-Hauses werden durch zahlreiche Auszeichnungen, Qualitäts- und Gütesiegel unabhängiger Institute und Verbände dokumentiert.
Der Angebotspreis ist inklusive Grundstück und bezieht sich auf die Standard-Ausbaustufe Fast-Fertig-Plus. Ihre Eigenleistungen: Spachtel-, Tapezier- und Malerarbeiten, Bodenbeläge, Innentüren. Baunebenkosten fallen zuzüglich an.
Der Verkauf des Grundstücks erfolgt über einen unserer Netzwerkpartner.
Bilder können evtl. Anbauteile, Carports, Balkone, Gauben usw. zeigen, die nicht im Angebotspreis enthalten sind.
Änderungen und Irrtümer vorbehalten.
Lage des Objektes
Marienthal ist ein Stadtteil der Stadt Zwickau, die seit 2008 Kreisstadt des Landkreises Zwickau im Freistaat Sachsen ist. Der Ort liegt westlich des Stadtzentrums im Stadtbezirk Zwickau-West.
Neben verschiedensten Einkaufsmöglichkeiten findet sich hier das Heinrich-Braun Krankenhaus ganz in der Nähe
Innerhalb weniger Autofahrminuten erreicht man Land- und Bundesstraßen, die Autobahn A72 und die benachbarten Stadtteile sowie das Zentrum von Zwickau.
Auch die gute Anbindung an den öffentlichen Nahverkehr ist zu erwähnen.
Die wunderbare Lage mit ihrer Nähe zur Innenstadt, als auch zu den ruhigen Orten des Stadtparkes, macht diesen Teil der Stadt zu einer der besten Wohnadressen von Zwickau.
Neben verschiedensten Einkaufsmöglichkeiten findet sich hier das Heinrich-Braun Krankenhaus ganz in der Nähe
Innerhalb weniger Autofahrminuten erreicht man Land- und Bundesstraßen, die Autobahn A72 und die benachbarten Stadtteile sowie das Zentrum von Zwickau.
Auch die gute Anbindung an den öffentlichen Nahverkehr ist zu erwähnen.
Die wunderbare Lage mit ihrer Nähe zur Innenstadt, als auch zu den ruhigen Orten des Stadtparkes, macht diesen Teil der Stadt zu einer der besten Wohnadressen von Zwickau.