Exposé
Objektart:
Büro / Praxen
» Bueroflaeche
» Miete
Standort: Büro / Praxen »
Deutschland » Bayern » München, Landeshauptstadt (Kreis) » München
TRAUMLOFT - PREISWERT - KURZE VERTRAGSBINDUNG - provisionsfrei
a1
Angeboten von:
Harald Dördrechter Immobilien Consulting
Schluchtweg 23
82340 Feldafing
Deutschland
Telefon:08157-924772
Fax:08157-924771
www.hdic.de
Ansprechpartner/in
Harald Dördrechter ImmobilienConsulting
Herr Harald Dördrechter
| Telefon: | 08157 - 92 47 72 |
| Fax: | 08157 - 92 47 71 |
Das Wichtigste auf einen Blick:
| Objektnummer: | 8406572 |
Preise
| Miete für das Objekt | Auf Anfrage |
| Nebenkosten | 4,5 € |
| Mietpreis pro m² | 15 € |
Flächen
| Gesamtfläche | 10.000 m² |
| Bürofläche | 512 m² |
Objekt Adresse
80339 München
Sonstige Angaben
| Baujahr | 1999 |
| Verfügbar ab | kurzfristig |
| Inserat befindet sich im Stockwerk | 3 |
| Heizungsart | Zentralheizung |
| Wesentlicher Energieträger | Erdgas Leicht |
Objektbeschreibung
Das renommierte Ensemble besteht aus vier Gebäudeteilen, errichtet zwischen 1908 und 1999, und bietet rund 17.000 m² loftartige Büroflächen. Der historische Charme des ehemaligen Fabrikgeländes blieb auch nach dem Wiederaufbau weitgehend erhalten. 1998 wurde das Areal um zwei Gebäude erweitert. Heute beherbergt es Architekturbüros, Werbe- und IT-Agenturen sowie die Kraftanlagen München. Die Büros sind loftig und funktional gestaltet. Tiefgaragenstellplätze sind für € 80,00 anmietbar. Die Nutzung ist befristet bis Ende 2026.
Ausstattung
Umfangreiches Gastronomieangebot in direkter Umgebung
Szeneviertel
IT-Verkabelung vorhanden
z,T. Parkett- bzw. Vinylboden in der Fläche
Teeküche
Getrennte WCs für Damen und Herren
Außenliegender Sonnenschutz an allen Fenstern
Fensterfronten zum ruhigen Innenhof
Tiefgaragenstellplätze à € 80,00 anmietbar
Szeneviertel
IT-Verkabelung vorhanden
z,T. Parkett- bzw. Vinylboden in der Fläche
Teeküche
Getrennte WCs für Damen und Herren
Außenliegender Sonnenschutz an allen Fenstern
Fensterfronten zum ruhigen Innenhof
Tiefgaragenstellplätze à € 80,00 anmietbar
Lage des Objektes
Das Objekt befindet sich in unmittelbarer Nähe zum Heimeranplatz mit perfekter Verkehrsanbindung über den Mittleren Ring. Die hervorragende Infrastruktur umfasst zahlreiche Geschäfte des täglichen Bedarfs, Restaurants, Cafés, Hotels, Banken und Apotheken in direkter Umgebung. MVV: S- und U-Bahn "Heimeranplatz" sind in 1 Gehminute erreichbar.
Sonstige Informationen
Die Nutzung ist befristet bis Ende 2026.
Falls Sie in unseren Exposés noch nicht Ihre ideale Bürolösung gefunden haben, zögern Sie nicht, sich mit uns in Verbindung zu setzen. Sie erreichen uns per E-Mail unter info@hdic.de oder telefonisch unter 0171 3802649. Teilen Sie uns Ihr genaues Suchprofil mit, und wir setzen unsere Expertise ein, um aus über 1000 Objekten in München und Umland das perfekte Büro für Sie zu finden. Unser Service ist professionell, schnell, zielführend und wird mit höchster Diskretion durchgeführt. Zusätzlich laden wir Sie ein, unsere Webseite hdic.de zu besuchen, wo Sie weitere attraktive Objekte finden können.
Ansicht1
Ausbaubeispiel
Ausbaubeispiel
Ausbaubeispiel
Ausbaubeispiel
Ausbaubeispiel
Fassade 1
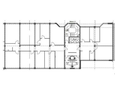
GR 3.OG 512 m²