Exposé
Objektart:
Büro / Praxen
» Bueroflaeche
» Miete
Standort: Büro / Praxen »
Deutschland » Nordrhein-Westfalen » Düsseldorf, Stadt (Kreis) » Düsseldorf
Schöne Büroflächen in Düsseldorf zu mieten
Das Wichtigste auf einen Blick:
| Objektnummer: | 8402917 |
Preise
| Nebenkosten | keine Angabe |
| Mietpreis pro m² | 19 € |
Flächen
| Gesamtfläche | 1.251 m² |
| Bürofläche | 1.251 m² |
Objekt Adresse
40476 Düsseldorf
- Nordrhein-Westfalen
Sonstige Angaben
| Verfügbar ab | Q1/2025 |
| Inserat befindet sich im Stockwerk | 3 |
Objektbeschreibung
Die Immobilie an beliebten Düsseldorfer Kennedydamm überrascht mit ruhigen Büroräumen und Blick ins Grüne. Besonderes Highlight: flexible Grundrisse bieten die Möglichkeit, individuelle Bürokonzepte variabel umzusetzen. Das digitalisierte Gebäude ist eine moderne Büroimmobilie, die zeitgemäßen Anforderungen entspricht. Dazu gehören auch Faktoren, die sich positiv auf die Wohlfühlqualität auszahlen: warme Farbtöne, hochwertige Materialien und Angebote wie zum Beispiel die Nähe zum Rheinpark für eine ausgewogene Work-Life-Balance.
Ausstattung
- Personenaufzug
- Lastenaufzug
- Natursteinfassade
- Top-Cooling System
- Sonnenschutz elektrisch, außenliegend
- Einbaurasterleuchten Beleuchtung
- Thermopanefenster
- Lastenaufzug
- Natursteinfassade
- Top-Cooling System
- Sonnenschutz elektrisch, außenliegend
- Einbaurasterleuchten Beleuchtung
- Thermopanefenster
Lage des Objektes
Düsseldorf-Golzheim; Büro- und Verwaltungszentrum Kennedydamm, hervorragende Verkehrslage mit Direktanbindung zum internationalen Rhein-Ruhr-Flughafen, zur Innenstadt sowie zur Messe und zum Kongreßzentrum.
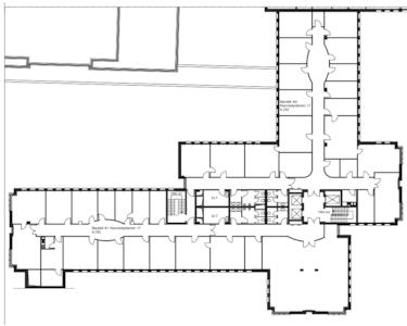
Grundriss EG
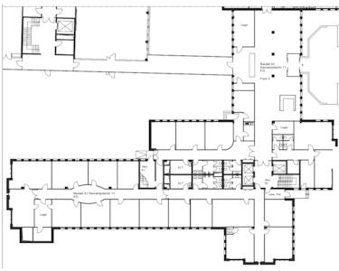
Grundriss 1.OG
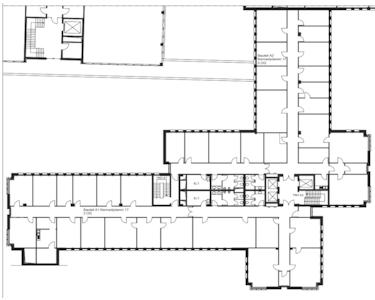
Grundriss 2.OG
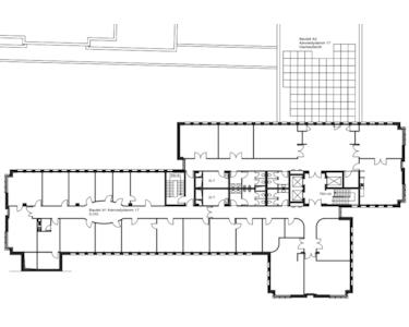
Grundriss 3.OG
Grundriss 4.OG
Grundriss 5.OG