Exposé
Objektart:
Büro / Praxen
» Bueroflaeche
» Miete
Standort: Büro / Praxen »
Deutschland » Bayern » München, Landeshauptstadt (Kreis) » München
TRAUMBÜRO IN DER PARKSTADT SCHWABING - provisionsfrei
a1
Angeboten von:
Harald Dördrechter Immobilien Consulting
Schluchtweg 23
82340 Feldafing
Deutschland
Telefon:08157-924772
Fax:08157-924771
www.hdic.de
Ansprechpartner/in
Harald Dördrechter ImmobilienConsulting
Herr Harald Dördrechter
| Telefon: | 08157 - 92 47 72 |
| Fax: | 08157 - 92 47 71 |
Das Wichtigste auf einen Blick:
| Objektnummer: | 8368558 |
Preise
| Miete für das Objekt | Auf Anfrage |
| Nebenkosten | 3,9 € |
| Mietpreis pro m² | 20,5 € |
Flächen
| Gesamtfläche | 1.200 m² |
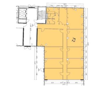
| Bürofläche | 414,4 m² |
Objekt Adresse
80807 München
Sonstige Angaben
| Baujahr | 2002 |
| Verfügbar ab | kurzfristig |
| Inserat befindet sich im Stockwerk | 0 |
| Energieausweistyp | Verbrauch |
| Ausstellungsdatum | 05. 11. 2014 |
| Gültig bis | 05.11.2024 |
| Heizungsart | Zentralheizung |
| Wesentlicher Energieträger | Fernwärme |
| Energieträger/Befeuerung | Fernwärme |
Objektbeschreibung
Top-repräsentativer Neubau mit Ganzglasfassade und exklusiven Eingangsbereichen. Alle Entrees verfügen über ein Galeriegeschoss und sind mit Naturstein und zwei Aufzugsbereichen ausgestattet. TG-Stellplätze und Archivflächen sind im Untergeschoss vorhanden. Die Ausstattung der Büroflächen ist absolut hochwertig und modern. Der flexible Raum des Gebäudes eröffnet Ihnen mit zweigeschossigen Foyers und lichtdurchfluteten, teilbaren Räumen ungeahnte Möglichkeiten. Offenheit und Transparenz sind hier zu Glas, Stein und Holz geworden. Den Mitarbeitern stehen zur Erholung gartenarchitektonisch gestaltete Außenanlagen und bepflanzte Innenhöfe mit Wasserflächen sowie begrünte Dächer mit begehbaren Dachterrassen zur Verfügung. TG-Plätze à € 115,00/St./mon, Lagerflächen à € 10,00/m²/mon. anmietbar.
Ausstattung
Die Ausstattung der Büros wird höchsten Ansprüchen gerecht und umfasst u.a. eine mieterspezifische Aufteilung, Kühldecken, bodentiefe Fenster, Hohlraumboden, außen liegenden Sonnenschutz und eingerichtete Teeküchen. Bei Bedarf lassen sich großflächige zusammenhängende Einheiten darstellen. Raumtiefe 5,50 m, Achsmass 1,38 m .
Lage des Objektes
Diverse weltweit bekannte Unternehmen haben sich wegen seiner guten Anbindung an den Flughafen und die Innenstadt für den Standort entschieden. Eine Kantine und mehrere Restaurants und Hotels sind im Umfeld vorhanden. MVV: Trambahn-Haltestelle wenige Schritte zu Fuß, U-Bahn-Haltestelle "Alte Heide" (ca. 900 m oder Busverbindung). Mit der idealen Lage schafft die Parkstadt Schwabing einen einzigartigen Spagat: Top-Anbindung zu Autobahn, Flughafen und in die Münchner City. Dabei stoßen Sie vom Mittleren Ring kommend auf das prominente Carrea. Man arbeitet in einem stilvollen Ambiente und wenige Straßen weiter pulsiert das Münchner Stadtleben. Shopping und Restaurants rund um die Leopoldstraße und den nahe gelegenen Englischen Garten wissen auch bekannte Unternehmen, wie die Commerzbank AG, Deutsche Bank AG, Estée Lauder, Landeszentralbank Bayern, MAN, Marriott-Hotel, Münchner Rück und Siemens zu schätzen, um nur einige Nachbarn rund um das Objekt zu nennen.
Sonstige Informationen
Noch nicht die Ideallösung? Bitte kontaktieren Sie uns unter info@hdic.de oder telefonisch unter 0171 - 380 26 49 und schildern Sie uns Ihr Suchprofil. Aus über 800 Objekten in München und Umland finden wir Ihr Wunschbüro - professionell, schnell, zielführend und diskret.
lobby
hof
Büro2
bsp. konfi
Büro1
1
Ansicht (4)
Ansicht (5)
Ansicht (7)
Ansicht (6)
Ansicht (1)
Ansicht (1)
Ansicht (2)
Ansicht (3)
GR EG 414,4 m²