Exposé
Objektart:
Büro / Praxen
» Bueroflaeche
» Miete
Standort: Büro / Praxen »
Deutschland » Bayern » München, Landeshauptstadt (Kreis) » München
CENTRAL TOWER - TRAUMBÜROS MIT BESTEN AUSSICHTEN - provisionsfrei
Aussen 1
Angeboten von:
Harald Dördrechter Immobilien Consulting
Schluchtweg 23
82340 Feldafing
Deutschland
Telefon:08157-924772
Fax:08157-924771
www.hdic.de
Ansprechpartner/in
Harald Dördrechter ImmobilienConsulting
Herr Harald Dördrechter
| Telefon: | 08157 - 92 47 72 |
| Fax: | 08157 - 92 47 71 |
Das Wichtigste auf einen Blick:
| Objektnummer: | 8365142 |
Preise
| Miete für das Objekt | Auf Anfrage |
| Nebenkosten | keine Angabe |
| Kaufpreis pro m² | 22,5 € |
Flächen
| Gesamtfläche | 4.250 m² |
| Bürofläche | 945,58 m² |
Objekt Adresse
80339 München
Sonstige Angaben
| Baujahr | 2003 |
| Verfügbar ab | 07/2024 |
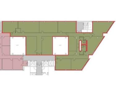
| Inserat befindet sich im Stockwerk | 3 |
| Energieausweistyp | Bedarfsausweis |
| Ausstellungsdatum | 05. 03. 2020 |
| Gültig bis | 04.03.2030 |
| Endenergiebedarf | 126.0 kWh/(m²*a) |
| Heizungsart | Fernwärme |
| Wesentlicher Energieträger | Fernwärme |
| Energieträger/Befeuerung | Fernwärme |
Objektbeschreibung
Gemeinsam mit dem gegenüber gelegenen Mercedes-Benz-Hochhaus prägt der Central - Tower heute das Stadtbild der westlichen City. Nicht nur wegen seiner bemerkenswerten Architektur ist der Central - Tower ein attraktiver Anziehungspunkt. Als Stadt in der Stadt bietet er eine Passage mit Ladenflächen, einem gemütlichen Café- und Restaurantbereich, sowie hochwertige Büroflächen in der Plaza (6 Etagen) und im Tower (22 Etagen). Die großzügigen Glasflächen sowie die hochwertigen Metall- und Natursteinflächen sorgen für ein hochwertiges Ambiente. Dazu einladende Foyers, weitläufige Lobbys. die großzügigen Büros - im Central - Tower genießt man Arbeit und Freizeit. Im Erdgeschoss des Plaza-Gebäudes ist ein Edeka-Supermarkt inkl. Bäcker, der die Nahversorgung der Mieter sicherstellt. Im Umfeld gibt es zahlreiche weitere Einkaufs- und Essensmöglichkeiten. Der Central Tower hat die LEED Zertifizierung in Gold erhalten. Stellplätze anmietbar TG à € 145,00, Parkdeck à € 125,00), Lager-/Archivflächen à € 8,50/m² anmietbar.
Ausstattung
Die Grundrisse sind flexibel zu gestalten und bieten sich sowohl für Open-Space, als auch Einzelbürolösungen an. Bodentiefe Fenster im Tower, regelbare Kühldecken, BAP-gerechte Langfeldleuchten und edle Materialien bieten ein angenehmes Arbeitsklima verbunden mit einem beeindruckenden Blick über München und die Alpen ab der 7. Etage. Aluminium-Glas-Doppelfassade - Klimatisierung - Sonnenschutz - 7 Hochleistungsaufzüge - Teeküchen - Raumhöhe bis 3,00 m - Hohlraumböden - Flexible Raumaufteilung möglich - Teppichböden - EDV-ger. Beleuchtung - WC-Einheiten D/H - Tiefgarage - Natürliche Belüftung - Restaurants u. Einkaufsmöglichkeiten - hochmoderne Technik.
Lage des Objektes
Nur 2 Stationen vom Münchner Hauptbahnhof und direkt am Mittleren Ring gelegen, verfügt man im Central Tower über einen direkten Zugang zu allen Nah- und Fernverbindungen. Perfekte Infrastruktur mit allen Geschäften des täglichen Bedarfes in der Passage oder im nahen Umfeld. MVV : S-Bahnhof "Donnersberger Brücke" (Stammstrecke), Buslinien 33 und 18-19 vor der Türe.
Sonstige Informationen
Falls Sie in unseren Exposés noch nicht Ihre ideale Bürolösung gefunden haben, zögern Sie nicht, sich mit uns in Verbindung zu setzen. Sie erreichen uns per E-Mail unter info@hdic.de oder telefonisch unter 0171 3802649. Teilen Sie uns Ihr genaues Suchprofil mit, und wir setzen unsere Expertise ein, um aus über 1000 Objekten in München und Umland das perfekte Büro für Sie zu finden. Unser Service ist professionell, schnell, zielführend und wird mit höchster Diskretion durchgeführt. Zusätzlich laden wir Sie ein, unsere Webseite hdic.de zu besuchen, wo Sie weitere attraktive Objekte finden können.
tower
plaza
Blick
Bsp. innen 1
Musterausbau1
Ausbau2
Konfi bsp
Konfi mit Ausblick
hof
1
Ansicht (6)
Ansicht (7)
Ansicht (9)
Ansicht (8)
Ansicht (1)
Ansicht (10)
Ansicht (2)
Ansicht (3)
Ansicht (4)
Ansicht (5)
GR 3.OG 945,58 m_