Exposé
Objektart:
Büro / Praxen
» Bueroflaeche
» Miete
Standort: Büro / Praxen »
Deutschland » Nordrhein-Westfalen » Düsseldorf, Stadt (Kreis) » Düsseldorf
Kennedydamm Düsseldorf I Neue Büroflächen am Markt I hochwertig & provisionsfrei
Das Wichtigste auf einen Blick:
| Objektnummer: | 8363079 |
Preise
| Nebenkosten | keine Angabe |
| Mietpreis pro m² | 16,5 € |
Flächen
| Gesamtfläche | 292 m² |
| Bürofläche | 292 m² |
Objekt Adresse
Tersteegenstraße 28
40474 Düsseldorf
- Nordrhein-Westfalen
Sonstige Angaben
| Baujahr | 1997 |
| Verfügbar ab | kurzfristig |
| Anzahl der Etagen im Haus | 6 |
| Inserat befindet sich im Stockwerk | 3 |
| Fahrstuhl | Ja |
Objektbeschreibung
Das Gebäude hat eine H-förmige Struktur und besteht aus zwei parallelen Gebäudeteilen mit jeweils 4 bzw. 7 Obergeschossen und einem mittleren, 4-geschossigen Verbindungstrakt. Empfangen werden Nutzer wie Besucher in einer großzügigen und repräsentativen Eingangshalle. Die einzelnen Geschosse bieten dem Nutzer Möglichkeiten zur Realisierung unterschiedlicher Bürotypen ( Einzel-, gruppen- oder Großraumbüro ) in diversen Grundrisskombinationen.
Ausstattung
- 4 Personenaufzüge
- modern eingerichtete Teeküche pro Mieteinheit
- flexible Flächenaufteilung
- außenliegender elektrischer Sonnenschutz pro fensterachse ( außer Nordseite )
- Hohlraumboden
- abgehängte Decken mit integrierter BAP-Beleuchtung
- modern eingerichtete Teeküche pro Mieteinheit
- flexible Flächenaufteilung
- außenliegender elektrischer Sonnenschutz pro fensterachse ( außer Nordseite )
- Hohlraumboden
- abgehängte Decken mit integrierter BAP-Beleuchtung
Lage des Objektes
In unmittelbarer Nähe befinden sich die Showrooms der verschiedensten internationalen Top-Designer. Namenhafte Hotels, vielfältigste Einkaufs- und Gastronomiemöglichkeiten ergänzen die Attraktivität dieses Standortes. Die U-Bahnhaltestelle der Linien U78 und U79 befindet sich in unmittelbarer Nähe. Die Bushaltestellen der Linien 729, 756 und 758 sind auf der nahgelegenen Theodor-Heuss-Brücke und ergänzen die sehr gute Verkehrsanbindung: in die City gelangt man sowohl mit PKW, als auch mit öffentlichen Verkehrsmitteln in weniger als 7 Minuten. Der Flughafen ist ca. 5 km entfernt.
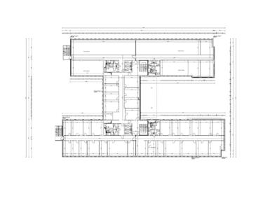
Grundriss | 2. OG
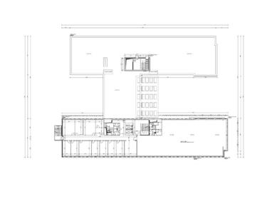
Grundriss | 3. OG
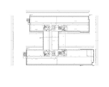
Grundriss | 4. OG
Grundriss | 6. OG