Exposé
Objektart:
Büro / Praxen
» Buerohaus
» Miete
Standort: Büro / Praxen »
Deutschland » Sachsen » Bautzen (Kreis) » Bautzen
Flächen für Ferienwohnungen / BOARDING.house im Zentrum Bautzens zu vermieten
Ansicht Reichenstraße
Das Wichtigste auf einen Blick:
| Objektnummer: | 8326016 |
Preise
| Miete für das Objekt | Auf Anfrage |
| Nebenkosten | 2,5 € |
| Mietpreis pro m² | 18 € |
Flächen
| Bürofläche | 590 m² |
| Bürofläche | 590 m² |
| Fläche teilbar ab | 590 m² |
| Maklerprovision | provisionsfrei |
Objekt Adresse
Reichenstraße 18
02625 Bautzen
Sonstige Angaben
| Verfügbar ab | keine Angabe |
Objektbeschreibung
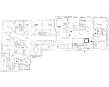
Die neu entstehenden Mikroapartments in den Obergeschossen werden über einen zentralen Eingangsbereich in der Reichenstraße und aus der Kesselstraße erschlossen. Die Mietbereiche können nach Mieterwunsch ausgestattet werden. Für die Nutzung als Mikroapartment/Ferienwohnung/Betreutes Wohnen stehen folgende Flächen zur Verfügung:
- 2. Obergeschoss mit ca. 590 m² Mietfläche für 12 - 14 Apartments nutzbar
- 2. Obergeschoss mit ca. 590 m² Mietfläche für 12 - 14 Apartments nutzbar
Lage des Objektes
Bautzen gilt als der bedeutendster Arbeitsort der Region Oberlausitz- Niederschlesien und ist somit ein reizvoller Standort für alle Wirtschaftsbereiche. Über die nahe gelegene Bundesstraße B6 ist eine zügige Anbindung an die Autobahn A4 gegeben. Das denkmalgeschützte Wohn- und Geschäftshaus befindet sich direkt in der Fußgängerzone und Haupteinkaufsstraße der historischen Innenstadt von Bautzen. Unzählige Einkaufsläden, mehrere Kaffees & Restaurants sowie Wahrzeichen wie der Reichenturm, das Rathaus oder der Dom St. Petri sind in unmittelbarer Nähe. Das Kornmarktcenter ist fußläufig in 2 Minuten erreicht. Im Erdgeschoss des Gebäudes befindet sich ein Drogeriemarkt.
Sonstige Informationen
Der Mietpreis berechnet sich je nach Lage im Gebäude, der gewünschten Ausstattung und Vertragslaufzeit und beläuft sich nach Ausbau auf ca. 18,00 - 19,00/m². Gern unterbreiten wir Ihnen Ihr persönliches Mietangebot.
Reichenstraße
Treppenhaus
Musterbild 2
Ansicht Kesselstraße
GR Reichenstraße Bautzen 1. OG