Exposé
Objektart:
Büro / Praxen
» Bueroflaeche
» Miete
Standort: Büro / Praxen »
Deutschland » Nordrhein-Westfalen » Mettmann (Kreis) » Düsseldorf
Provisionsfrei I Repräsentative Büroflächen in unmittelbarer Flughafennähe
Das Wichtigste auf einen Blick:
| Objektnummer: | 8294198 |
Preise
| Nebenkosten | keine Angabe |
| Mietpreis pro m² | 14 € |
Flächen
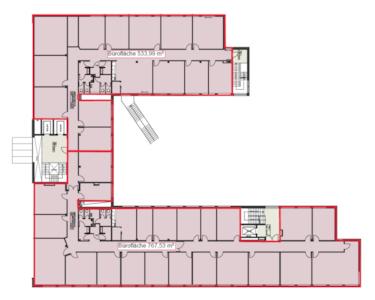
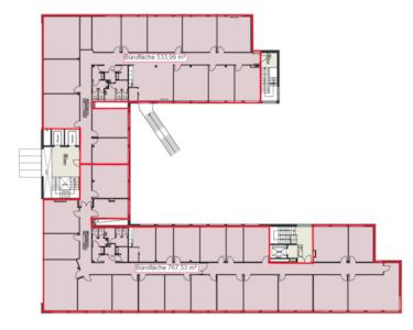
| Gesamtfläche | 533,99 m² |
| Bürofläche | 533,99 m² |
Objekt Adresse
40472 Düsseldorf
- Nordrhein-Westfalen
Sonstige Angaben
| Baujahr | 2006 |
| Verfügbar ab | kurzfristig |
| Inserat befindet sich im Stockwerk | 1 |
| Boden | Teppich |
| Fahrstuhl | Ja |
| Keller | Ja |
| Energieausweistyp | Bedarfsausweis |
| Gültig bis | 2026-05-09 |
| Baujahr (laut Energieausweis) | 2006 |
| Energieeffizienzklasse | C |
| Wesentlicher Energieträger | Gas |
| Energieträger/Befeuerung | Gas |
Objektbeschreibung
Eine großzügig verglaste Fassade und ein eingeschobener Eingangskubus prägen das Erscheinungsbild des Gebäudes. Das Objekt wird über zwei Fahrstühle vom Foyer in der Wanheimer Straße erschlossen. Ein weiteren Personen-/Lastenaufzug befindet sich in einem der beiden Fluchttreppenhäuser. Vom angrenzenden Parkhaus führt ein weiterer Zugang ins Gebäude.
Ausstattung
- textiler Fußbodenbelag (nach Mieterwunsch)
- zwei Personenaufzüge
- Be- und Entlüftung
- Repräsentative Eingangshalle
- Flexible Raumaufteilung
- Gegensprechanlage mit Kamera
- zwei Personenaufzüge
- Be- und Entlüftung
- Repräsentative Eingangshalle
- Flexible Raumaufteilung
- Gegensprechanlage mit Kamera
Lage des Objektes
Durch seine Lage direkt am Düsseldorfer Flughafen ist das Objekt an die wichtigsten deutschen Großstädte und internationale Wirtschaftszentren angeschlossen. Neben dem Düsseldorf Airport mit rund 4.000 Flügen pro Woche sorgen der nahe ICE-Bahnhof mit täglich 350 deutschlandweiten Verbindungen und die S-Bahnanbindung im 20-Minuten-Takt für ein Maximum an Mobilität - international und regional!
EG
1.OG
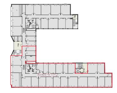
2.OG
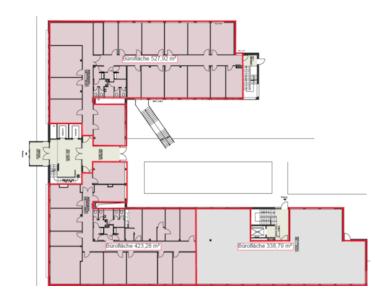
3.OG